Dreamhomesource.com

Questions about this plan? Visit Dreamhomesource.com today or call 1-800-447-0027

View plan at /plan/1692-square-feet-3-bedroom-2-00-bathroom-2-garage-sp114722

Plan 42-507
1692 sq/ft
3 beds
2 baths
63' 8" wide
44' 7" deep
Plan QR Code
Pricing
Plan Set
5 Copy Set
$800.00
8 Copy Set
$850.00
PDF Set
$850.00
Single Set
$750.00
Foundation
Crawlspace
+$0.00
Slab
+$0.00
Framing
Wood 2x4
$0.00
Right-Reading Reverse
Each
+$175.00
Additional Construction Sets
Each Additional Set
+$60.00/each
Audio Video Design
Each
$100.00
Construction Guide
Each
$39.00
Lighting Design
Each
$100.00

Full Specs & Features


Dimension
Depth : 44' 7"
Height : 20'
Width : 63' 8"
Area
First Floor: 1692 sq/ft
*Total Square Footage only includes conditioned space and does not include garages, porches, bonus rooms, or decks.
Roof
Primary Pitch : 8:12
Roof Framing : Conventional
Roof Type : Shingle
Exterior Wall Framing
Exterior Wall Finish : Siding
Framing : Wood - 2x4
Bedroom Features
Fireplace
Main Floor Master Bedroom
Split Bedrooms
Walk In Closet
Kitchen Features
Breakfast Nook
Kitchenette Wet Bar
Additional Room Features
Great Room Living Room
Main Floor Laundry
Open Floor Plan
Vaulted / Cathedral Ceilings
Workshop
Garage Features
Side Entry Garage
Outdoor Spaces
Courtyard
Covered Front Porch
Covered Rear Porch
Wrap Around Porch
Rooms

3rd BR Closet:

25 sq/ft width 5' x depth 5'

Bathroom 2:

55 sq/ft width 5' x depth 11'

Bedroom 2:

121 sq/ft width 11' x depth 11'

Bedroom 2 Closet:

26 sq/ft width 5' x depth 5' 4"

Bedroom 3:

121 sq/ft width 11' x depth 11'

Bedroom 3 Closet:

26 sq/ft width 5' x depth 5' 4"

Breakfast Room:

156 sq/ft width 12' 6" x depth 12' 6"

Coat Closet:

6 sq/ft width 3' 4" x depth 2'

Covered Porch:

149 sq/ft width 28' x depth 5' 4"

Dining Room:

156 sq/ft width 12' 6" x depth 12' 6"

Foyer:

78 sq/ft width 6' x depth 13'

Front Entry:

75 sq/ft width 6' x depth 12' 6"

Garage:

400 sq/ft width 20' x depth 20'

Garage Storage:

40 sq/ft width 10' x depth 4'

Gathering Room:

352 sq/ft width 16' x depth 22'

Hall:

53 sq/ft width 3' 4" x depth 16'

Hall Bathroom:

55 sq/ft width 5' x depth 11'

Hall Closet:

6 sq/ft width 3' 4" x depth 2'

Kitchen:

103 sq/ft width 9' 5" x depth 11'

Linen Closet:

4 sq/ft width 3' 4" x depth 1' 6"

Master Bathroom:

160 sq/ft width 10' x depth 16'

Master Bedroom:

208 sq/ft width 13' x depth 16'

Master Closet:

25 sq/ft width 5' x depth 5'

Master Closet Two:

35 sq/ft width 5' x depth 7'

Patio:

232 sq/ft width 22' x depth 10' 7"

Porch - Front:

149 sq/ft width 28' x depth 5' 4"

Porch - Rear:

245 sq/ft width 23' x depth 10' 8"

Utility Room:

51 sq/ft width 5' 6" x depth 9' 4"

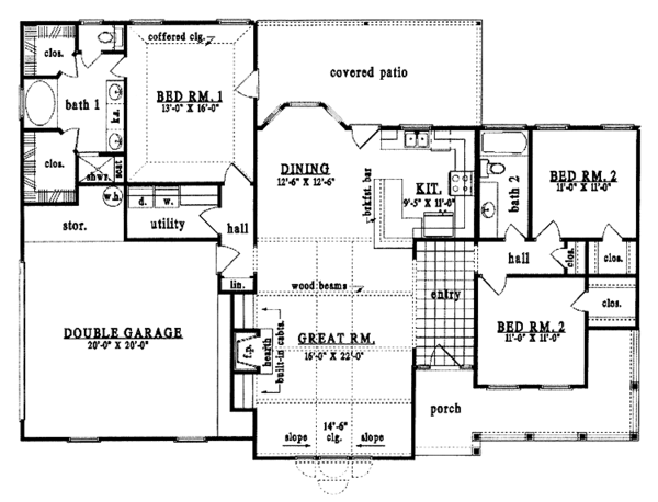
Floor Plan - Main Floor

Dream House Plan - Country Floor Plan - Main Floor Plan #42-507
Dreamhomesource.com
Questions about this plan? Visit Dreamhomesource.com today or call 1-800-447-0027
View this plan at /plan/1692-square-feet-3-bedroom-2-00-bathroom-2-garage-sp114722

In addition to the house plans you order, you may also need a site plan that shows where the house is going to be located on the property. You might also need beams sized to accommodate roof loads specific to your region. Your home builder can usually help you with this. You may also need a septic design unless your lot is served by a sanitary sewer system. Many areas now have area-specific energy codes that also have to be followed. This normally involves filling out a simple form providing documentation that your house plans are in compliance.

To find out what documents you should expect with your house plans, see /help/faq#faq13.

In some regions, there is a second step you will need to take to insure your house plans are in compliance with local codes. Some areas of North America have very strict engineering requirements. Examples of this would be earthquake-prone areas of California and the Pacific Coast, hurricane risk areas of the Florida, Gulf & Carolina Coasts. New York, New Jersey, Nevada, and parts of Illinois require review by a local professional as well. If you are building in these areas, it is most likely you will need to hire a state licensed structural engineer to analyze the design and provide additional drawings and calculations required by your building department. If you aren’t sure, building departments typically have a handout they will give you listing all of the items they require to submit for and obtain a building permit.

Additionally, stock plans do not have a professional stamp attached. If your building department requires one, they will only accept a stamp from a professional licensed in the state where you plan to build. In this case, you will need to take your house plans to a local engineer or architect for review and stamping. In addition, plans which are used to construct homes in Nevada are required to be drawn by a licensed Nevada architect.

Note: All sales on house plans are final. No refunds or exchanges can be given once your order has been fulfilled or once we have begun to customize a home plan to your specifications.