Dreamhomesource.com

Questions about this plan? Visit Dreamhomesource.com today or call 1-800-447-0027

View plan at /plan/2916-square-feet-4-bedroom-2-00-bathroom-2-garage-sp116210

Plan 60-896
2916 sq/ft
4 beds
2 baths
80' wide
32' deep
Plan QR Code
Pricing
Plan Set
5 Copy Set
$1000.00
PDF Set
$1000.00
Foundation
Crawlspace
+$0.00
Framing
Wood 2x6
$0.00
Additional Construction Sets
Each Additional Set
+$60.00/each
Audio Video Design
Each
$100.00
Construction Guide
Each
$39.00
Lighting Design
Each
$100.00

Full Specs & Features


Dimension
Depth : 32'
Height : 22'
Width : 80'
Area
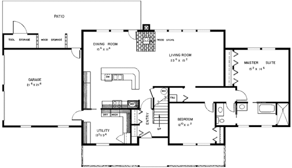
First Floor: 1676 sq/ft
Garage: 484 sq/ft
Porch: 240 sq/ft
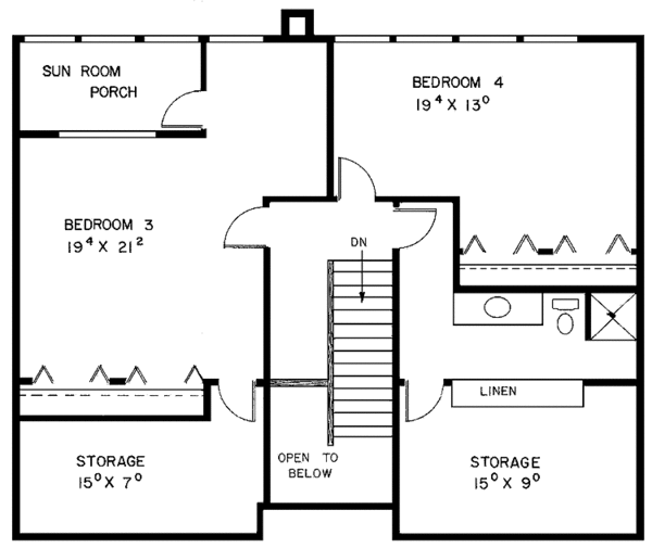
Second Floor: 1240 sq/ft
Storage: 224 sq/ft
*Total Square Footage only includes conditioned space and does not include garages, porches, bonus rooms, or decks.
Roof
Primary Pitch : 10:12
Exterior Wall Framing
Exterior Wall Finish : Siding
Framing : Wood - 2x6
Bedroom Features
Fireplace
Formal Living Room / Parlor
Main Floor Master Bedroom
Kitchen Features
Kitchen Island
Additional Room Features
Sunroom
Unfinished Future Space
Outdoor Spaces
Covered Front Porch
Screened Porch
Rooms

Bedroom 2:

143 sq/ft width 12' 10" x depth 11' 2"

Bedroom 3:

409 sq/ft width 19' 4" x depth 21' 2"

Bedroom 4:

251 sq/ft width 19' 4" x depth 13'

Dining Room:

175 sq/ft width 15' 6" x depth 11' 4"

Garage:

462 sq/ft width 21' 6" x depth 21' 6"

Living Room:

356 sq/ft width 23' 6" x depth 15' 2"

Master Suite:

219 sq/ft width 15' 2" x depth 14' 6"

Storage:

105 sq/ft width 15' x depth 7'

Storage:

135 sq/ft width 15' x depth 9'

Utility Room:

121 sq/ft width 13' x depth 9' 4"

Floor Plan - Main Floor

Dream House Plan - Colonial Floor Plan - Main Floor Plan #60-896

Floor Plan - Upper Floor

Dream House Plan - Colonial Floor Plan - Upper Floor Plan #60-896
Dreamhomesource.com
Questions about this plan? Visit Dreamhomesource.com today or call 1-800-447-0027
View this plan at /plan/2916-square-feet-4-bedroom-2-00-bathroom-2-garage-sp116210

In addition to the house plans you order, you may also need a site plan that shows where the house is going to be located on the property. You might also need beams sized to accommodate roof loads specific to your region. Your home builder can usually help you with this. You may also need a septic design unless your lot is served by a sanitary sewer system. Many areas now have area-specific energy codes that also have to be followed. This normally involves filling out a simple form providing documentation that your house plans are in compliance.

To find out what documents you should expect with your house plans, see /help/faq#faq13.

In some regions, there is a second step you will need to take to insure your house plans are in compliance with local codes. Some areas of North America have very strict engineering requirements. Examples of this would be earthquake-prone areas of California and the Pacific Coast, hurricane risk areas of the Florida, Gulf & Carolina Coasts. New York, New Jersey, Nevada, and parts of Illinois require review by a local professional as well. If you are building in these areas, it is most likely you will need to hire a state licensed structural engineer to analyze the design and provide additional drawings and calculations required by your building department. If you aren’t sure, building departments typically have a handout they will give you listing all of the items they require to submit for and obtain a building permit.

Additionally, stock plans do not have a professional stamp attached. If your building department requires one, they will only accept a stamp from a professional licensed in the state where you plan to build. In this case, you will need to take your house plans to a local engineer or architect for review and stamping. In addition, plans which are used to construct homes in Nevada are required to be drawn by a licensed Nevada architect.

Note: All sales on house plans are final. No refunds or exchanges can be given once your order has been fulfilled or once we have begun to customize a home plan to your specifications.