Dreamhomesource.com

Questions about this plan? Visit Dreamhomesource.com today or call 1-800-447-0027

View plan at /plan/2941-square-feet-4-bedroom-3-00-bathroom-3-garage-sp101780

Plan 310-552
2941 sq/ft
4 beds
3 baths
91' wide
64' 7" deep
Plan QR Code
Pricing
Plan Set
5 Copy Set
$1195.00
8 Copy Set
$1335.00
PDF Set
$1485.00
Reproducible Set
$1485.00
CAD Set
$2270.00
Single Set
$1140.00
Foundation
Slab
+$0.00
Additional Construction Sets
Each Additional Set
+$50.00/each
Audio Video Design
Each
$100.00
Construction Guide
Each
$39.00
Mirror Reversed Sets
Each Additional Set
+$50.00

Full Specs & Features


Dimension
Depth : 64' 7"
Height : 32'
Width : 91'
Area
Bonus: 342 sq/ft
First Floor: 2941 sq/ft
*Total Square Footage only includes conditioned space and does not include garages, porches, bonus rooms, or decks.
Roof
Primary Pitch : 12:12
Roof Framing : Conventional
Roof Type : Shingle
Exterior Wall Framing
Exterior Wall Finish : Brick/Stone
Framing : Wood - 2x4
Bedroom Features
Main Floor Bedrooms
Main Floor Master Bedroom
Walk In Closet
Kitchen Features
Breakfast Nook
Additional Room Features
Den Office Study Computer
Great Room Living Room
Master Sitting Area
Play Flex Room
Storage Area
Unfinished Future Space
Garage Features
Oversized Garage
Side Entry Garage
Lot Characteristics
Suited For View Lot
Outdoor Spaces
Covered Front Porch
Covered Rear Porch
Rooms

Bedroom 2:

142 sq/ft width 14' 3" x depth 10'

Bedroom 3:

132 sq/ft width 12' x depth 11'

Bedroom 4:

165 sq/ft width 12' x depth 13' 9"

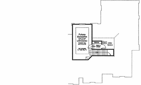
Bonus Room - Finished:

327 sq/ft width 13' 6" x depth 24' 3"

Breakfast Room:

156 sq/ft width 13' x depth 12'

Dining Room:

162 sq/ft width 13' 6" x depth 12'

Foyer:

56 sq/ft width 8' x depth 7'

Garage:

812 sq/ft width 25' x depth 32' 6"

Gathering Room:

357 sq/ft width 21' x depth 17'

Hall:

38 sq/ft width 11' x depth 3' 6"

Kitchen:

152 sq/ft width 13' x depth 11' 9"

Master Bedroom:

241 sq/ft width 17' 3" x depth 14'

Porch - Left:

64 sq/ft width 8' x depth 8'

Porch - Rear:

140 sq/ft width 7' x depth 20'

Utility Room:

64 sq/ft width 8' x depth 8'

Floor Plan - Main Floor

Dream House Plan - European style house plan, main level floor plan

Floor Plan - Upper Floor

Dream House Plan - European Floor Plan - Upper Floor Plan #310-552
Dreamhomesource.com
Questions about this plan? Visit Dreamhomesource.com today or call 1-800-447-0027
View this plan at /plan/2941-square-feet-4-bedroom-3-00-bathroom-3-garage-sp101780

In addition to the house plans you order, you may also need a site plan that shows where the house is going to be located on the property. You might also need beams sized to accommodate roof loads specific to your region. Your home builder can usually help you with this. You may also need a septic design unless your lot is served by a sanitary sewer system. Many areas now have area-specific energy codes that also have to be followed. This normally involves filling out a simple form providing documentation that your house plans are in compliance.

To find out what documents you should expect with your house plans, see /help/faq#faq13.

In some regions, there is a second step you will need to take to insure your house plans are in compliance with local codes. Some areas of North America have very strict engineering requirements. Examples of this would be earthquake-prone areas of California and the Pacific Coast, hurricane risk areas of the Florida, Gulf & Carolina Coasts. New York, New Jersey, Nevada, and parts of Illinois require review by a local professional as well. If you are building in these areas, it is most likely you will need to hire a state licensed structural engineer to analyze the design and provide additional drawings and calculations required by your building department. If you aren’t sure, building departments typically have a handout they will give you listing all of the items they require to submit for and obtain a building permit.

Additionally, stock plans do not have a professional stamp attached. If your building department requires one, they will only accept a stamp from a professional licensed in the state where you plan to build. In this case, you will need to take your house plans to a local engineer or architect for review and stamping. In addition, plans which are used to construct homes in Nevada are required to be drawn by a licensed Nevada architect.

Note: All sales on house plans are final. No refunds or exchanges can be given once your order has been fulfilled or once we have begun to customize a home plan to your specifications.