Questions about this plan? Visit Dreamhomesource.com today or call 1-800-447-0027
View plan at /plan/3290-square-feet-4-bedroom-4-00-bathroom-3-garage-sp105468
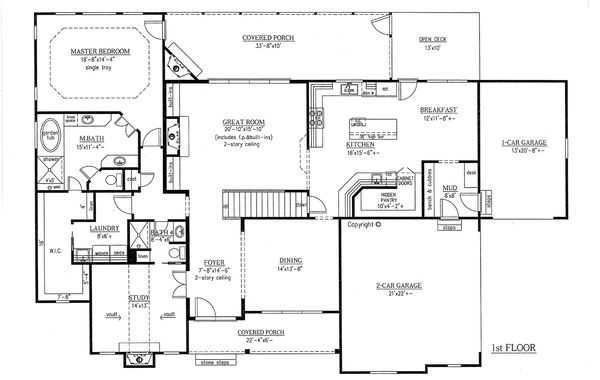
Bath 2:
53 sq/ft width 10' 8" x depth 5'
Bath 4:
36 sq/ft width 8' x depth 4' 6"
Bathroom 3:
88 sq/ft width 8' x depth 11'
Bedroom 2:
201 sq/ft width 14' x depth 14' 4"
Bedroom 2 Closet:
23 sq/ft width 4' 7" x depth 5'
Bedroom 3:
169 sq/ft width 13' x depth 13'
Bedroom 3 Closet:
23 sq/ft width 4' 7" x depth 5'
Bedroom 4:
178 sq/ft width 13' x depth 13' 8"
Bedroom 4 Closet:
35 sq/ft width 7' x depth 5'
Breakfast:
140 sq/ft width 12' x depth 11' 8"
Covered Front Porch:
126 sq/ft width 22' x depth 4' 6"
Dining Room:
191 sq/ft width 14' x depth 13' 8"
Foyer:
111 sq/ft width 7' 8" x depth 14' 6"
Garage 1:
470 sq/ft width 21' x depth 22'
Garage 2:
269 sq/ft width 13' x depth 20' 8"
Great Room:
330 sq/ft width 20' 10" x depth 15' 10"
Kitchen:
248 sq/ft width 16' x depth 15' 6"
Loft:
80 sq/ft width 10' 8" x depth 7' 4"
Master Bath:
171 sq/ft width 15' x depth 11' 4"
Master Bedroom:
268 sq/ft width 18' 8" x depth 14' 4"
Mud Room:
64 sq/ft width 8' x depth 8'
Pantry:
42 sq/ft width 10' x depth 4' 2"
Rear Deck:
130 sq/ft width 13' x depth 10'
Rear Screened Porch:
337 sq/ft width 33' 8" x depth 10'
Study:
182 sq/ft width 14' x depth 13'
 
    