Questions about this plan? Visit Dreamhomesource.com today or call 1-800-447-0027
View plan at /plan/3556-square-feet-5-bedroom-3-50-bathroom-2-garage-sp113877
3rd BR Closet:
13 sq/ft width 2' 1" x depth 6' 6"
Basement Foundation:
1120 sq/ft width 40' x depth 28'
Bathroom 2:
71 sq/ft width 10' 4" x depth 6' 11"
Bedroom 2:
193 sq/ft width 14' 4" x depth 13' 6"
Bedroom 2 Closet:
13 sq/ft width 2' 1" x depth 6' 6"
Bedroom 3:
139 sq/ft width 13' 4" x depth 10' 6"
Bedroom 3 Closet:
13 sq/ft width 2' 1" x depth 6' 6"
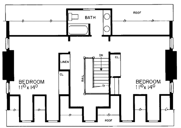
Bedroom 4:
165 sq/ft width 11' 10" x depth 14'
Bedroom 4 Closet:
11 sq/ft width 2' 1" x depth 5' 8"
Bedroom 5:
165 sq/ft width 11' 10" x depth 14'
Breakfast Room:
172 sq/ft width 10' 4" x depth 16' 8"
Crawlspace Foundation:
216 sq/ft width 12' x depth 18'
Dining Room:
188 sq/ft width 14' 4" x depth 13' 2"
Foyer:
72 sq/ft width 9' 4" x depth 7' 9"
Garage:
513 sq/ft width 22' 8" x depth 22' 8"
Gathering Room:
267 sq/ft width 20' 4" x depth 13' 2"
Hall:
158 sq/ft width 9' 4" x depth 17'
Hall Bathroom:
61 sq/ft width 10' 4" x depth 5' 11"
Hall Closet:
10 sq/ft width 2' 1" x depth 5' 1"
Kitchen:
215 sq/ft width 16' 4" x depth 13' 2"
Laundry Room:
42 sq/ft width 7' x depth 6'
Master Bathroom:
108 sq/ft width 12' x depth 9'
Master Bedroom:
250 sq/ft width 14' 4" x depth 17' 6"
Master Closet:
18 sq/ft width 2' 1" x depth 9'
Parlor:
188 sq/ft width 14' 4" x depth 13' 2"
Porch - Front:
98 sq/ft width 14' x depth 7'
Porch - Right:
93 sq/ft width 17' x depth 5' 6"
Powder Room:
26 sq/ft width 5' 8" x depth 4' 8"
Study:
172 sq/ft width 10' 4" x depth 16' 8"
Wash Room:
42 sq/ft width 11' 4" x depth 3' 9"
 
     
    