Dreamhomesource.com

Questions about this plan? Visit Dreamhomesource.com today or call 1-800-447-0027

View plan at /plan/3560-square-feet-3-bedroom-3-50-bathroom-2-garage-sp118762

Plan 76-122
3560 sq/ft
3 beds
3.5 baths
60' wide
145' deep
Plan QR Code
Pricing
Plan Set
Reproducible Set
$1145.00
PDF Set
$2610.00
5 Copy Set
$3035.00
CAD Set
$3258.00
Foundation
Slab
+$0.00
Framing
Wood 2x6
$0.00
Additional Construction Sets
Each Additional Set
+$120.00/each
Audio Video Design
Each
$100.00
Construction Guide
Each
$39.00
Lighting Design
Each
$200.00

Full Specs & Features


Dimension
Depth : 145'
Height : 29'
Width : 60'
Area
First Floor: 2810 sq/ft height 10'
Second Floor: 750 sq/ft
*Total Square Footage only includes conditioned space and does not include garages, porches, bonus rooms, or decks.
Roof
Primary Pitch : 5:12
Roof Framing : Truss
Roof Type : Tile
Exterior Wall Framing
Exterior Wall Finish : Stucco
Framing : Wood - 2x6
Bedroom Features
Fireplace
Formal Living Room / Parlor
Guest Suite
Main Floor Master Bedroom
Kitchen Features
Breakfast Nook
Butler's Pantry
Walk In Pantry Cabinet Pantry
Additional Room Features
Family Room Keeping Room
Loft
Main Floor Laundry
Sunroom
Outdoor Spaces
Balcony
Courtyard
Deck
Grill Deck Sundeck
Screened Porch
Rooms

3rd BR Closet:

34 sq/ft width 4' 8" x depth 7' 4"

Bathroom 2:

49 sq/ft width 3' 6" x depth 14'

Bedroom 2:

174 sq/ft width 14' 6" x depth 12'

Bedroom 2 Closet:

31 sq/ft width 6' 4" x depth 5'

Bedroom 3:

179 sq/ft width 14' 4" x depth 12' 6"

Bedroom 3 Closet:

31 sq/ft width 6' 4" x depth 5'

Breakfast Room:

95 sq/ft width 7' 4" x depth 13'

Deck:

312 sq/ft width 12' x depth 26'

Dining Room:

218 sq/ft width 13' 8" x depth 16'

Foyer:

135 sq/ft width 4' 6" x depth 30'

Garage:

762 sq/ft width 36' 4" x depth 21'

Kitchen:

128 sq/ft width 10' 8" x depth 12'

Living Room:

224 sq/ft width 14' x depth 16'

Master Bathroom:

174 sq/ft width 14' 6" x depth 12'

Master Bedroom:

337 sq/ft width 23' x depth 14' 8"

Master Closet:

99 sq/ft width 13' x depth 7' 8"

Porch - Rear:

202 sq/ft width 12' 8" x depth 16'

Powder Room:

52 sq/ft width 7' 2" x depth 7' 4"

Utility Room:

86 sq/ft width 11' 6" x depth 7' 6"

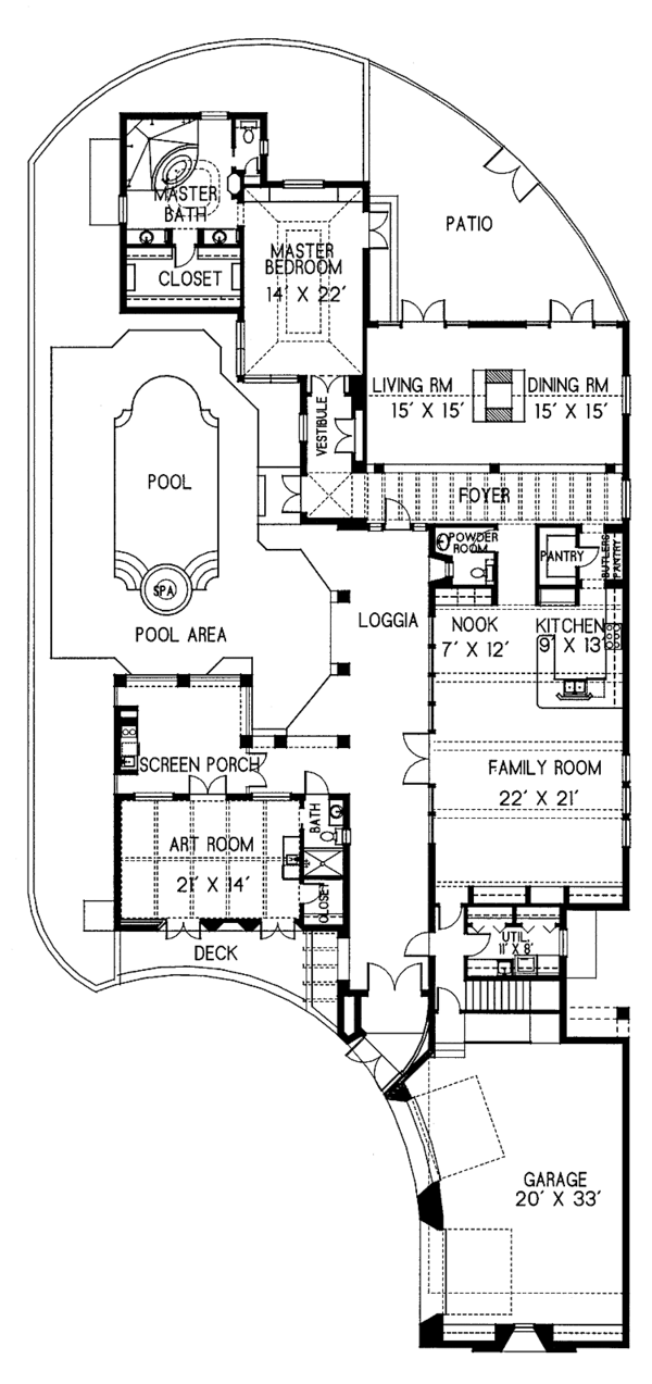
Floor Plan - Main Floor

Dream House Plan - Mediterranean Floor Plan - Main Floor Plan #76-122

Floor Plan - Upper Floor

Dream House Plan - Mediterranean Floor Plan - Upper Floor Plan #76-122
Dreamhomesource.com
Questions about this plan? Visit Dreamhomesource.com today or call 1-800-447-0027
View this plan at /plan/3560-square-feet-3-bedroom-3-50-bathroom-2-garage-sp118762

In addition to the house plans you order, you may also need a site plan that shows where the house is going to be located on the property. You might also need beams sized to accommodate roof loads specific to your region. Your home builder can usually help you with this. You may also need a septic design unless your lot is served by a sanitary sewer system. Many areas now have area-specific energy codes that also have to be followed. This normally involves filling out a simple form providing documentation that your house plans are in compliance.

To find out what documents you should expect with your house plans, see /help/faq#faq13.

In some regions, there is a second step you will need to take to insure your house plans are in compliance with local codes. Some areas of North America have very strict engineering requirements. Examples of this would be earthquake-prone areas of California and the Pacific Coast, hurricane risk areas of the Florida, Gulf & Carolina Coasts. New York, New Jersey, Nevada, and parts of Illinois require review by a local professional as well. If you are building in these areas, it is most likely you will need to hire a state licensed structural engineer to analyze the design and provide additional drawings and calculations required by your building department. If you aren’t sure, building departments typically have a handout they will give you listing all of the items they require to submit for and obtain a building permit.

Additionally, stock plans do not have a professional stamp attached. If your building department requires one, they will only accept a stamp from a professional licensed in the state where you plan to build. In this case, you will need to take your house plans to a local engineer or architect for review and stamping. In addition, plans which are used to construct homes in Nevada are required to be drawn by a licensed Nevada architect.

Note: All sales on house plans are final. No refunds or exchanges can be given once your order has been fulfilled or once we have begun to customize a home plan to your specifications.