Dreamhomesource.com

Questions about this plan? Visit Dreamhomesource.com today or call 1-800-447-0027

View plan at /plan/7007-square-feet-4-bedroom-4-00-bathroom-4-garage-sp118855

Plan 951-2
7007 sq/ft
4 beds
4 baths
118' 6" wide
62' 7" deep
Plan QR Code
Pricing
Plan Set
CAD Set
$3050.00
Foundation
Daylight Basement
+$0.00
Framing
Wood 2x6
$0.00
Right-Reading Reverse
Each
+$175.00
Additional Construction Sets
Each Additional Set
+$60.00/each
Audio Video Design
Each
$100.00
Construction Guide
Each
$39.00
Lighting Design
Each
$200.00
Mirror Reversed Sets
Each Additional Set
+$60.00

Full Specs & Features


Dimension
Depth: 62' 7"
Height: 41' 9"
Width: 118' 6"
Area
Basement Living: 1639 sq/ft
First Floor: 3637 sq/ft
Second Floor: 1731 sq/ft
*Total Square Footage only includes conditioned space and does not include garages, porches, bonus rooms, or decks.
Roof
Roof Framing: Truss
Roof Type: Shingle
Exterior Wall Framing
Exterior Wall Finish: Brick/Siding
Framing: Wood - 2x6
Bedroom Features
Fireplace
Formal Dining Room
Formal Living Room / Parlor
Upstairs Master Bedrooms
Kitchen Features
Breakfast Nook
Butler's Pantry
Kitchen Island
Kitchenette Wet Bar
Walk In Pantry Cabinet Pantry
Additional Room Features
Den Office Study Computer
Exercise Room
Family Room Keeping Room
Hobby Rec Room Game Room
Loft
Media Room
Upstairs Laundry
Wine Cellar
Outdoor Spaces
Balcony
Courtyard
Covered Front Porch
Covered Rear Porch
Deck
Rooms

Basement Foundation:

1988 sq/ft width 66' 10" x depth 29' 9"

Bathroom 2:

116 sq/ft width 7' 6" x depth 15' 6"

Bathroom 3:

74 sq/ft width 5' x depth 14' 11"

Bedroom 2:

242 sq/ft width 17' 3" x depth 14' 1"

Bedroom 2 Closet:

46 sq/ft width 13' 7" x depth 3' 5"

Bedroom 3:

231 sq/ft width 15' 5" x depth 15'

Bedroom 3 Closet:

39 sq/ft width 9' 5" x depth 4' 2"

Bedroom 4:

215 sq/ft width 14' x depth 15' 5"

Bedroom 4 Closet:

45 sq/ft width 3' 7" x depth 12' 7"

Butler's Pantry:

29 sq/ft width 5' 2" x depth 5' 8"

Crawlspace Foundation:

2979 sq/ft width 61' 9" x depth 48' 3"

Deck:

1649 sq/ft width 86' 5" x depth 19' 1"

Den:

168 sq/ft width 14' x depth 12'

Dining Room:

240 sq/ft width 15' x depth 16'

Exercise Room:

268 sq/ft width 17' 3" x depth 15' 7"

Foyer:

121 sq/ft width 10' 2" x depth 11' 11"

Game Room:

820 sq/ft width 29' 7" x depth 27' 9"

Garage:

601 sq/ft width 24' x depth 25' 1"

Hall Bathroom:

49 sq/ft width 6' x depth 8' 2"

Kitchen:

324 sq/ft width 17' 3" x depth 18' 10"

Kitchen Island:

45 sq/ft width 11' 5" x depth 4'

Laundry Room:

108 sq/ft width 9' 9" x depth 11' 2"

Living Room:

294 sq/ft width 15' 1" x depth 19' 6"

Loft:

182 sq/ft width 11' 9" x depth 15' 6"

Master Bathroom:

258 sq/ft width 19' 5" x depth 13' 4"

Master Bedroom:

430 sq/ft width 18' 1" x depth 23' 10"

Master Closet:

291 sq/ft width 20' x depth 14' 7"

Media Room:

336 sq/ft width 21' x depth 16'

Pantry:

44 sq/ft width 7' 2" x depth 6' 2"

Patio:

1417 sq/ft width 67' 6" x depth 21'

Powder Room:

24 sq/ft width 5' 1" x depth 4' 9"

Recreation Room:

513 sq/ft width 27' x depth 19'

Slab Foundation:

2271 sq/ft width 46' 8" x depth 48' 8"

Theatre Room:

391 sq/ft width 21' 1" x depth 18' 7"

Toilet Closet:

52 sq/ft width 5' x depth 10' 6"

Wet Bar:

16 sq/ft width 2' x depth 8' 2"

Wine Cellar:

115 sq/ft width 11' 2" x depth 10' 4"

Floor Plan - Main Floor

Dream House Plan - Floor Plan - Main Floor for Contemporary House Plan #951-2 - 4 bed, 4 bath

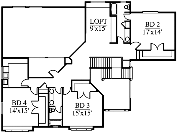
Floor Plan - Upper Floor

Dream House Plan - Floor Plan - Upper Floor for Contemporary House Plan #951-2 - 4 bed, 4 bath

Floor Plan - Lower Floor

Dream House Plan - Floor Plan - Lower Floor for Contemporary House Plan #951-2 - 4 bed, 4 bath
Dreamhomesource.com
Questions about this plan? Visit Dreamhomesource.com today or call 1-800-447-0027
View this plan at /plan/7007-square-feet-4-bedroom-4-00-bathroom-4-garage-sp118855

In addition to the house plans you order, you may also need a site plan that shows where the house is going to be located on the property. You might also need beams sized to accommodate roof loads specific to your region. Your home builder can usually help you with this. You may also need a septic design unless your lot is served by a sanitary sewer system. Many areas now have area-specific energy codes that also have to be followed. This normally involves filling out a simple form providing documentation that your house plans are in compliance.

To find out what documents you should expect with your house plans, see /help/faq#faq13.

In some regions, there is a second step you will need to take to insure your house plans are in compliance with local codes. Some areas of North America have very strict engineering requirements. Examples of this would be earthquake-prone areas of California and the Pacific Coast, hurricane risk areas of the Florida, Gulf & Carolina Coasts. New York, New Jersey, Nevada, and parts of Illinois require review by a local professional as well. If you are building in these areas, it is most likely you will need to hire a state licensed structural engineer to analyze the design and provide additional drawings and calculations required by your building department. If you aren’t sure, building departments typically have a handout they will give you listing all of the items they require to submit for and obtain a building permit.

Additionally, stock plans do not have a professional stamp attached. If your building department requires one, they will only accept a stamp from a professional licensed in the state where you plan to build. In this case, you will need to take your house plans to a local engineer or architect for review and stamping. In addition, plans which are used to construct homes in Nevada are required to be drawn by a licensed Nevada architect.

Note: All sales on house plans are final. No refunds or exchanges can be given once your order has been fulfilled or once we have begun to customize a home plan to your specifications.