Dreamhomesource.com

Questions about this plan? Visit Dreamhomesource.com today or call 1-800-447-0027

View plan at /plan/7398-square-feet-5-bedroom-5-00-bathroom-3-garage-sp122059

Plan 928-275
7398 sq/ft
5 beds
5 baths
122' wide
72' deep
Plan QR Code
Pricing
Plan Set
PDF Set
$1995.00
CAD Set
$3995.00
Foundation
Daylight Basement
+$0.00
Framing
Wood 2x6
$0.00
Right-Reading Reverse
Each
+$195.00
Audio Video Design
Each
$165.00
Comprehensive Material List
Each
$495.00
Construction Guide
Each
$39.00
Lighting Design
Each
$165.00

Full Specs & Features


Dimension
Depth: 72'
Height: 39' 6"
Width: 122'
Area
Basement Living: 1148 sq/ft
Basement Unfinished: 1620 sq/ft
Bonus: 580 sq/ft
First Floor: 3495 sq/ft
Garage: 1428 sq/ft
Second Floor: 2755 sq/ft
*Total Square Footage only includes conditioned space and does not include garages, porches, bonus rooms, or decks.
Roof
Primary Pitch: 12:12
Roof Framing: Truss
Roof Type: Asphalt
Secondary Pitch: 14:12
Exterior Wall Framing
Exterior Wall Finish: Brick/Stone
Framing: Wood - 2x6
Bedroom Features
Fireplace
Formal Dining Room
Split Bedrooms
Upstairs Master Bedrooms
Walk In Closet
Kitchen Features
Breakfast Nook
Butler's Pantry
Kitchen Island
Kitchenette Wet Bar
Walk In Pantry Cabinet Pantry
Additional Room Features
Den Office Study Computer
Family Room Keeping Room
Open Floor Plan
Sunroom
Unfinished Future Space
Upstairs Laundry
Vaulted / Cathedral Ceilings
Garage Features
Detached Garage
Rear Entry Garage
Outdoor Spaces
Courtyard
Screened Porch
Rooms

Bedroom 2:

width 19' 9" x depth 15' 2"

Bedroom 3:

width 13' 8" x depth 14' 6"

Bedroom 4:

width 16' 6" x depth 12' 2"

Bonus Room:

580 sq/ft width 23' x depth 23' 1"

Butler's Pantry:

width 8' 1" x depth 11' 6"

Dining Room:

width 15' x depth 18' 9"

Family Room:

width 21' x depth 19'

Garage 1:

609 sq/ft width 23' x depth 27'

Garage 2:

336 sq/ft width 13' x depth 23'

Guest Room:

width 15' x depth 18' 5"

Kitchen:

width 21' x depth 12' 6"

Laundry Room:

width 12' x depth 8' 4"

Living Room:

width 21' x depth 19'

Master Closet:

width 13' x depth 19' 6"

Master Antechamber:

width 9' 4" x depth 9' 4"

Master Bedroom:

width 18' 8" x depth 15' 8"

Master Extra Sleeping Area:

width 14' 6" x depth 8' 2"

Mud Room:

width 17' x depth 12' 8"

Recreation Room:

width 21' x depth 22' 1"

Refreshment Area:

width 16' 4" x depth 13'

Study:

width 21' 4" x depth 18' 8"

Sunroom:

width 15' x depth 16' 2"

Utility Room:

width 13' 8" x depth 10'

Floor Plan - Main Floor

Dream House Plan - Floor Plan - Main Floor for Tudor House Plan #928-275 - 5 bed, 5 bath

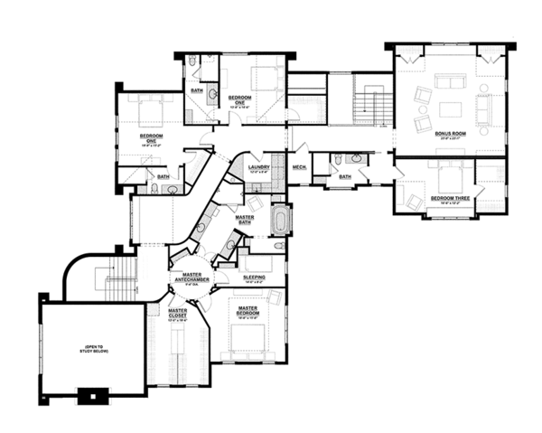
Floor Plan - Upper Floor

Dream House Plan - Floor Plan - Upper Floor for Tudor House Plan #928-275 - 5 bed, 5 bath

Floor Plan - Other Floor

Dream House Plan - Future Finished Basement

Floor Plan - Other Floor

Dream House Plan - Garage 2
Dreamhomesource.com
Questions about this plan? Visit Dreamhomesource.com today or call 1-800-447-0027
View this plan at /plan/7398-square-feet-5-bedroom-5-00-bathroom-3-garage-sp122059

In addition to the house plans you order, you may also need a site plan that shows where the house is going to be located on the property. You might also need beams sized to accommodate roof loads specific to your region. Your home builder can usually help you with this. You may also need a septic design unless your lot is served by a sanitary sewer system. Many areas now have area-specific energy codes that also have to be followed. This normally involves filling out a simple form providing documentation that your house plans are in compliance.

To find out what documents you should expect with your house plans, see /help/faq#faq13.

In some regions, there is a second step you will need to take to insure your house plans are in compliance with local codes. Some areas of North America have very strict engineering requirements. Examples of this would be earthquake-prone areas of California and the Pacific Coast, hurricane risk areas of the Florida, Gulf & Carolina Coasts. New York, New Jersey, Nevada, and parts of Illinois require review by a local professional as well. If you are building in these areas, it is most likely you will need to hire a state licensed structural engineer to analyze the design and provide additional drawings and calculations required by your building department. If you aren’t sure, building departments typically have a handout they will give you listing all of the items they require to submit for and obtain a building permit.

Additionally, stock plans do not have a professional stamp attached. If your building department requires one, they will only accept a stamp from a professional licensed in the state where you plan to build. In this case, you will need to take your house plans to a local engineer or architect for review and stamping. In addition, plans which are used to construct homes in Nevada are required to be drawn by a licensed Nevada architect.

Note: All sales on house plans are final. No refunds or exchanges can be given once your order has been fulfilled or once we have begun to customize a home plan to your specifications.