Dreamhomesource.com

Questions about this plan? Visit Dreamhomesource.com today or call 1-800-447-0027

View plan at /plan/3045-square-feet-4-bedroom-3-00-bathroom-3-garage-barndominium-country-traditional-farmhouse-sp371932

Plan 1107-52
3045 sq/ft
4 beds
3 baths
96' wide
45' deep
Plan QR Code
Pricing
Plan Set
PDF Master Set
$1550.00
5 Copy and PDF Set
$1750.00
CAD and PDF Set
$2350.00
CAD and PDF Set Unlimited Build
$3100.00
Foundation
Slab
+$0.00
Crawlspace
+$250.00
Basement
+$350.00
Framing
Wood 2x6
$0.00
Metal (PEMB)
$325.00
Wood 2x4
$325.00
Right-Reading Reverse
Each
+$245.00
Additional Construction Sets
Each Additional Set
+$100.00/each
Additional Use License
Each
$750.00
Audio Video Design
Each
$165.00
Comprehensive Material List
Each
$395.00
Construction Guide
Each
$39.00
Lighting Design
Each
$165.00

Full Specs & Features


Dimension
Depth : 45'
Height : 23' 3"
Width : 96'
Area
Garage : 1275 sq/ft
Main Floor : 3045 sq/ft
Porch : 2010 sq/ft
*Total Square Footage only includes conditioned space and does not include garages, porches, bonus rooms, or decks.
Ceiling
Ceiling Details : Eave height - 12' / Peak height - 23'3"
Main Ceiling : 9'
Roof
Primary Pitch : 6:12
Roof Framing : Truss
Roof Type : PBR
Exterior Wall Framing
Exterior Wall Finish : PBR
Framing : 2x6
Bedroom Features
Main Floor Bedrooms
Main Floor Master Bedroom
Split Bedrooms
Walk In Closet
Kitchen Features
Breakfast Nook
Eating Bar
Kitchen Island
Walk In Pantry Cabinet Pantry
Additional Room Features
Den Office Study Computer
Main Floor Laundry
Mud Room
Garage Features
Oversized Garage
Side Entry Garage
Outdoor Spaces
Covered Front Porch
Covered Rear Porch
Wrap Around Porch
More
Economical To Build
Jack & Jill Bath
Energy Efficient Features
Energy Efficient Design

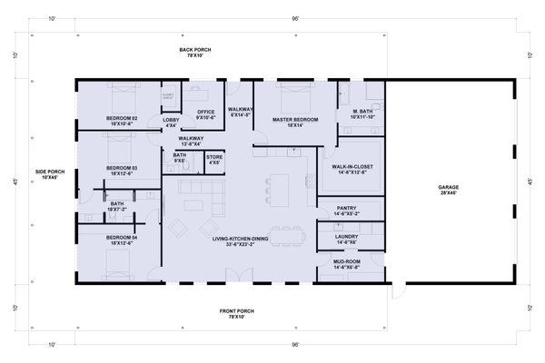
Floor Plan - Main Floor

Dream House Plan - Barndominium Floor Plan - Main Floor Plan #1107-52
Dreamhomesource.com
Questions about this plan? Visit Dreamhomesource.com today or call 1-800-447-0027
View this plan at /plan/3045-square-feet-4-bedroom-3-00-bathroom-3-garage-barndominium-country-traditional-farmhouse-sp371932

In addition to the house plans you order, you may also need a site plan that shows where the house is going to be located on the property. You might also need beams sized to accommodate roof loads specific to your region. Your home builder can usually help you with this. You may also need a septic design unless your lot is served by a sanitary sewer system. Many areas now have area-specific energy codes that also have to be followed. This normally involves filling out a simple form providing documentation that your house plans are in compliance.

To find out what documents you should expect with your house plans, see /help/faq#faq13.

In some regions, there is a second step you will need to take to insure your house plans are in compliance with local codes. Some areas of North America have very strict engineering requirements. Examples of this would be earthquake-prone areas of California and the Pacific Coast, hurricane risk areas of the Florida, Gulf & Carolina Coasts. New York, New Jersey, Nevada, and parts of Illinois require review by a local professional as well. If you are building in these areas, it is most likely you will need to hire a state licensed structural engineer to analyze the design and provide additional drawings and calculations required by your building department. If you aren’t sure, building departments typically have a handout they will give you listing all of the items they require to submit for and obtain a building permit.

Additionally, stock plans do not have a professional stamp attached. If your building department requires one, they will only accept a stamp from a professional licensed in the state where you plan to build. In this case, you will need to take your house plans to a local engineer or architect for review and stamping. In addition, plans which are used to construct homes in Nevada are required to be drawn by a licensed Nevada architect.

Note: All sales on house plans are final. No refunds or exchanges can be given once your order has been fulfilled or once we have begun to customize a home plan to your specifications.