SAVED No Saved House Plans REGISTER LOGIN Empty Cart
Don't lose your saved plans!  Create an account to access your saves whenever you want. See our Terms & Conditions and Privacy Policy.

PLAN 126-181

Photographs may show modified designs.

Save
  • Jump to:
  • All (5)
  • Floor plans (2)
Questions? Get Personalized Help

Key Specs


Plan Sq Ft

1011
sq ft

Plan Bedrooms

2
Beds

Plan Bathrooms

2
Baths

Plan Floors

2
Floors

Plan Garages

0
Garages

Select Plan Set Options

What's included?
$200.00
Additional Construction Sets$55.00/each

Additional hard copies of the plan (can be ordered at the time of purchase and within 90 days of the purchase date).

$165.00
$39.00
$165.00
$125.00
Subtotal
$1195.00
Best Price Guaranteed*

Also order by phone: 1-800-447-0027
 
Questions about building your home?
Get Personalized Help
We do our best to get back to you within 24 - 48 business hours.
Need an answer faster? Call now...
Phone: 1-800-447-0027
Hours:
Ready for Your Call 7 Days a Week
Every Day 7 am - 8:30 pm Eastern

See our Terms & Conditions and Privacy Policy.

 
Wow!
Cost to Build Reports
Only $1.99 Right Now
Use Code CTBFALL
Our Cost to Build Report gives you a personalized estimate for building your home, based on your location, plan, and materials.
Get Cost To Build Report
Limit one per order.

Residential Construction Guide

Learn Building Basics

This downloadable, 26-page guide is full of diagrams and details about plumbing, electrical, and more.

PLAN 126-181

This plan can be customized

Tell us about your desired changes so we can prepare an estimate for the design service. Click the button to submit your request for pricing, or call 1-800-447-0027 for assistance.

Modify This Plan

Plan Description


Please note, the Slab foundation comes with the deck, not the patio. To have the plans with the covered patio, this will be considered a modification. Please call to inquire.

Full Specs & Features


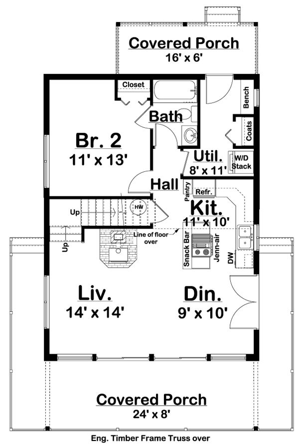
Dimension

Depth : 46'

Height : 26'

Width : 24'

Area

Decks : 352 sq/ft

Main Floor : 768 sq/ft

Porch : 96 sq/ft

Upper Floor : 269 sq/ft

* Total Square Footage typically only includes conditioned space and does not include garages, porches, bonus rooms, or decks.

Ceiling

Ceiling Details : Great Room 20' vaulted ceiling

Main Ceiling : 8'

Upper Ceiling Ft : 8'

Roof

Primary Pitch : 12:12

Roof Framing : Stick

Roof Load : 40

Exterior Wall Framing

Exterior Wall Finish : Siding

Framing : 2x6

Insulation : Fiberglass Batt

Bedroom Features

2 Master Suites

Main Floor Bedrooms

Upstairs Master Bedrooms

Kitchen Features

Breakfast Nook

Eating Bar

Kitchen Island

Additional Room Features

Great Room Living Room

Loft

Main Floor Laundry

Outdoor Spaces

Covered Front Porch

Covered Rear Porch

Grill Deck Sundeck

Wrap Around Porch

More

Economical To Build

Suited For Vacation Home

What's Included In This Plan Set


Plans are typically drawn to ¼” scale and include:
  • Cover Sheet: Designer contact info, plan name/number, legal disclaimers.
  • Foundation Plan(s): This page shows all necessary notations and dimensions including footings, support columns, walls, and excavated/unexcavated areas.
  • Floor Plan(s): Detailed plans for each level showing room dimensions, wall partitions, windows and doors, fixture locations, and ceiling treatments.
  • Exterior Elevations: Views of the home from all four sides showing exterior materials, roof slope, ridge heights, siding and trim notes.
  • Overhead Roof Plan(s): A view of the home from above showing roof pitch, peaks, valleys, and other details.
  • Cross Section(s): A slice of the home from roof to foundation, showing relationships between floors, roof, and foundation.
  • Building Section(s): Shows the relationship between different levels, wall heights, and the overall building volume. May include details like foundation, framing, insulation, and finishes.
  • Electrical Plan(s): Including lighting fixture placement
  • Construction Notes and Detail(s): Shows basic parts and assemblies recommended for the home so the builder can see how things come together.
» See important information before purchasing.
Questions? Call 1-800-447-0027

Plan Set

PDF Set:
$1195.00
PDF plan sets are best for fast electronic delivery and inexpensive local printing.
5 Copy and PDF Set:
$1445.00
5 printed plan sets mailed to you plus PDF plan sets are best for fast electronic delivery and inexpensive local printing.
CAD Set:
$1695.00
For use by design professionals to make substantial changes to your house plan and inexpensive local printing.

Foundation

Crawlspace:
$0.00
Ideal for semi-sloped or level lot, home can be built off of grade, typically 18” - 48”.
Slab:
$0.00
Ideal for level lot, single layer concrete poured directly on grade.
Basement:
$395.00
Ideal for level lot, lower level of home partially or fully underground.
Walk Out Basement:
$495.00
Ideal for a sloping lot, lower level with outdoor access.

Framing

Wood 2x6:
$0.00
Wood 2x6 Exterior Walls

Additional Options

Right-Reading Reverse:
$200.00
Choose this option to reverse your plans and to have the text and dimensions readable.
Additional Construction Sets:
$55.00
Additional hard copies of the plan (can be ordered at the time of purchase and within 90 days of the purchase date).
Audio Video Design:
$165.00
Receive an overlay sheet with suggested placement of audio and video components.
Construction Guide:
$39.00
Educate yourself about basic building ideas with these four detailed diagrams that discuss electrical, plumbing, mechanical, and structural topics.
Lighting Design:
$165.00
Receive an overlay sheet with suggested placement of lighting fixtures.
Material List:
$125.00
A spreadsheet of building supplies needed to construct the infrastructure of your new house. Please note materials lists will not reflect add-ons such as alternate foundation and framing options.

* Alternate Foundations may take time to prepare.

** Options with a fee may take time to prepare. Please call to confirm.

Unless you buy an “unlimited” plan set or a multi-use license you may only build one home from a set of plans. Please call to verify if you intend to build more than once. Plan licenses are non-transferable and cannot be resold.