- Jump to:
- All (3)
- Floor plans (1)
Key Specs
1263
sq ft
3
Beds
2
Baths
1
Floors
2
Garages
Phone: 1-800-447-0027
See our Terms & Conditions and Privacy Policy.
Use Code CTBFALL
Residential Construction Guide
Learn Building Basics
This downloadable, 26-page guide is full of diagrams and details about plumbing, electrical, and more.
PLAN 53-598
This plan can be customized
Tell us about your desired changes so we can prepare an estimate for the design service. Click the button to submit your request for pricing, or call 1-800-447-0027 for assistance.
Plan Description
Floor Plans
Full Specs & Features
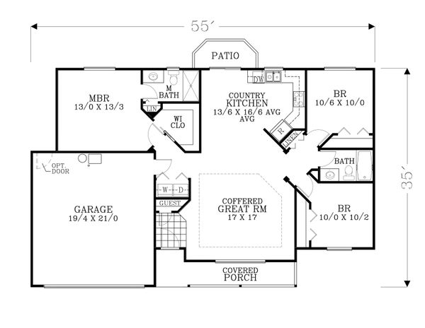
Dimension
Depth : 36'
Height : 18' 9"
Width : 55'
Area
Garage : 406 sq/ft
Main Floor : 1263 sq/ft
Porch : 72 sq/ft
Ceiling
Ceiling Details : COFFERED
Main Ceiling : 8'
Roof
Primary Pitch : 6:12
Roof Framing : TRUSS
Roof Load : 30LB
Roof Type : COMPOSITIN
Exterior Wall Framing
Exterior Wall Finish : LAP, SHINGLE, STONE
Framing : 2X6
Insulation : R-21
Bedroom Features
Main Floor Bedrooms
Main Floor Master Bedroom
Walk In Closet
Additional Room Features
Great Room Living Room
Main Floor Laundry
Garage Features
Front Entry Garage
More
Economical To Build
Energy Efficient Features
Energy Efficient Design
What's Included In This Plan Set
- Foundation Plan: Drawn to 1/4" scale, this page shows all necessary notations and dimensions including support columns, walls and excavated and unexcavated areas.
- Exterior Elevations: A blueprint picture of all four sides showing exterior materials and measurements.
- Floor Plan(s): Detailed plans, drawn to 1/4" scale for each level showing room dimensions, wall partitions, windows, etc.
- Cross Section: A vertical cutaway view of the house from roof to foundation showing details of framing, construction, flooring and roofing.
Plan Set
$1355.75
$2035.75
Foundation
$0.00
$233.75
Additional Options
$722.50
$140.25
$250.75
$33.15
$140.25
* Alternate Foundations may take time to prepare.
** Options with a fee may take time to prepare. Please call to confirm.
 
         
         
                 
                         
                 
                 
                 
                 
                 
                 
                 
                 
                 
                 
                         
                        