- Jump to:
- All (6)
- Floor plans (2)
Key Specs
1509
sq ft
3
Beds
2.5
Baths
2
Floors
2
Garages
Phone: 1-800-447-0027
See our Terms & Conditions and Privacy Policy.
Use Code CTBFALL
Residential Construction Guide
Learn Building Basics
This downloadable, 26-page guide is full of diagrams and details about plumbing, electrical, and more.
PLAN 124-612
This plan can be customized
Tell us about your desired changes so we can prepare an estimate for the design service. Click the button to submit your request for pricing, or call 1-800-447-0027 for assistance.
Plan Description
Floor Plans
Full Specs & Features
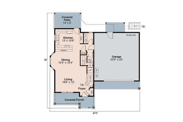
Dimension
Depth : 50'
Height : 25'
Width : 47' 4"
Area
Bonus: 444 sq/ft height 8'
First Floor: 734 sq/ft height 8'
Garage: 624 sq/ft height 8'
Second Floor: 813 sq/ft height 8'
Ceiling
Main Ceiling : 8'
Roof
Primary Pitch : 8:12
Roof Framing : Truss
Roof Load : 25
Roof Type : Shingle
Exterior Wall Framing
Exterior Wall Finish : Siding/Shingle
Framing : 2"x6"
Bedroom Features
Upstairs Bedrooms
Upstairs Master Bedrooms
Walk In Closet
Kitchen Features
Breakfast Nook
Eating Bar
Walk In Pantry Cabinet Pantry
Additional Room Features
Great Room Living Room
Main Floor Laundry
Play Flex Room
Storage Area
Garage Features
Front Entry Garage
Lot Characteristics
Suited For Narrow Lot
Outdoor Spaces
Covered Front Porch
Covered Rear Porch
Outdoor Kitchen Grill
Rooms
Bathroom 3:
56 sq/ft width 5' 8" x depth 10'
Bedroom 2:
101 sq/ft width 9' 8" x depth 10' 6"
Bedroom 3:
105 sq/ft width 10' x depth 10' 6"
Bonus Room - Finished:
238 sq/ft width 17' x depth 14'
Dining Room:
158 sq/ft width 15' 4" x depth 10' 4"
Garage:
562 sq/ft width 22' 6" x depth 25'
Kitchen:
138 sq/ft width 13' x depth 10' 8"
Living Room:
198 sq/ft width 16' 6" x depth 12'
Master Bathroom:
97 sq/ft width 11' 6" x depth 8' 6"
Master Bedroom:
139 sq/ft width 12' 8" x depth 11'
Powder Room:
27 sq/ft width 5' x depth 5' 6"
Utility Room:
36 sq/ft width 6' 8" x depth 5' 6"
What's Included In This Plan Set
Each plan set is drawn at 1/4"=1' scale and includes the following drawings:
- Artist's Rendering: An artist's drawing of the home, usually viewed from the front, and general construction notes.
- Elevations: Shows the front, sides, and rear, including exterior materials, trim sizes, roof pitches, etc.
- Main Floor Plan: Shows placement and dimensions of walls, doors, & windows. Includes the location of appliances, plumbing fixtures, beams, ceiling heights, etc.
- Second Floor Plan (if any): Shows the second floor in the same detail as the main floor. Includes second floor framing and details.
- Foundation Plan: Shows the location of all concrete footings, floor beams, first floor framing, and foundation details. If there is a basement, a basement plan is included which shows all basement details. Foundation types vary; please call to confirm the foundation type of the plan you are interested in.
- Floor Framing Plan (if any): Shows location and spacing of floor joists and supporting walls or beams.
- Roof Framing Plan: Shows roof outlines, conventional framing/trusses, beams, roof framing details, etc. Specific details such as fireplaces, stairways, decks, etc. Details are drawn at 1/2" = 1' scale, and appear as needed throughout the prints.
- Section: Shows a cross-section of the home. Shows support members, exterior and interior materials, insulation, and foundation.
- Electrical Plan: A schematic layout of all lighting, switches and electrical outlets.
Plan Set
$786.25
$956.25
$1615.00
$1763.75
$1933.75
$637.50
Foundation
$0.00
$297.50
$391.00
Framing
$0.00
$297.50
Additional Options
$255.00
$46.75
$637.50
$140.25
$250.75
$33.15
$140.25
* Alternate Foundations may take time to prepare.
** Options with a fee may take time to prepare. Please call to confirm.
 
         
         
                 
                         
                         
                 
                 
                 
                 
                 
                 
                 
                 
                 
                