- Jump to:
- All (4)
- Floor plans (1)
Key Specs
1750
sq ft
3
Beds
2
Baths
1
Floors
2
Garages
Phone: 1-800-447-0027
See our Terms & Conditions and Privacy Policy.
Use Code CTBFALL
Residential Construction Guide
Learn Building Basics
This downloadable, 26-page guide is full of diagrams and details about plumbing, electrical, and more.
PLAN 417-481
This plan can be customized
Tell us about your desired changes so we can prepare an estimate for the design service. Click the button to submit your request for pricing, or call 1-800-447-0027 for assistance.
Plan Description
Floor Plans
Full Specs & Features
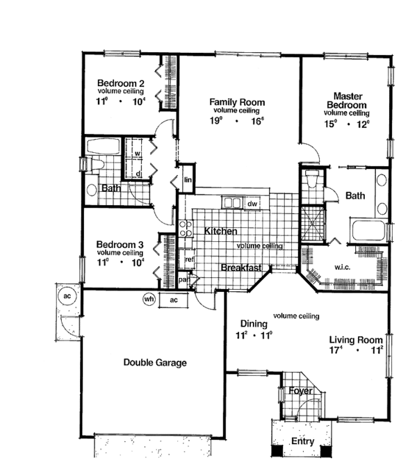
Dimension
Depth : 55' 8"
Height : 19'
Width : 42' 6"
Area
First Floor: 1750 sq/ft
Roof
Primary Pitch : 6:12
Roof Framing : Truss
Exterior Wall Framing
Exterior Wall Finish : Stucco
Framing : Wood - 2x4
Bedroom Features
Formal Dining Room
Formal Living Room / Parlor
Split Bedrooms
Additional Room Features
Family Room Keeping Room
Outdoor Spaces
Covered Front Porch
Rooms
Bathroom 2:
102 sq/ft width 9' 6" x depth 10' 10"
Bedroom 2:
113 sq/ft width 11' x depth 10' 4"
Bedroom 3:
113 sq/ft width 11' x depth 10' 4"
Dining Room:
122 sq/ft width 11' 2" x depth 11'
Foyer:
31 sq/ft width 5' 4" x depth 6'
Garage:
393 sq/ft width 19' 8" x depth 20'
Gathering Room:
313 sq/ft width 19' x depth 16' 6"
Kitchen:
214 sq/ft width 16' 6" x depth 13'
Laundry Room:
18 sq/ft width 6' x depth 3'
Living Room:
193 sq/ft width 17' 4" x depth 11' 2"
Master Bathroom:
122 sq/ft width 12' x depth 10' 2"
Master Bedroom:
180 sq/ft width 15' x depth 12'
What's Included In This Plan Set
All plans are drawn at ¼” scale or larger and include :
- Foundation Plan: This page shows all necessary notations and dimensions including support columns, walls, and excavated/unexcavated areas.
- Exterior Elevations: Views of the home from all four sides showing exterior materials and measurements.
- Floor Plan(s): Detailed plans for each level showing room dimensions, wall partitions, windows and doors, etc.
- Cross Section: A slice of the home from roof to foundation, showing important details like stairs and wall construction.
- Overhead Roof Plan(s): A view of the home from above showing roof pitch, peaks, valleys, and other details.
- Construction Notes and Details: Shows the builder how things come together, like walls, the chimney, insulation, and more.
Plan Set
$807.50
$977.50
$1105.00
$1615.00
$510.00
Foundation
$0.00
Framing
$0.00
Additional Options
$42.50
$85.00
$33.15
$85.00
$25.50
* Alternate Foundations may take time to prepare.
** Options with a fee may take time to prepare. Please call to confirm.
 
         
         
                 
                         
                 
                 
                 
                 
                 
                 
                 
                 
                 
                 
                        