SAVED No Saved House Plans REGISTER LOGIN Empty Cart
Don't lose your saved plans!  Create an account to access your saves whenever you want. See our Terms & Conditions and Privacy Policy.
1 MORE DAY: 20% OFF ENDS TONIGHT

PLAN 53-656

Photographs may show modified designs.

Save
  • Jump to:
  • All (4)
  • Floor plans (2)
Questions? Get Personalized Help

Key Specs


Plan Sq Ft

1878
sq ft

Plan Bedrooms

3
Beds

Plan Bathrooms

2.5
Baths

Plan Floors

2
Floors

Plan Garages

2
Garages

Select Plan Set Options

What's included?
$160.00
$680.00
$132.00
$236.00
$31.20
$132.00
Subtotal
NOW $1276.00
You save $319.00 (20% savings)
Sale ends soon!
Best Price Guaranteed*

Also order by phone: 1-800-447-0027
 
Questions about building your home?
Get Personalized Help
We do our best to get back to you within 24 - 48 business hours.
Need an answer faster? Call now...
Phone: 1-800-447-0027
Hours:
Ready for Your Call 7 Days a Week
Every Day 7 am - 8:30 pm Eastern

See our Terms & Conditions and Privacy Policy.

 
Wow!
Cost to Build Reports
Only $1.99 Right Now
Use Code CTB2026
Our Cost to Build Report gives you a personalized estimate for building your home, based on your location, plan, and materials.
Get Cost To Build Report
Limit one per order.

Residential Construction Guide

Learn Building Basics

This downloadable, 26-page guide is full of diagrams and details about plumbing, electrical, and more.

PLAN 53-656

This plan can be customized

Tell us about your desired changes so we can prepare an estimate for the design service. Click the button to submit your request for pricing, or call 1-800-447-0027 for assistance.

Modify This Plan

Plan Description


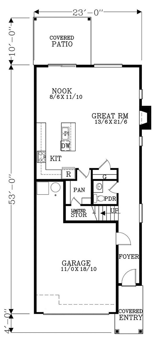
This craftsman design floor plan is 1878 sq ft and has 3 bedrooms and 2.5 bathrooms.

Full Specs & Features


Dimension

Depth : 53'

Height : 28' 7"

Width : 23'

Area

Main Floor : 792 sq/ft

Upper Floor : 1086 sq/ft

* Total Square Footage typically only includes conditioned space and does not include garages, porches, bonus rooms, or decks.

Ceiling

Ceiling Details : VAULTED/COFFERED

Main Ceiling : 9'

Upper Ceiling Ft : 8'

Roof

Roof Framing : TRUSS

Roof Load : 30

Roof Type : COMBINATION

Exterior Wall Framing

Insulation : R-21

Bedroom Features

Upstairs Bedrooms

Upstairs Master Bedrooms

Walk In Closet

Kitchen Features

Kitchen Island

Additional Room Features

Great Room Living Room

Upstairs Laundry

Garage Features

Front Entry Garage

Outdoor Spaces

Covered Front Porch

More

Economical To Build

Energy Efficient Features

Energy Efficient Design

What's Included In This Plan Set


All plans are drawn at ¼” scale or larger and include :
  • Foundation Plan: Drawn to 1/4" scale, this page shows all necessary notations and dimensions including support columns, walls and excavated and unexcavated areas.
  • Exterior Elevations: A blueprint picture of all four sides showing exterior materials and measurements.
  • Floor Plan(s): Detailed plans, drawn to 1/4" scale for each level showing room dimensions, wall partitions, windows, etc.
  • Cross Section: A vertical cutaway view of the house from roof to foundation showing details of framing, construction, flooring and roofing.
» See important information before purchasing.
Questions? Call 1-800-447-0027

Plan Set

PDF Set:
$1276.00
PDF plan sets are best for fast electronic delivery and inexpensive local printing.
CAD and PDF Set:
$1916.00
For use by design professionals to make substantial changes to your house plan and inexpensive local printing plus PDF plan sets are best for fast electronic delivery and inexpensive local printing.

Foundation

Crawlspace:
$0.00
Ideal for semi-sloped or level lot, home can be built off of grade, typically 18” - 48”.
Slab:
$220.00
Ideal for level lot, single layer concrete poured directly on grade.

Framing

Wood 2x6:
$0.00
Wood 2x6 Exterior Walls
Wood 2x4:
$280.00
Wood 2x4 Exterior Walls

Additional Options

Right-Reading Reverse:
$160.00
Choose this option to reverse your plans and to have the text and dimensions readable.
Additional Use License:
$680.00
Allows you to build one more home for each additional license purchased.
Audio Video Design:
$132.00
Receive an overlay sheet with suggested placement of audio and video components.
Comprehensive Material List:
$236.00
A complete list of building supplies needed to construct the infrastructure of your new house, plus an overlay of materials shown directly on your PDF (foundation to rooftop with interior and exterior materials), and a detailed, itemized door and window schedule showing all sizes and types. Please allow 5-7 Business Days for completion. Note, the Comprehensive list is only available with a PDF purchase. The Comprehensive list can be ordered no matter what additional plan options you have selected.
Construction Guide:
$31.20
Educate yourself about basic building ideas with these four detailed diagrams that discuss electrical, plumbing, mechanical, and structural topics.
Lighting Design:
$132.00
Receive an overlay sheet with suggested placement of lighting fixtures.

* Alternate Foundations may take time to prepare.

** Options with a fee may take time to prepare. Please call to confirm.

Unless you buy an “unlimited” plan set or a multi-use license you may only build one home from a set of plans. Please call to verify if you intend to build more than once. Plan licenses are non-transferable and cannot be resold.