SAVED No Saved House Plans REGISTER LOGIN Empty Cart
Don't lose your saved plans!  Create an account to access your saves whenever you want. See our Terms & Conditions and Privacy Policy.
10% OFF THIS PLAN TODAY

PLAN 20-1230

Photographs may show modified designs.

Save
  • Jump to:
  • All (10)
  • Floor plans (3)
Questions? Get Personalized Help

Key Specs


Plan Sq Ft

2024
sq ft

Plan Bedrooms

3
Beds

Plan Bathrooms

2.5
Baths

Plan Floors

2
Floors

Plan Garages

2
Garages

Select Plan Set Options

What's included?
$310.50
$270.00
$148.50
$35.10
$148.50
$265.50
$539.10
Subtotal
NOW $1174.50
You save $130.50 (10% savings)
Sale ends soon!
Best Price Guaranteed*

Also order by phone: 1-800-447-0027
 
Questions about building your home?
Get Personalized Help
We do our best to get back to you within 24 - 48 business hours.
Need an answer faster? Call now...
Phone: 1-800-447-0027
Hours:
Ready for Your Call 7 Days a Week
Every Day 7 am - 8:30 pm Eastern

See our Terms & Conditions and Privacy Policy.

 
Wow!
Cost to Build Reports
Only $1.99 Right Now
Use Code CTB2026
Our Cost to Build Report gives you a personalized estimate for building your home, based on your location, plan, and materials.
Get Cost To Build Report
Limit one per order.

Residential Construction Guide

Learn Building Basics

This downloadable, 26-page guide is full of diagrams and details about plumbing, electrical, and more.

PLAN 20-1230

This plan can be customized

Tell us about your desired changes so we can prepare an estimate for the design service. Click the button to submit your request for pricing, or call 1-800-447-0027 for assistance.

Modify This Plan

Plan Description


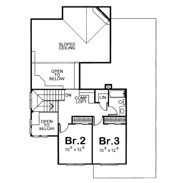
This bungalow design floor plan is 2024 sq ft and has 3 bedrooms and 2.5 bathrooms.

Full Specs & Features


Dimension

Depth: 55'

Height: 31' 9"

Width: 40'

Area

First Floor: 1497 sq/ft

Second Floor: 527 sq/ft

* Total Square Footage typically only includes conditioned space and does not include garages, porches, bonus rooms, or decks.

Roof

Primary Pitch: 8:12

Roof Framing: Truss

Roof Type: Asphalt

Exterior Wall Framing

Exterior Wall Finish: Brick/Siding

Framing: 2"x4"

Bedroom Features

Main Floor Master Bedroom

Walk In Closet

Kitchen Features

Kitchen Island

Additional Room Features

Den Office Study Computer

Loft

Lot Characteristics

Suited For Narrow Lot

Outdoor Spaces

Balcony

What's Included In This Plan Set


Plans are typically drawn to ¼” scale and include:
  • Cover Sheet: Front elevation and informative reference sections including: general notes and design criteria
  • Foundation Plan(s): Drafted at 1/4" scale. Poured or block basement or slab foundations are standard. Basement foundations show the HVAC equipment, structural information, steel beam and pole locations and the direction and spacing of the floor system above. Alternate foundations are available for a fee.
  • Floor Plan(s): 1/4" scale. Fully dimensioned from stud to stud for ease of framing. The detailed drawings include such things as structural header locations, framing layout and kitchen layout.
  • Exterior Elevations: Drafted at 1/4" scale for the front and 1/8" scale for the rear and sides. All elevations are noted and an aerial view of the roof is provided, showing all hips, valleys and ridges.
  • Overhead Roof Plan(s): A view of the home from above showing roof pitch, peaks, valleys, and other details.
  • Cross Section(s): A slice of the home from roof to foundation, showing relationships between floors, roof, and foundation.
  • Electrical Plan(s): Illustrated on a separate page for clarity, the electrical plan shows suggested electrical layout for the main and second level floor plans. Typical wall and stair sections are provided to further explain construction of these areas.
  • Kitchen Cabinet Elevation(s): Useful for the cabinet and bidding process, this page shows all kitchen and bathroom cabinets as well as any other cabinet elevations. Not included with all plans, please call for details.
  • Construction Notes / Detail(s): Shows basic parts and assemblies recommended for the home so the builder can see how things come together.
NOTE: This plan is not available to be built in the state of Nevada. Please call with questions.
» See important information before purchasing.
Questions? Call 1-800-447-0027

Plan Set

PDF Set:
$1174.50
PDF plan sets are best for fast electronic delivery and inexpensive local printing.
PDF Unlimited Build:
$1624.50
PDF plan sets are best for fast electronic delivery and inexpensive local printing.
CAD and PDF Set:
$1872.00
For use by design professionals to make substantial changes to your house plan and inexpensive local printing plus PDF plan sets are best for fast electronic delivery and inexpensive local printing.

Foundation

Basement:
$0.00
Ideal for level lot, lower level of home partially or fully underground.
Crawlspace:
$310.50
Ideal for semi-sloped or level lot, home can be built off of grade, typically 18” - 48”.
Slab:
$310.50
Ideal for level lot, single layer concrete poured directly on grade.
Walk Out Basement:
$351.00
Ideal for a sloping lot, lower level with outdoor access.

Framing

Wood 2x4:
$0.00
Wood 2x4 Exterior Walls
Wood 2x6:
$310.50
Wood 2x6 Exterior Walls

Additional Options

Right-Reading Reverse:
$310.50
Choose this option to reverse your plans and to have the text and dimensions readable.
Additional Use License:
$270.00
Allows you to build one more home for each additional license purchased.
Audio Video Design:
$148.50
Receive an overlay sheet with suggested placement of audio and video components.
Construction Guide:
$35.10
Educate yourself about basic building ideas with these four detailed diagrams that discuss electrical, plumbing, mechanical, and structural topics.
Lighting Design:
$148.50
Receive an overlay sheet with suggested placement of lighting fixtures.
Material List:
$265.50
A spreadsheet of building supplies needed to construct the infrastructure of your new house. Please note materials lists will not reflect add-ons such as alternate foundation and framing options.
Unlimited Use License:
$539.10
Allows you to build this home as many times as you want.

* Alternate Foundations may take time to prepare.

** Options with a fee may take time to prepare. Please call to confirm.

Unless you buy an “unlimited” plan set or a multi-use license you may only build one home from a set of plans. Please call to verify if you intend to build more than once. Plan licenses are non-transferable and cannot be resold.