SAVED No Saved House Plans REGISTER LOGIN Empty Cart
Don't lose your saved plans!  Create an account to access your saves whenever you want. See our Terms & Conditions and Privacy Policy.
SALE EXTENDED: 15% OFF

PLAN 929-1077

Photographs may show modified designs.

Save
  • Jump to:
  • All (4)
  • Floor plans (2)
Questions? Get Personalized Help

Key Specs


Plan Sq Ft

2115
sq ft

Plan Bedrooms

3
Beds

Plan Bathrooms

2
Baths

Plan Floors

1
Floors

Plan Garages

2
Garages

Select Plan Set Options

What's included?
$225.25
$140.25
$33.15
$140.25
$289.00
Subtotal
NOW $1466.25
You save $258.75 (15% savings)
Sale ends soon!
Best Price Guaranteed*

Also order by phone: 1-800-447-0027
 
Questions about building your home?
Get Personalized Help
We do our best to get back to you within 24 - 48 business hours.
Need an answer faster? Call now...
Phone: 1-800-447-0027
Hours:
Ready for Your Call 7 Days a Week
Every Day 7 am - 8:30 pm Eastern

See our Terms & Conditions and Privacy Policy.

 
Wow!
Cost to Build Reports
Only $1.99 Right Now
Use Code CTBFALL
Our Cost to Build Report gives you a personalized estimate for building your home, based on your location, plan, and materials.
Get Cost To Build Report
Limit one per order.

Residential Construction Guide

Learn Building Basics

This downloadable, 26-page guide is full of diagrams and details about plumbing, electrical, and more.

PLAN 929-1077

This plan can be customized

Tell us about your desired changes so we can prepare an estimate for the design service. Click the button to submit your request for pricing, or call 1-800-447-0027 for assistance.

Modify This Plan

Plan Description


Elegant and relaxed, this one-story home includes many thoughtful amenities. Check out the screen porch in back, where a wet bar invites guests to mix their own drinks and a fireplace warms up chilly nights. The master suite features a five-piece bath.

Full Specs & Features


Dimension

Depth : 64' 10"

Height : 29' 1"

Width : 73' 3"

Area

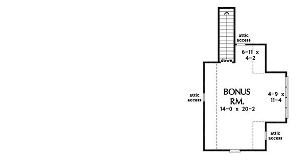
Bonus : 391 sq/ft

Garage : 721 sq/ft

Main Floor : 2115 sq/ft

Patios : 426 sq/ft

Porch : 745 sq/ft

* Total Square Footage typically only includes conditioned space and does not include garages, porches, bonus rooms, or decks.

Ceiling

Ceiling Details : Coffered ceiling in Great Room; tray ceiling in Master Bedroom; cathedral ceiling in Bedroom/Study & on Screened Porch

Main Ceiling : 9'

Roof

Primary Pitch : 12:12

Roof Framing : Stick/Conventional

Roof Load : 20 psf

Roof Type : Asphalt Shingle

Secondary Pitch : 12:12

Exterior Wall Framing

Exterior Wall Finish : Brick & Siding

Framing : 2 x 4

Insulation : R13

Bedroom Features

Main Floor Bedrooms

Main Floor Master Bedroom

Split Bedrooms

Walk In Closet

Kitchen Features

Eating Bar

Kitchen Island

Walk In Pantry Cabinet Pantry

Additional Room Features

Den Office Study Computer

Great Room Living Room

Main Floor Laundry

Unfinished Future Space

Garage Features

Side Entry Garage

Lot Characteristics

Suited For Corner Lot

Outdoor Spaces

Covered Front Porch

Covered Rear Porch

More

Empty Nester

Rooms

Bedroom 2:

width 13' x depth 12'

Bedroom/Study:

width 12' 8" x depth 14' 2"

Dining Room:

width 13' 8" x depth 13' 2"

Foyer:

width 7' 4" x depth 5' 6"

Garage:

width 25' 6" x depth 24' 4"

Great Room:

width 16' 6" x depth 19' 8"

Kitchen:

width 13' 8" x depth 16'

Master Bedroom:

width 15' x depth 16'

Screened Porch:

width 13' 4" x depth 14' 2"

Utility Room:

width 8' 2" x depth 10' 10"

What's Included In This Plan Set


Purchasing a CAD set gives you an unlimited build license. All other plan sets, excluding the Single Set for bidding purposes, allow you to build the home one time.
  • Cover Sheet: A rendering of the front exterior of the house.
  • Foundation Plan(s): This plan gives the foundation layout, including support walls, excavated and unexcavated areas, if any, foundation notes and details, and floor framing.
  • Floor Plan(s): These plans show the layout of each floor of the house. Rooms and interior spaces are carefully dimensioned and keys are given for cross-section details provided later in the plans, as well as window and door schedules. These plans may also show the location of kitchen appliances and plumbing fixtures, and may suggest locations for electrical fixtures, switches and outlets.
  • Exterior Elevations: Included are front, rear, left and right sides of the house. Exterior materials, details and measurements are also given.
  • Interior Elevations: The interior elevation drawings show a suggested layout design of cabinets, utility rooms, fireplaces, bookcases, built-in units and other special interior features depending on the nature and complexity of the item.
  • Overhead Roof Plan(s): The roof plan shows a bird's eye view of the overall layout of the roof, ridges, valleys, and slopes.
  • Cross Section(s): Important changes in floor, ceiling and roof heights or the relationship of one level to another are called out. Also shown, when applicable, are exterior details such as railing and banding.
  • Construction Notes / Detail(s): Shows basic parts and assemblies recommended for the home so the builder can see how things come together.
  • Door / Window Schedule(s): Sizes, quantities and descriptions of all doors and windows shown on the plan.
  • Structural Information: Overall layout and necessary details for the ceiling, second-floor framing (if applicable) and roof construction. If trusses are used, it's suggested that you use a local truss manufacturer to design your trusses to comply with your local codes and regulations. Important: design loads and weather conditions vary by region. As a result the size, spacing, and layout of all structural elements in this home design may need approval by a structural engineer or code official based on your specific site location.
  • Code Drawn To: Each plan is designed to be consistent with CABO One and Two Family Dwelling Code or the International Residential Code in effect at the time the plan was created. Modifications may be necessary to meet applicable building codes, ordinances, local climatic, and geographical design criteria. Consult a builder, architect or other construction professional as necessary. Manufacturer instructions should be followed for all materials, appliances, and systems. Heating/air conditioning layouts, plumbing pipe layouts, and electrical wiring layouts are not included. Consult a local mechanical contractor for systems suitable for local climate conditions.
» See important information before purchasing.
Questions? Call 1-800-447-0027

Plan Set

PDF Set:
$1466.25
PDF plan sets are best for fast electronic delivery and inexpensive local printing.
CAD Unlimited Build:
$2550.00
For use by design professionals to make substantial changes to your house plan and inexpensive local printing.
Study Set:
$1296.25
One electronic set for bidding purposes only. Not a legal building set for construction.

Foundation

Crawlspace:
$0.00
Ideal for semi-sloped or level lot, home can be built off of grade, typically 18” - 48”.
Basement:
$365.50
Ideal for level lot, lower level of home partially or fully underground.
Slab:
$365.50
Ideal for level lot, single layer concrete poured directly on grade.

Framing

Wood 2x4:
$0.00
Wood 2x4 Exterior Walls
Wood 2x6:
$365.50
Wood 2x6 Exterior Walls

Additional Options

Right-Reading Reverse:
$225.25
Choose this option to reverse your plans and to have the text and dimensions readable.
Audio Video Design:
$140.25
Receive an overlay sheet with suggested placement of audio and video components.
Construction Guide:
$33.15
Educate yourself about basic building ideas with these four detailed diagrams that discuss electrical, plumbing, mechanical, and structural topics.
Lighting Design:
$140.25
Receive an overlay sheet with suggested placement of lighting fixtures.
Material List:
$289.00
A spreadsheet of building supplies needed to construct the infrastructure of your new house. Please note materials lists will not reflect add-ons such as alternate foundation and framing options.

* Alternate Foundations may take time to prepare.

** Options with a fee may take time to prepare. Please call to confirm.

Unless you buy an “unlimited” plan set or a multi-use license you may only build one home from a set of plans. Please call to verify if you intend to build more than once. Plan licenses are non-transferable and cannot be resold.