SAVED No Saved House Plans REGISTER LOGIN Empty Cart
Don't lose your saved plans!  Create an account to access your saves whenever you want. See our Terms & Conditions and Privacy Policy.
SALE EXTENDED: 15% OFF

PLAN 3-101

Photographs may show modified designs.

Save
  • Jump to:
  • All (5)
  • Floor plans (2)
Questions? Get Personalized Help

Key Specs


Plan Sq Ft

2146
sq ft

Plan Bedrooms

4
Beds

Plan Bathrooms

2.5
Baths

Plan Floors

2
Floors

Plan Garages

2
Garages

Select Plan Set Options

What's included?
Additional Construction Sets$42.50/each

Additional hard copies of the plan (can be ordered at the time of purchase and within 90 days of the purchase date).

$140.25
$33.15
$140.25
$68.00
Mirror Reversed Sets$34.00

Printed sets showing plan in reverse, text and dimensions will be backwards.

Subtotal
NOW $573.75
You save $101.25 (15% savings)
Sale ends soon!
Best Price Guaranteed*

Also order by phone: 1-800-447-0027
 
Questions about building your home?
Get Personalized Help
We do our best to get back to you within 24 - 48 business hours.
Need an answer faster? Call now...
Phone: 1-800-447-0027
Hours:
Ready for Your Call 7 Days a Week
Every Day 7 am - 8:30 pm Eastern

See our Terms & Conditions and Privacy Policy.

 
Wow!
Cost to Build Reports
Only $1.99 Right Now
Use Code CTBFALL
Our Cost to Build Report gives you a personalized estimate for building your home, based on your location, plan, and materials.
Get Cost To Build Report
Limit one per order.

Residential Construction Guide

Learn Building Basics

This downloadable, 26-page guide is full of diagrams and details about plumbing, electrical, and more.

PLAN 3-101

This plan can be customized

Tell us about your desired changes so we can prepare an estimate for the design service. Click the button to submit your request for pricing, or call 1-800-447-0027 for assistance.

Modify This Plan

Plan Description


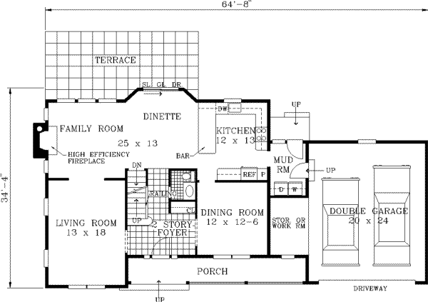
This country design floor plan is 2146 sq ft and has 4 bedrooms and 2.5 bathrooms.

Full Specs & Features


Dimension

Depth : 35'

Width : 65'

Area

First Floor: 1125 sq/ft

Second Floor: 1021 sq/ft

* Total Square Footage typically only includes conditioned space and does not include garages, porches, bonus rooms, or decks.

Exterior Wall Framing

Exterior Wall Finish : Siding

Framing : 2"x4"

Bedroom Features

Upstairs Master Bedrooms

Walk In Closet

Kitchen Features

Breakfast Nook

Additional Room Features

Family Room Keeping Room

Outdoor Spaces

Covered Front Porch

Rooms

Bedroom 2:

162 sq/ft width 12' x depth 13' 6"

Bedroom 3:

132 sq/ft width 12' x depth 11'

Bedroom 4:

162 sq/ft width 12' x depth 13' 6"

Dining Room:

150 sq/ft width 12' x depth 12' 6"

Family Room:

325 sq/ft width 25' x depth 13'

Garage:

480 sq/ft width 20' x depth 24'

Kitchen:

156 sq/ft width 12' x depth 13'

Living Room:

234 sq/ft width 13' x depth 18'

Master Suite:

221 sq/ft width 13' x depth 17'

What's Included In This Plan Set


Content may vary depending on the size and complexity of the home and the style of the individual designer:Plans are typically drawn to ¼” scale and include:
  • Foundation Plan(s): This page shows all necessary notations and dimensions including footings, support columns, walls, and excavated/unexcavated areas.
  • Floor Plan(s): Detailed plans for each level showing room dimensions, wall partitions, windows and doors, fixture locations, and ceiling treatments.
  • Exterior Elevations: show the front, rear and sides of the house, including exterior materials, details and measurements.
  • Interior Elevations: show the specific details of cabinets (kitchen).
  • Overhead Roof Plan(s): A view of the home from above showing roof pitch, peaks, valleys, and other details.
  • Cross Section(s): Show details of the house as though it were cut in slices from the roof to the foundation. The cross sections specify the home's construction, insulation, flooring and roofing details.
  • Electrical Plan(s): Schematic electrical layouts show the suggested locations for switches, fixtures and outlets. These details may be shown on the floor plan or on a separate diagram.
  • Construction Notes / Detail(s): Shows basic parts and assemblies recommended for the home so the builder can see how things come together.
» See important information before purchasing.
Questions? Call 1-800-447-0027

Plan Set

5 Copy Set:
$573.75
5 printed plan sets mailed to you.
8 Copy Set:
$658.75
8 printed plan sets mailed to you.
PDF Set:
$668.95
PDF plan sets are best for fast electronic delivery and inexpensive local printing.
Reproducible Set:
$668.95
For inexpensive local printing / making minor adjustments by hand. 1 printed set, typically on Bond paper.

Foundation

Basement:
$0.00
Ideal for level lot, lower level of home partially or fully underground.
Crawlspace:
$0.00
Ideal for semi-sloped or level lot, home can be built off of grade, typically 18” - 48”.
Slab:
$0.00
Ideal for level lot, single layer concrete poured directly on grade.

Framing

Wood 2x4:
$0.00
Wood 2x4 Exterior Walls

Additional Options

Additional Construction Sets:
$42.50
Additional hard copies of the plan (can be ordered at the time of purchase and within 90 days of the purchase date).
Audio Video Design:
$140.25
Receive an overlay sheet with suggested placement of audio and video components.
Construction Guide:
$33.15
Educate yourself about basic building ideas with these four detailed diagrams that discuss electrical, plumbing, mechanical, and structural topics.
Lighting Design:
$140.25
Receive an overlay sheet with suggested placement of lighting fixtures.
Material List:
$68.00
A spreadsheet of building supplies needed to construct the infrastructure of your new house. Please note materials lists will not reflect add-ons such as alternate foundation and framing options.
Mirror Reversed Sets:
$34.00
A mirror-reversed set is a printed copy of your house, resulting in the same image you would see if you held the drawing up to a mirror. Everything, including the text, is backward in relation to the original design. These kinds of drawing are typically used to reorient an original plan more advantageously on a site, either because the homeowner prefers it that way or because of limitations of the site itself. Note: Mirror reverse sets are only available with a 5 copy or 8 copy set. With a Reproducible, PDF, or CAD set, you can print mirrored copies locally. In addition: 5 Copy set selected, should only allow 4 mirrored sets to be selected. 8 Copy set selected, should only allow 7 mirrored sets to be selected.

* Alternate Foundations may take time to prepare.

** Options with a fee may take time to prepare. Please call to confirm.

Unless you buy an “unlimited” plan set or a multi-use license you may only build one home from a set of plans. Please call to verify if you intend to build more than once. Plan licenses are non-transferable and cannot be resold.