SAVED No Saved House Plans REGISTER LOGIN Empty Cart
Don't lose your saved plans!  Create an account to access your saves whenever you want. See our Terms & Conditions and Privacy Policy.
15% OFF FOR THE FIRST 25 CUSTOMERS

PLAN 901-131

Photographs may show modified designs.

Save
  • Jump to:
  • All (7)
  • Floor plans (2)
Questions? Get Personalized Help
Home  >  Style  >  Beach

Key Specs


Plan Sq Ft

2153
sq ft

Plan Bedrooms

3
Beds

Plan Bathrooms

2.5
Baths

Plan Floors

2
Floors

Plan Garages

2
Garages

Select Plan Set Options

What's included?
$127.50
$140.25
$33.15
$140.25
Subtotal
NOW $2125.00
You save $375.00 (15% savings)
Sale ends soon!
Best Price Guaranteed*

Also order by phone: 1-800-447-0027
 
Questions about building your home?
Get Personalized Help
We do our best to get back to you within 24 - 48 business hours.
Need an answer faster? Call now...
Phone: 1-800-447-0027
Hours:
Ready for Your Call 7 Days a Week
Every Day 7 am - 8:30 pm Eastern

See our Terms & Conditions and Privacy Policy.

 
Wow!
Cost to Build Reports
Only $1.99 Right Now
Use Code CTB2026
Our Cost to Build Report gives you a personalized estimate for building your home, based on your location, plan, and materials.
Get Cost To Build Report
Limit one per order.

Residential Construction Guide

Learn Building Basics

This downloadable, 26-page guide is full of diagrams and details about plumbing, electrical, and more.

PLAN 901-131

This plan can be customized

Tell us about your desired changes so we can prepare an estimate for the design service. Click the button to submit your request for pricing, or call 1-800-447-0027 for assistance.

Modify This Plan

Plan Description


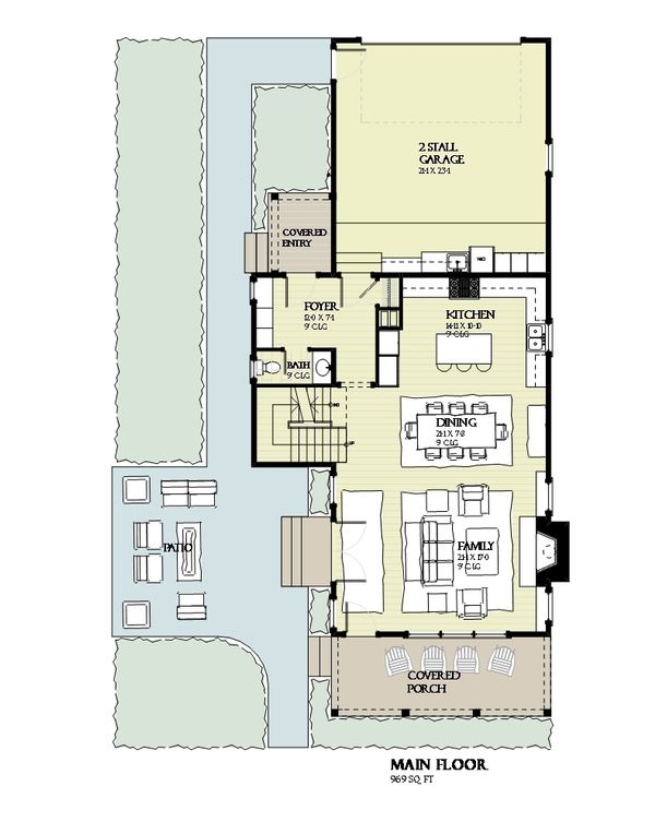
This neighborhood cottage plan encourages outdoor living. With a front covered porch and wrap around patio complete with fire feature you will have plenty of space to relax. The open main floor with family, dining, and kitchen flow great for entertaining. A large foyer and mud room off the side entry and garage provide ample storage. The second floor has a generous master suite, two additional bedrooms which share a bath as well as a laundry room.

Full Specs & Features


Dimension

Depth : 68'

Height : 31' 1"

Width : 30'

Area

Main Floor : 969 sq/ft

Upper Floor : 1184 sq/ft

* Total Square Footage typically only includes conditioned space and does not include garages, porches, bonus rooms, or decks.

Ceiling

Main Ceiling : 9'

Upper Ceiling Ft : 8'

Roof

Primary Pitch : 10/12

Roof Framing : truss

Exterior Wall Framing

Framing : 2x6

Bedroom Features

Upstairs Bedrooms

Upstairs Master Bedrooms

Walk In Closet

Kitchen Features

Eating Bar

Kitchen Island

Additional Room Features

Great Room Living Room

Mud Room

Storage Area

Upstairs Laundry

Garage Features

Rear Entry Garage

Lot Characteristics

Suited For Corner Lot

Suited For Narrow Lot

Suited For Sloping Lot

Suited For View Lot

Outdoor Spaces

Courtyard

Covered Front Porch

Covered Rear Porch

Outdoor Kitchen Grill

More

Economical To Build

Empty Nester

Suited For Vacation Home

Energy Efficient Features

Energy Efficient Design

What's Included In This Plan Set


Plans are typically drawn to ¼” scale and include:
  • Cover Sheet: This page includes a color rendering of your home and an overview of the floor plan.
  • Foundation Plan(s): This page shows all necessary notations and dimensions including footings, support columns, walls, and excavated/unexcavated areas.
  • Floor Plan(s): Detailed plans for each level showing room dimensions, wall partitions, windows and doors, fixture locations, and ceiling treatments.
  • Exterior Elevations: Front, rear and side elevation views, illustrating exterior materials, details, wall heights, roof pitches, window location and sizes.
  • Overhead Roof Plan(s): A view of the home from above showing roof pitch, peaks, valleys, and other details.
  • Cross Section(s): A slice of the home from roof to foundation, showing relationships between floors, roof, and foundation.
  • Construction Notes / Detail(s): This section gives your builder ceiling heights, a sense of overall home construction and wall sections, including material callouts, eave detail, roof pitch and foundation construction.
  • Specification(s): Every home was specifically designed to achieve a highly livable and comfortably beautiful, proportioned space. For that reason, each blueprint comes with recommended styles for your interior and exterior doors, window trim, baseboards, garage doors and, if applicable to your house style, columns and brackets.
» See important information before purchasing.
Questions? Call 1-800-447-0027

Plan Set

5 Copy Set:
$2125.00
5 printed plan sets mailed to you.
PDF Set:
$2125.00
PDF plan sets are best for fast electronic delivery and inexpensive local printing.
8 Copy Set:
$2210.00
8 printed plan sets mailed to you.
CAD Set:
$2868.75
For use by design professionals to make substantial changes to your house plan and inexpensive local printing.
Single Set:
$2125.00
One printed set for bidding purposes only. Not a legal building set for construction.

Foundation

Basement:
$0.00
Ideal for level lot, lower level of home partially or fully underground.

Additional Options

Right-Reading Reverse:
$127.50
Choose this option to reverse your plans and to have the text and dimensions readable.
Audio Video Design:
$140.25
Receive an overlay sheet with suggested placement of audio and video components.
Construction Guide:
$33.15
Educate yourself about basic building ideas with these four detailed diagrams that discuss electrical, plumbing, mechanical, and structural topics.
Lighting Design:
$140.25
Receive an overlay sheet with suggested placement of lighting fixtures.

* Alternate Foundations may take time to prepare.

** Options with a fee may take time to prepare. Please call to confirm.

Unless you buy an “unlimited” plan set or a multi-use license you may only build one home from a set of plans. Please call to verify if you intend to build more than once. Plan licenses are non-transferable and cannot be resold.