- Jump to:
- All (15)
- Floor plans (2)
Key Specs
2212
sq ft
4
Beds
2.5
Baths
1
Floors
2
Garages
Phone: 1-800-447-0027
See our Terms & Conditions and Privacy Policy.
Use Code CTBFALL
Residential Construction Guide
Learn Building Basics
This downloadable, 26-page guide is full of diagrams and details about plumbing, electrical, and more.
PLAN 21-312
This plan can be customized
Tell us about your desired changes so we can prepare an estimate for the design service. Click the button to submit your request for pricing, or call 1-800-447-0027 for assistance.
Plan Description
Floor Plans
Full Specs & Features
Dimension
Depth : 63'
Height : 28' 3"
Width : 70' 6"
Area
Bonus: 436 sq/ft
First Floor: 2212 sq/ft height 9'
Garage: 803 sq/ft
Ceiling
Bonus Ceiling : 8'
Main Ceiling : 9'
Roof
Primary Pitch : 12:12
Roof Framing : stick
Roof Load : 30 lbs psf
Roof Type : Hip/Gable
Secondary Pitch : 4:12
Exterior Wall Framing
Exterior Wall Finish : stone/siding
Framing : 2"x4"
Bedroom Features
Split Bedrooms
Walk In Closet
Kitchen Features
Breakfast Nook
Eating Bar
Walk In Pantry Cabinet Pantry
Additional Room Features
Den Office Study Computer
Great Room Living Room
Play Flex Room
Storage Area
Unfinished Future Space
Outdoor Spaces
Covered Front Porch
Covered Rear Porch
Rooms
Bedroom 2:
121 sq/ft width 11' x depth 11'
Bedroom 3:
121 sq/ft width 11' x depth 11'
Bedroom 4:
117 sq/ft width 10' 8" x depth 11'
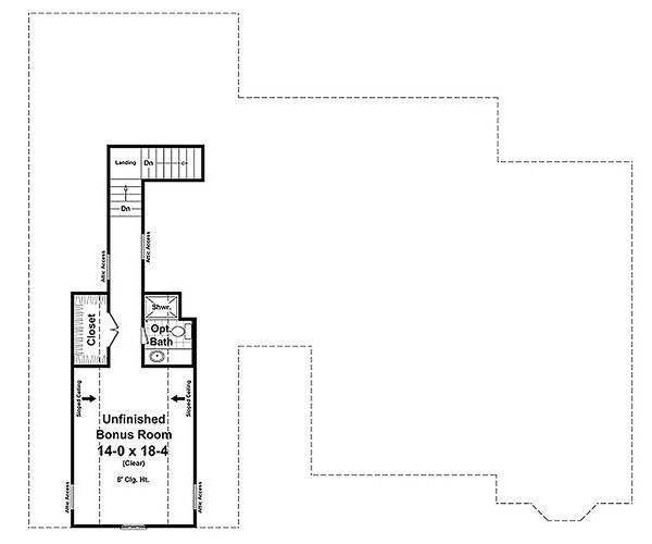
Bonus Room - Unfinished:
256 sq/ft width 14' x depth 18' 4"
Breakfast:
152 sq/ft width 12' x depth 12' 8"
Foyer:
77 sq/ft width 6' 2" x depth 12' 6"
Garage:
639 sq/ft width 23' 10" x depth 26' 10"
Great Room:
270 sq/ft width 18' x depth 15'
Kitchen:
188 sq/ft width 12' x depth 15' 8"
Master Bathroom:
141 sq/ft width 8' 10" x depth 16'
Master Bedroom:
220 sq/ft width 14' 8" x depth 15'
Master Closet:
47 sq/ft width 8' 10" x depth 5' 4"
Porch - Front:
173 sq/ft width 21' 8" x depth 8'
Porch - Rear:
135 sq/ft width 18' x depth 7' 6"
What's Included In This Plan Set
- Cover Sheet: Color rendering or black and white image of the exterior
- Foundation Plan(s): Drawn to 1/4" scale, this page shows all necessary notations and dimensions including support columns, walls and excavated and unexcavated areas.
- Floor Plan(s): Detailed plans, drawn to 1/4" scale for each level showing room dimensions, wall partitions, windows, etc. as well as the location of electrical outlets and switches.
- Exterior Elevations: A blueprint picture of all four sides showing exterior materials and measurements.
- Interior Elevations: Where applicable, each house plan set includes relevant interior elevations, including cabinets, cabinet details, columns and walls with unique conditions.
- Overhead Roof Plan(s): Overhead view of roof.
- Cross Section(s): A vertical cutaway view of the house from roof to foundation showing details of framing, construction, flooring and roofing.
- Electrical Plan(s): Lighting, outlets, switches, detectors, etc.
- Kitchen Cabinet Elevation(s): Scaled drawings of interior cabinets.
- Construction Notes and Detail(s): Shows basic parts and assemblies recommended for the home so the builder can see how things come together.
- Framing Detail(s): Ceiling joist size and spacing and layouts. If included, the framing layout is intended to be a suggested layout only. Design loads and weather conditions vary by region. As a result the size, spacing, and layout of all structural elements in this home design may need approval by a structural engineer or code official based on your specific site location.
- Wall Section(s): Exterior wall and roof sections and specialty details.
Plan Set
$1190.00
$1275.00
$1445.00
Foundation
$0.00
$0.00
Additional Options
$127.50
$51.00
$140.25
$33.15
$140.25
$127.50
$42.50
* Alternate Foundations may take time to prepare.
** Options with a fee may take time to prepare. Please call to confirm.
 
         
         
                 
                         
                         
                 
                 
                 
                 
                 
                 
                 
                 
                 
                 
                         
                        