SAVED No Saved House Plans REGISTER LOGIN Empty Cart
Don't lose your saved plans!  Create an account to access your saves whenever you want. See our Terms & Conditions and Privacy Policy.

PLAN 1117-6

Photographs may show modified designs.

Save
  • Jump to:
  • All (8)
  • Floor plans (1)
Questions? Get Personalized Help

Key Specs


Plan Sq Ft

2240
sq ft

Plan Bedrooms

5
Beds

Plan Bathrooms

2.5
Baths

Plan Floors

1
Floors

Plan Garages

3
Garages

Select Plan Set Options

What's included?
$245.00
$165.00
$295.00
$39.00
$165.00
Subtotal
$1795.00
Best Price Guaranteed*

Also order by phone: 1-800-447-0027
 
Questions about building your home?
Get Personalized Help
We do our best to get back to you within 24 - 48 business hours.
Need an answer faster? Call now...
Phone: 1-800-447-0027
Hours:
Ready for Your Call 7 Days a Week
Every Day 7 am - 8:30 pm Eastern

See our Terms & Conditions and Privacy Policy.

 
Wow!
Cost to Build Reports
Only $1.99 Right Now
Use Code CTBFALL
Our Cost to Build Report gives you a personalized estimate for building your home, based on your location, plan, and materials.
Get Cost To Build Report
Limit one per order.

Residential Construction Guide

Learn Building Basics

This downloadable, 26-page guide is full of diagrams and details about plumbing, electrical, and more.

PLAN 1117-6

This plan can be customized

Tell us about your desired changes so we can prepare an estimate for the design service. Click the button to submit your request for pricing, or call 1-800-447-0027 for assistance.

Modify This Plan

Plan Description


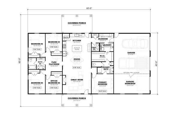
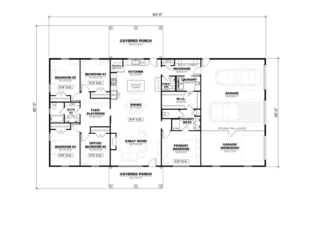
This barndominium design floor plan is 2240 sq ft and has 5 bedrooms and 2.5 bathrooms.

Full Specs & Features


Dimension

Depth : 60'

Height : 19' 9"

Width : 80'

Area

Garage : 640 sq/ft

Main Floor : 2240 sq/ft

Patios : 240 sq/ft

Porch : 160 sq/ft

Storage : 320 sq/ft

* Total Square Footage typically only includes conditioned space and does not include garages, porches, bonus rooms, or decks.

Ceiling

Main Ceiling : 9'

Roof

Primary Pitch : 6:12

Secondary Pitch : 8:12

Exterior Wall Framing

Framing : 2x6

Bedroom Features

Main Floor Master Bedroom

Split Bedrooms

Walk In Closet

Kitchen Features

Breakfast Nook

Kitchen Island

Walk In Pantry Cabinet Pantry

Additional Room Features

Den Office Study Computer

Family Room Keeping Room

Great Room Living Room

Hobby Rec Room Game Room

Main Floor Laundry

Mud Room

Play Flex Room

Storage Area

Workshop

Garage Features

Oversized Garage

Side Entry Garage

Lot Characteristics

Suited For Corner Lot

Outdoor Spaces

Covered Front Porch

Covered Rear Porch

More

Additional Half Bath

Economical To Build

Energy Efficient Features

Energy Efficient Design

What's Included In This Plan Set


Plans are typically drawn to ¼” scale and include:
  • Foundation Plan(s): This page shows all necessary notations and dimensions including footings, support columns, walls, and excavated/unexcavated areas.
  • Floor Plan(s): Detailed plans for each level showing room dimensions, wall partitions, windows and doors, fixture locations, and ceiling treatments.
  • Exterior Elevations: Views of the home from all four sides showing exterior materials, roof slope, ridge heights, siding and trim notes.
  • Interior Elevations: Detailed drawings of kitchen cabinet elevations and other elements.
  • Overhead Roof Plan(s): A view of the home from above showing roof pitch, peaks, valleys, and other details.
  • Cross Section(s): A slice of the home from roof to foundation, showing relationships between floors, roof, and foundation.
  • Electrical Plan(s): Electrical plans showing proposed lighting and outlet locations
  • Kitchen Cabinet Elevation(s): Interior elevations of the kitchen showing proposed cabinet sizes, plumbing and appliance locations, etc.
  • Construction Notes and Detail(s): Shows basic parts and assemblies recommended for the home so the builder can see how things come together.
  • Wall Section(s): Detailed drawings showing wall connections, from foundation to the roof, wall connections to foundation, window installation, siding installation, stair details, and more.
» See important information before purchasing.
Questions? Call 1-800-447-0027

Plan Set

PDF Set:
$1795.00
PDF plan sets are best for fast electronic delivery and inexpensive local printing.
PDF Unlimited Build:
$2195.00
PDF plan sets are best for fast electronic delivery and inexpensive local printing.
CAD and PDF Set Unlimited Build:
$2795.00
For use by design professionals to make substantial changes to your house plan and inexpensive local printing plus PDF plan sets are best for fast electronic delivery and inexpensive local printing.

Foundation

Slab:
$0.00
Ideal for level lot, single layer concrete poured directly on grade.
Crawlspace:
$395.00
Ideal for semi-sloped or level lot, home can be built off of grade, typically 18” - 48”.

Framing

Wood 2x6:
$0.00
Wood 2x6 Exterior Walls

Additional Options

Right-Reading Reverse:
$245.00
Choose this option to reverse your plans and to have the text and dimensions readable.
Audio Video Design:
$165.00
Receive an overlay sheet with suggested placement of audio and video components.
Comprehensive Material List:
$295.00
A complete list of building supplies needed to construct the infrastructure of your new house, plus an overlay of materials shown directly on your PDF (foundation to rooftop with interior and exterior materials), and a detailed, itemized door and window schedule showing all sizes and types. Please allow 5-7 Business Days for completion. Note, the Comprehensive list is only available with a PDF purchase. The Comprehensive list can be ordered no matter what additional plan options you have selected.
Construction Guide:
$39.00
Educate yourself about basic building ideas with these four detailed diagrams that discuss electrical, plumbing, mechanical, and structural topics.
Lighting Design:
$165.00
Receive an overlay sheet with suggested placement of lighting fixtures.

* Alternate Foundations may take time to prepare.

** Options with a fee may take time to prepare. Please call to confirm.

Unless you buy an “unlimited” plan set or a multi-use license you may only build one home from a set of plans. Please call to verify if you intend to build more than once. Plan licenses are non-transferable and cannot be resold.
Coupon Codes