- Jump to:
- All (3)
- Floor plans (2)
Key Specs
2256
sq ft
4
Beds
2.5
Baths
2
Floors
2
Garages
Phone: 1-800-447-0027
See our Terms & Conditions and Privacy Policy.
Use Code CTBFALL
Residential Construction Guide
Learn Building Basics
This downloadable, 26-page guide is full of diagrams and details about plumbing, electrical, and more.
PLAN 3-184
This plan can be customized
Tell us about your desired changes so we can prepare an estimate for the design service. Click the button to submit your request for pricing, or call 1-800-447-0027 for assistance.
Plan Description
Floor Plans
Full Specs & Features
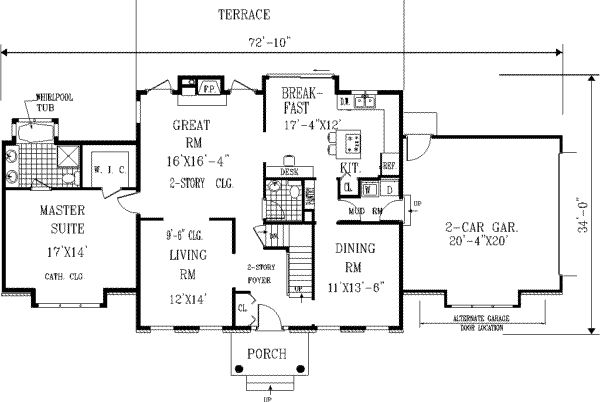
Dimension
Depth : 34'
Width : 73'
Area
Basement : 1505 sq/ft
Main Floor : 1505 sq/ft
Upper Floor : 751 sq/ft
Exterior Wall Framing
Framing : 2"x4"
Bedroom Features
Main Floor Master Bedroom
Walk In Closet
Kitchen Features
Breakfast Nook
Eating Bar
Kitchen Island
Additional Room Features
Great Room Living Room
Loft
Storage Area
Garage Features
Rear Garage
Side Entry Garage
Entryway
Friend S Entry
Lot Characteristics
Suited For Corner Lot
Suited For View Lot
Outdoor Spaces
Balcony
Wrap Around Porch
What's Included In This Plan Set
- Foundation Plan(s): This page shows all necessary notations and dimensions including footings, support columns, walls, and excavated/unexcavated areas.
- Floor Plan(s): Detailed plans for each level showing room dimensions, wall partitions, windows and doors, fixture locations, and ceiling treatments.
- Exterior Elevations: show the front, rear and sides of the house, including exterior materials, details and measurements.
- Interior Elevations: show the specific details of cabinets (kitchen).
- Overhead Roof Plan(s): A view of the home from above showing roof pitch, peaks, valleys, and other details.
- Cross Section(s): Show details of the house as though it were cut in slices from the roof to the foundation. The cross sections specify the home's construction, insulation, flooring and roofing details.
- Electrical Plan(s): Schematic electrical layouts show the suggested locations for switches, fixtures and outlets. These details may be shown on the floor plan or on a separate diagram.
- Construction Notes / Detail(s): Shows basic parts and assemblies recommended for the home so the builder can see how things come together.
Plan Set
$573.75
$658.75
$668.95
$668.95
Foundation
$0.00
$0.00
$0.00
Framing
$0.00
Additional Options
$42.50
$140.25
$33.15
$140.25
$68.00
$34.00
* Alternate Foundations may take time to prepare.
** Options with a fee may take time to prepare. Please call to confirm.
 
         
         
                 
                         
                         
                 
                 
                 
                 
                 
                 
                 
                 
                 
                 
                        