SAVED No Saved House Plans REGISTER LOGIN Empty Cart
Don't lose your saved plans!  Create an account to access your saves whenever you want. See our Terms & Conditions and Privacy Policy.

PLAN 455-399

Photographs may show modified designs.

Save
  • Jump to:
  • All (16)
  • Floor plans (2)
Questions? Get Personalized Help

Key Specs


Plan Sq Ft

2354
sq ft

Plan Bedrooms

3
Beds

Plan Bathrooms

3
Baths

Plan Floors

2
Floors

Plan Garages

2
Garages

Select Plan Set Options

What's included?
$299.00
Additional Construction Sets$59.00/each

Additional hard copies of the plan (can be ordered at the time of purchase and within 90 days of the purchase date).

$165.00
$39.00
$165.00
$299.00
Subtotal
$1699.00
Best Price Guaranteed*

Also order by phone: 1-800-447-0027
 
Questions about building your home?
Get Personalized Help
We do our best to get back to you within 24 - 48 business hours.
Need an answer faster? Call now...
Phone: 1-800-447-0027
Hours:
Ready for Your Call 7 Days a Week
Every Day 7 am - 8:30 pm Eastern

See our Terms & Conditions and Privacy Policy.

 
Wow!
Cost to Build Reports
Only $1.99 Right Now
Use Code CTB2026
Our Cost to Build Report gives you a personalized estimate for building your home, based on your location, plan, and materials.
Get Cost To Build Report
Limit one per order.

Residential Construction Guide

Learn Building Basics

This downloadable, 26-page guide is full of diagrams and details about plumbing, electrical, and more.

PLAN 455-399

This plan can be customized

Tell us about your desired changes so we can prepare an estimate for the design service. Click the button to submit your request for pricing, or call 1-800-447-0027 for assistance.

Modify This Plan

Plan Description


This elegant 1.5-story home features a classic traditional exterior, characterized by its timeless stone and siding combination. The facade is complemented by a spacious two-car garage at the front and a large covered front porch perfect for relaxing or entertaining. Inside, the open floor plan seamlessly integrates the kitchen, dining area, and great room, all beneath soaring cathedral ceilings adorned with rustic wood beams. This expansive space is ideal for both family gatherings and quiet evenings by the fireplace. In addition to the main living area, there is a cozy additional living room, providing extra space for relaxation or entertainment. The main floor features two comfortable bedrooms, offering convenience and accessibility. The second floor hosts an additional bedroom, providing a private retreat or guest accommodation. This house combines traditional style with modern comfort, making it an ideal choice for families seeking a harmonious blend of elegance and practicality.

Full Specs & Features


Dimension

Depth: 60'

Height: 27' 11"

Width: 80' 8"

Area

Garage: 712 sq/ft

Main Floor: 1993 sq/ft

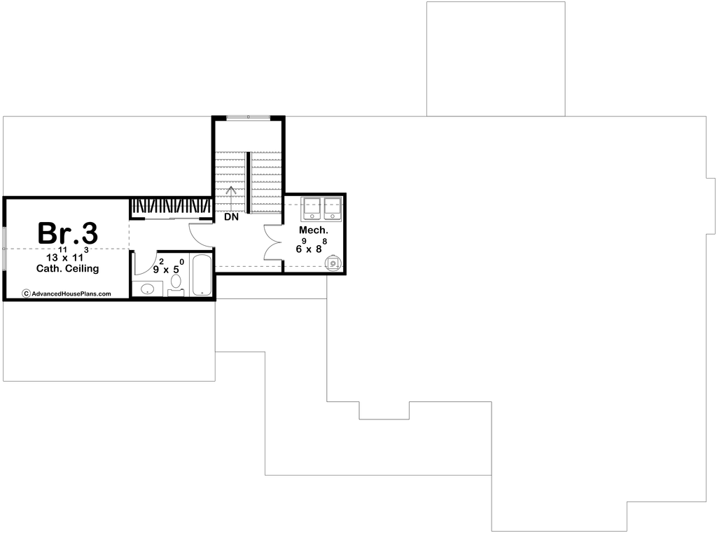
Upper Floor: 361 sq/ft

* Total Square Footage typically only includes conditioned space and does not include garages, porches, bonus rooms, or decks.

Ceiling

Ceiling Details: The master bedroom, kitchen, dining room, great room, and bedroom 3 have cathedral ceilings.

Main Ceiling: 10'

Upper Ceiling Ft: 8'

Roof

Primary Pitch: 12/12

Roof Framing: Stick

Secondary Pitch: 4/12, 3/12

Exterior Wall Framing

Framing: 2x4

Bedroom Features

Main Floor Bedrooms

Main Floor Master Bedroom

Upstairs Bedrooms

Kitchen Features

Kitchen Island

Walk In Pantry Cabinet Pantry

Additional Room Features

Great Room Living Room

Main Floor Laundry

Mud Room

Garage Features

Front Entry Garage

Lot Characteristics

Suited For Corner Lot

Outdoor Spaces

Covered Front Porch

Covered Rear Porch

What's Included In This Plan Set


All plans are drawn at ¼” scale or larger and include :

  • Foundation Plan: This page shows all necessary notations and dimensions including support columns, walls, and excavated/unexcavated areas.
  • Exterior Elevations: Views of the home from all four sides showing exterior materials and measurements.
  • Floor Plan(s): Detailed plans for each level showing room dimensions, wall partitions, windows and doors, etc.
  • Cross Section: A slice of the home from roof to foundation, showing important details like stairs and wall construction.
  • Overhead Roof Plan(s): A view of the home from above showing roof pitch, peaks, valleys, and other details.
  • Construction Notes and Details: Shows the builder how things come together, like walls, the chimney, insulation, and more.
» See important information before purchasing.
Questions? Call 1-800-447-0027

Plan Set

PDF Set:
$1699.00
PDF plan sets are best for fast electronic delivery and inexpensive local printing.
5 Copy and PDF Set:
$1994.00
5 printed plan sets mailed to you plus PDF plan sets are best for fast electronic delivery and inexpensive local printing.
CAD Set:
$2298.00
For use by design professionals to make substantial changes to your house plan and inexpensive local printing.
CAD and PDF Set Unlimited Build:
$2698.00
For use by design professionals to make substantial changes to your house plan and inexpensive local printing plus PDF plan sets are best for fast electronic delivery and inexpensive local printing.

Foundation

Slab:
$0.00
Ideal for level lot, single layer concrete poured directly on grade.
Basement:
$299.00
Ideal for level lot, lower level of home partially or fully underground.
Crawlspace:
$299.00
Ideal for semi-sloped or level lot, home can be built off of grade, typically 18” - 48”.
Walk Out Basement:
$299.00
Ideal for a sloping lot, lower level with outdoor access.

Framing

Wood 2x4:
$0.00
Wood 2x4 Exterior Walls
Wood 2x6:
$299.00
Wood 2x6 Exterior Walls

Additional Options

Right-Reading Reverse:
$299.00
Choose this option to reverse your plans and to have the text and dimensions readable.
Additional Construction Sets:
$59.00
Additional hard copies of the plan (can be ordered at the time of purchase and within 90 days of the purchase date).
Audio Video Design:
$165.00
Receive an overlay sheet with suggested placement of audio and video components.
Construction Guide:
$39.00
Educate yourself about basic building ideas with these four detailed diagrams that discuss electrical, plumbing, mechanical, and structural topics.
Lighting Design:
$165.00
Receive an overlay sheet with suggested placement of lighting fixtures.
Material List:
$299.00
A spreadsheet of building supplies needed to construct the infrastructure of your new house. Please note materials lists will not reflect add-ons such as alternate foundation and framing options.

* Alternate Foundations may take time to prepare.

** Options with a fee may take time to prepare. Please call to confirm.

Unless you buy an “unlimited” plan set or a multi-use license you may only build one home from a set of plans. Please call to verify if you intend to build more than once. Plan licenses are non-transferable and cannot be resold.