SAVED No Saved House Plans REGISTER LOGIN Empty Cart
Don't lose your saved plans!  Create an account to access your saves whenever you want. See our Terms & Conditions and Privacy Policy.

PLAN 430-337

Photographs may show modified designs.

Save
  • Jump to:
  • All (9)
  • Floor plans (3)
Questions? Get Personalized Help

Key Specs


Plan Sq Ft

2417
sq ft

Plan Bedrooms

4
Beds

Plan Bathrooms

3
Baths

Plan Floors

2
Floors

Plan Garages

1
Garages

Select Plan Set Options

What's included?
$250.00
Additional Construction Sets$100.00/each

Additional hard copies of the plan (can be ordered at the time of purchase and within 90 days of the purchase date).

$495.00
$165.00
$295.00
$39.00
$300.00
Subtotal
$1445.00
Best Price Guaranteed*

Also order by phone: 1-800-447-0027
 
Questions about building your home?
Get Personalized Help
We do our best to get back to you within 24 - 48 business hours.
Need an answer faster? Call now...
Phone: 1-800-447-0027
Hours:
Ready for Your Call 7 Days a Week
Every Day 7 am - 8:30 pm Eastern

See our Terms & Conditions and Privacy Policy.

 
Wow!
Cost to Build Reports
Only $1.99 Right Now
Use Code CTB2026
Our Cost to Build Report gives you a personalized estimate for building your home, based on your location, plan, and materials.
Get Cost To Build Report
Limit one per order.

Residential Construction Guide

Learn Building Basics

This downloadable, 26-page guide is full of diagrams and details about plumbing, electrical, and more.

PLAN 430-337

This plan can be customized

Tell us about your desired changes so we can prepare an estimate for the design service. Click the button to submit your request for pricing, or call 1-800-447-0027 for assistance.

Modify This Plan

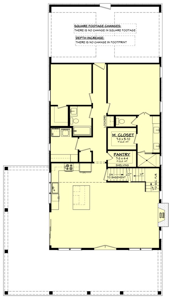
Plan Description


This simple two-story barndominium boasts 4 bedrooms and 3 baths, with the main suite and a guest located on the first floor. The great room, dining and kitchen are open and located below a large loft on the second floor. A garage has a drive through layout so that you can enter from either side of the home.

Full Specs & Features


Dimension

Depth : 78'

Height : 29'

Width : 44'

Area

Garage : 470 sq/ft

Main Floor : 1510 sq/ft

Porch : 772 sq/ft

Upper Floor : 907 sq/ft

* Total Square Footage typically only includes conditioned space and does not include garages, porches, bonus rooms, or decks.

Ceiling

Garage Ceiling : 14' 4"

Main Ceiling : 9'

Upper Ceiling Ft : 9'

Roof

Primary Pitch : 8:12

Roof Type : stick

Secondary Pitch : 3:12

Exterior Wall Framing

Exterior Wall Finish : board & batten with brick skirt

Framing : 2x4

Bedroom Features

Main Floor Bedrooms

Main Floor Master Bedroom

Upstairs Bedrooms

Walk In Closet

Kitchen Features

Breakfast Nook

Eating Bar

Kitchen Island

Walk In Pantry Cabinet Pantry

Additional Room Features

Family Room Keeping Room

Loft

Main Floor Laundry

Garage Features

Rear Garage

Side Entry Garage

Lot Characteristics

Suited For Corner Lot

Suited For Narrow Lot

Outdoor Spaces

Covered Front Porch

Wrap Around Porch

More

Wheelchair Adaptable

What's Included In This Plan Set


Plans are typically drawn to ¼” scale and include:
  • Cover Sheet: Drawing index, designer contact info, plan name/number, legal disclaimers.
  • Foundation Plan(s): This page shows all necessary notations and dimensions including footings, support columns, walls, and excavated/unexcavated areas.
  • Floor Plan(s): Detailed plans for each level showing room dimensions, wall partitions, windows and doors, fixture locations, and ceiling treatments.
  • Exterior Elevations: Views of the home from all four sides showing exterior materials, roof slope, ridge heights, siding and trim notes.
  • Interior Elevations: Detailed drawings of kitchen cabinet elevations and other elements like built-ins.
  • Overhead Roof Plan(s): A view of the home from above showing roof pitch, peaks, valleys, and other details.
  • Cross Section(s): A slice of the home from roof to foundation, showing relationships between floors, roof, and foundation.
  • Electrical Plan(s): Shows the location of lights, receptacles, switches, etc. Some plans that do not include an electrical plan may have it available for an additional fee.
  • Construction Notes and Detail(s): Shows basic parts and assemblies recommended for the home so the builder can see how things come together.
  • Stair Detail(s): Drawings showing stair details.

*Material List Note: When a material list is ordered, a list of the materials needed to build this plan will be sent. Please note that the materials list will conform to the standard plan (slab or crawlspace only). Additional options such as a Basement or 2x6 Wall conversion will not be reflected in the material list. Please call for details.


Note about 2x6 Wall Option: If choosing the 2x6 wall option, the added stud depth will be applied towards the interior of the walls.

» See important information before purchasing.
Questions? Call 1-800-447-0027

Plan Set

PDF Set:
$1445.00
PDF plan sets are best for fast electronic delivery and inexpensive local printing.
5 Copy and PDF Set:
$1695.00
5 printed plan sets mailed to you plus PDF plan sets are best for fast electronic delivery and inexpensive local printing.
PDF Unlimited Build:
$2145.00
PDF plan sets are best for fast electronic delivery and inexpensive local printing.
CAD Unlimited Build:
$2545.00
For use by design professionals to make substantial changes to your house plan and inexpensive local printing.

Foundation

Slab:
$0.00
Ideal for level lot, single layer concrete poured directly on grade.
Crawlspace:
$175.00
Ideal for semi-sloped or level lot, home can be built off of grade, typically 18” - 48”.
Basement:
$395.00
Ideal for level lot, lower level of home partially or fully underground.
Walk Out Basement:
$395.00
Ideal for a sloping lot, lower level with outdoor access.

Framing

Wood 2x4:
$0.00
Wood 2x4 Exterior Walls
Wood 2x6:
$325.00
Wood 2x6 Exterior Walls

Additional Options

Right-Reading Reverse:
$250.00
Choose this option to reverse your plans and to have the text and dimensions readable.
Additional Construction Sets:
$100.00
Additional hard copies of the plan (can be ordered at the time of purchase and within 90 days of the purchase date).
Additional Use License:
$495.00
Allows you to build one more home for each additional license purchased.
Audio Video Design:
$165.00
Receive an overlay sheet with suggested placement of audio and video components.
Comprehensive Material List:
$295.00
A complete list of building supplies needed to construct the infrastructure of your new house, plus an overlay of materials shown directly on your PDF (foundation to rooftop with interior and exterior materials), and a detailed, itemized door and window schedule showing all sizes and types. Please allow 5-7 Business Days for completion. Note, the Comprehensive list is only available with a PDF purchase. The Comprehensive list can be ordered no matter what additional plan options you have selected.
Construction Guide:
$39.00
Educate yourself about basic building ideas with these four detailed diagrams that discuss electrical, plumbing, mechanical, and structural topics.
Material List:
$300.00
A spreadsheet of building supplies needed to construct the infrastructure of your new house. Please note materials lists will not reflect add-ons such as alternate foundation and framing options.

* Alternate Foundations may take time to prepare.

** Options with a fee may take time to prepare. Please call to confirm.

Unless you buy an “unlimited” plan set or a multi-use license you may only build one home from a set of plans. Please call to verify if you intend to build more than once. Plan licenses are non-transferable and cannot be resold.
Today's Deals