SAVED No Saved House Plans REGISTER LOGIN Empty Cart
Don't lose your saved plans!  Create an account to access your saves whenever you want. See our Terms & Conditions and Privacy Policy.

PLAN 929-209

Photographs may show modified designs.

Save
  • Jump to:
  • All (4)
  • Floor plans (2)
Questions? Get Personalized Help

Key Specs


Plan Sq Ft

2435
sq ft

Plan Bedrooms

4
Beds

Plan Bathrooms

3
Baths

Plan Floors

2
Floors

Plan Garages

2
Garages

Select Plan Set Options

What's included?
$430.00
$165.00
$39.00
$165.00
$450.00
Subtotal
$1625.00
Best Price Guaranteed*

Also order by phone: 1-800-447-0027
 
Questions about building your home?
Get Personalized Help
We do our best to get back to you within 24 - 48 business hours.
Need an answer faster? Call now...
Phone: 1-800-447-0027
Hours:
Ready for Your Call 7 Days a Week
Every Day 7 am - 8:30 pm Eastern

See our Terms & Conditions and Privacy Policy.

 
Wow!
Cost to Build Reports
Only $1.99 Right Now
Use Code CTB2026
Our Cost to Build Report gives you a personalized estimate for building your home, based on your location, plan, and materials.
Get Cost To Build Report
Limit one per order.

Residential Construction Guide

Learn Building Basics

This downloadable, 26-page guide is full of diagrams and details about plumbing, electrical, and more.

PLAN 929-209

This plan can be customized

Tell us about your desired changes so we can prepare an estimate for the design service. Click the button to submit your request for pricing, or call 1-800-447-0027 for assistance.

Modify This Plan

Plan Description


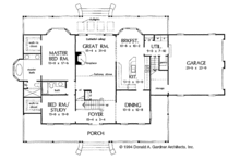
Spaciousness and lots of amenities earmark this design as a family favorite. The front wraparound porch leads to the foyer where a bedroom/study and dining room open. The central great room presents a warming fireplace, a cathedral ceiling, and access to the rear porch. In the master suite, a walk-in closet and a private bath with a bumped-out tub are extra enhancements. Bonus space over the garage could become a home office.

Full Specs & Features


Dimension

Depth : 48' 10"

Height : 29'

Width : 82' 2"

Area

Bonus: 391 sq/ft

First Floor: 1841 sq/ft

Second Floor: 594 sq/ft

* Total Square Footage typically only includes conditioned space and does not include garages, porches, bonus rooms, or decks.

Roof

Primary Pitch : 12:12

Roof Framing : Conventional

Exterior Wall Framing

Exterior Wall Finish : Siding

Framing : Wood - 2x4

Bedroom Features

Fireplace

Formal Dining Room

Additional Room Features

Great Room Living Room

Outdoor Spaces

Covered Front Porch

Covered Rear Porch

Rooms

3rd BR Closet:

8 sq/ft width 4' 4" x depth 2'

Bathroom 2:

45 sq/ft width 9' 2" x depth 5'

Bathroom 3:

61 sq/ft width 11' 10" x depth 5' 2"

Bedroom 2:

152 sq/ft width 12' 8" x depth 12'

Bedroom 2 Closet:

8 sq/ft width 4' 4" x depth 2'

Bedroom 3:

152 sq/ft width 12' 8" x depth 12'

Bedroom 3 Closet:

8 sq/ft width 4' 4" x depth 2'

Bedroom 4 Closet:

40 sq/ft width 6' 8" x depth 6'

Bonus Room - Finished:

301 sq/ft width 21' 6" x depth 14'

Breakfast Room:

108 sq/ft width 10' 8" x depth 10' 2"

Dining Room:

164 sq/ft width 13' x depth 12' 8"

Foyer:

81 sq/ft width 15' 4" x depth 5' 4"

Garage:

494 sq/ft width 21' 6" x depth 23'

Garage Storage:

61 sq/ft width 6' 8" x depth 9' 3"

Gathering Room:

321 sq/ft width 15' 4" x depth 21'

Hall Closet:

7 sq/ft width 2' x depth 3' 6"

Kitchen:

169 sq/ft width 13' x depth 13'

Master Bathroom:

110 sq/ft width 6' 8" x depth 16' 6"

Master Bedroom:

227 sq/ft width 13' x depth 17' 6"

Master Closet:

46 sq/ft width 6' 8" x depth 7'

Porch - Front:

396 sq/ft width 56' 8" x depth 7'

Porch - Rear:

396 sq/ft width 56' 8" x depth 7'

Storage:

22 sq/ft width 3' 2" x depth 7'

Study:

143 sq/ft width 13' x depth 11'

Utility Room:

70 sq/ft width 9' x depth 7' 10"

What's Included In This Plan Set


Purchasing a CAD set gives you an unlimited build license. All other plan sets, excluding the Single Set for bidding purposes, allow you to build the home one time.
  • Cover Sheet: A rendering of the front exterior of the house.
  • Foundation Plan(s): This plan gives the foundation layout, including support walls, excavated and unexcavated areas, if any, foundation notes and details, and floor framing.
  • Floor Plan(s): These plans show the layout of each floor of the house. Rooms and interior spaces are carefully dimensioned and keys are given for cross-section details provided later in the plans, as well as window and door schedules. These plans may also show the location of kitchen appliances and plumbing fixtures, and may suggest locations for electrical fixtures, switches and outlets.
  • Exterior Elevations: Included are front, rear, left and right sides of the house. Exterior materials, details and measurements are also given.
  • Interior Elevations: The interior elevation drawings show a suggested layout design of cabinets, utility rooms, fireplaces, bookcases, built-in units and other special interior features depending on the nature and complexity of the item.
  • Overhead Roof Plan(s): The roof plan shows a bird's eye view of the overall layout of the roof, ridges, valleys, and slopes.
  • Cross Section(s): Important changes in floor, ceiling and roof heights or the relationship of one level to another are called out. Also shown, when applicable, are exterior details such as railing and banding.
  • Construction Notes / Detail(s): Shows basic parts and assemblies recommended for the home so the builder can see how things come together.
  • Door / Window Schedule(s): Sizes, quantities and descriptions of all doors and windows shown on the plan.
  • Structural Information: Overall layout and necessary details for the ceiling, second-floor framing (if applicable) and roof construction. If trusses are used, it's suggested that you use a local truss manufacturer to design your trusses to comply with your local codes and regulations. Important: design loads and weather conditions vary by region. As a result the size, spacing, and layout of all structural elements in this home design may need approval by a structural engineer or code official based on your specific site location.
  • Code Drawn To: Each plan is designed to be consistent with CABO One and Two Family Dwelling Code or the International Residential Code in effect at the time the plan was created. Modifications may be necessary to meet applicable building codes, ordinances, local climatic, and geographical design criteria. Consult a builder, architect or other construction professional as necessary. Manufacturer instructions should be followed for all materials, appliances, and systems. Heating/air conditioning layouts, plumbing pipe layouts, and electrical wiring layouts are not included. Consult a local mechanical contractor for systems suitable for local climate conditions.
» See important information before purchasing.
Questions? Call 1-800-447-0027

Plan Set

PDF Set:
$1625.00
PDF plan sets are best for fast electronic delivery and inexpensive local printing.
CAD Unlimited Build:
$2825.00
For use by design professionals to make substantial changes to your house plan and inexpensive local printing.
Study Set:
$1425.00
One electronic set for bidding purposes only. Not a legal building set for construction.

Foundation

Crawlspace:
$0.00
Ideal for semi-sloped or level lot, home can be built off of grade, typically 18” - 48”.
Basement:
$430.00
Ideal for level lot, lower level of home partially or fully underground.
Slab:
$430.00
Ideal for level lot, single layer concrete poured directly on grade.

Framing

Wood 2x4:
$0.00
Wood 2x4 Exterior Walls
Wood 2x6:
$430.00
Wood 2x6 Exterior Walls

Additional Options

Right-Reading Reverse:
$430.00
Choose this option to reverse your plans and to have the text and dimensions readable.
Audio Video Design:
$165.00
Receive an overlay sheet with suggested placement of audio and video components.
Construction Guide:
$39.00
Educate yourself about basic building ideas with these four detailed diagrams that discuss electrical, plumbing, mechanical, and structural topics.
Lighting Design:
$165.00
Receive an overlay sheet with suggested placement of lighting fixtures.
Material List:
$450.00
A spreadsheet of building supplies needed to construct the infrastructure of your new house. Please note materials lists will not reflect add-ons such as alternate foundation and framing options.

* Alternate Foundations may take time to prepare.

** Options with a fee may take time to prepare. Please call to confirm.

Unless you buy an “unlimited” plan set or a multi-use license you may only build one home from a set of plans. Please call to verify if you intend to build more than once. Plan licenses are non-transferable and cannot be resold.