- Jump to:
- All (10)
- Floor plans (3)
Key Specs
2519
sq ft
3
Beds
2.5
Baths
1
Floors
3
Garages
Phone: 1-800-447-0027
See our Terms & Conditions and Privacy Policy.
Use Code CTBFALL
Residential Construction Guide
Learn Building Basics
This downloadable, 26-page guide is full of diagrams and details about plumbing, electrical, and more.
PLAN 928-121
This plan can be customized
Tell us about your desired changes so we can prepare an estimate for the design service. Click the button to submit your request for pricing, or call 1-800-447-0027 for assistance.
Plan Description
Floor Plans
Full Specs & Features
Dimension
Depth : 52'
Height : 22'
Width : 78'
Area
Basement Living: 999 sq/ft height 9'
First Floor: 1520 sq/ft height 9'
Roof
Primary Pitch : 8:12
Roof Framing : Truss
Roof Type : Asphalt
Exterior Wall Framing
Exterior Wall Finish : Siding/Stone
Framing : Wood - 2x4
Bedroom Features
Fireplace
Formal Living Room / Parlor
Main Floor Master Bedroom
Split Bedrooms
Walk In Closet
Kitchen Features
Breakfast Nook
Kitchen Island
Kitchenette Wet Bar
Additional Room Features
Den Office Study Computer
Family Room Keeping Room
Great Room Living Room
Main Floor Laundry
Mud Room
Open Floor Plan
Vaulted / Cathedral Ceilings
Outdoor Spaces
Courtyard
Deck
Rooms
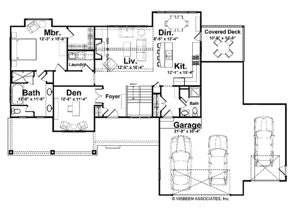
Bedroom 2:
122 sq/ft width 9' 10" x depth 12' 6"
Bedroom 3:
117 sq/ft width 9' 10" x depth 12'
Deck:
120 sq/ft width 10' x depth 12'
Den:
141 sq/ft width 12' 6" x depth 11' 4"
Dining Room:
112 sq/ft width 8' 5" x depth 13' 4"
Family Room:
434 sq/ft width 16' x depth 27' 2"
Garage:
765 sq/ft width 21' 8" x depth 35' 4"
Kitchen:
161 sq/ft width 12' 1" x depth 13' 4"
Living Room:
204 sq/ft width 12' 6" x depth 16' 4"
Master Bathroom:
148 sq/ft width 12' 9" x depth 11' 8"
Master Bedroom:
191 sq/ft width 12' 3" x depth 15' 8"
What's Included In This Plan Set
Please note:  If you are building this plan in the state of Michigan, please give us a call to confirm availability. The designer has some geographic restrictions in Michigan.
All plans are drawn at ¼” scale or larger and include :Plans are typically drawn to ¼” scale and include:
- Foundation Plan(s): Drawn to 1/4" scale, this page shows all necessary notations and dimensions including support columns, walls and excavated and unexcavated areas.
- Floor Plan(s): Detailed plans, drawn to 1/4" scale for each level showing room dimensions, wall partitions, windows, etc.
- Exterior Elevations: A blueprint picture of all four sides showing exterior materials and measurements.
- Overhead Roof Plan(s): A view of the home from above showing roof pitch, peaks, valleys, and other details.
- Cross Section(s): A vertical cutaway view of the house from roof to foundation showing details of framing, construction, flooring and roofing. Important: If you are ordering a CAD set, or Right-Reading Reverse on this plan, please allow two weeks for delivery based on the current design schedule.
- Construction Notes and Detail(s): Shows basic parts and assemblies recommended for the home so the builder can see how things come together.
Plan Set
$845.75
$2545.75
Foundation
$0.00
Framing
$0.00
Additional Options
$165.75
$140.25
$250.75
$33.15
$140.25
* Alternate Foundations may take time to prepare.
** Options with a fee may take time to prepare. Please call to confirm.
 
         
         
                 
                         
                         
                         
                 
                 
                 
                 
                 
                 
                 
                 
                 
                 
                        