- Jump to:
- All (2)
- Floor plans (1)
Key Specs
2596
sq ft
4
Beds
3
Baths
1
Floors
2
Garages
Phone: 1-800-447-0027
See our Terms & Conditions and Privacy Policy.
Use Code CTBFALL
Residential Construction Guide
Learn Building Basics
This downloadable, 26-page guide is full of diagrams and details about plumbing, electrical, and more.
PLAN 140-168
This plan can be customized
Tell us about your desired changes so we can prepare an estimate for the design service. Click the button to submit your request for pricing, or call 1-800-447-0027 for assistance.
Plan Description
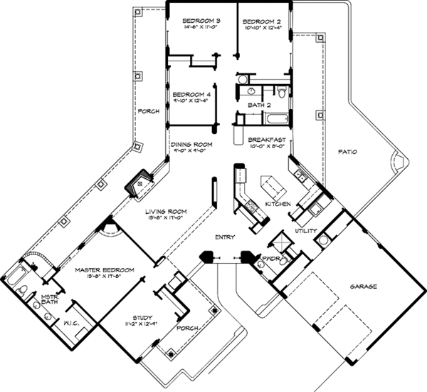
Floor Plans
Full Specs & Features
Dimension
Depth : 64'
Width : 68'
Area
First Floor: 2596 sq/ft
Exterior Wall Framing
Exterior Wall Finish : Stucco
Framing : Wood - 2x6
Bedroom Features
Fireplace
Formal Dining Room
Split Bedrooms
Walk In Closet
Kitchen Features
Breakfast Nook
Kitchen Island
Walk In Pantry Cabinet Pantry
Additional Room Features
Den Office Study Computer
Outdoor Spaces
Courtyard
Covered Front Porch
What's Included In This Plan Set
Plans are typically drawn to ¼” scale and include:
- Cover Sheet: Drawing index, designer contact info, plan name/number, legal disclaimers.
- Foundation Plan(s): This page shows all necessary notations and dimensions including footings, support columns, walls, and excavated/unexcavated areas.
- Floor Plan(s): Detailed plans for each level showing room dimensions, wall partitions, windows and doors, fixture locations, and ceiling treatments.
- Exterior Elevations: Views of the home from all four sides showing exterior materials, roof slope, ridge heights, siding and trim notes.
- Interior Elevations: Cabinet and millwork details.
- Overhead Roof Plan(s): Overhead plan shows peaks, valleys and roof pitch
- Cross Section(s): A slice of the home from roof to foundation, showing relationships between floors, roof, and foundation.
- Electrical Plan(s): Shows the location of lights, receptacles, switches, etc. Some plans that do not include an electrical plan may have it available for an additional fee.
- Construction Notes / Detail(s): Shows basic parts and assemblies recommended for the home so the builder can see how things come together.
Plan Set
$634.95
$709.75
$826.20
$571.20
Foundation
$0.00
Framing
$0.00
Additional Options
$34.00
$140.25
$250.75
$33.15
$140.25
$42.50
* Alternate Foundations may take time to prepare.
** Options with a fee may take time to prepare. Please call to confirm.
 
         
         
                 
                         
                 
                 
                 
                 
                 
                 
                 
                 
                