- Jump to:
- All (5)
- Floor plans (2)
Key Specs
2714
sq ft
3
Beds
2.5
Baths
1
Floors
2
Garages
Phone: 1-800-447-0027
See our Terms & Conditions and Privacy Policy.
Use Code CTBFALL
Residential Construction Guide
Learn Building Basics
This downloadable, 26-page guide is full of diagrams and details about plumbing, electrical, and more.
PLAN 54-313
This plan can be customized
Tell us about your desired changes so we can prepare an estimate for the design service. Click the button to submit your request for pricing, or call 1-800-447-0027 for assistance.
Plan Description
Floor Plans
Full Specs & Features
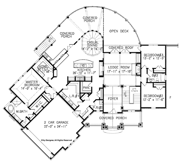
Dimension
Depth : 85' 1"
Height : 28' 4"
Width : 90' 4"
Area
First Floor: 2714 sq/ft height 10'
Garage: 580 sq/ft
Roof
Primary Pitch : 9:12
Roof Framing : Conventional
Exterior Wall Framing
Exterior Wall Finish : Shingle
Framing : Wood - 2x4
Bedroom Features
Split Bedrooms
Walk In Closet
Kitchen Features
Kitchen Island
Walk In Pantry Cabinet Pantry
Additional Room Features
Den Office Study Computer
Main Floor Laundry
Outdoor Spaces
Covered Front Porch
Covered Rear Porch
Deck
Rooms
Bedroom 2:
144 sq/ft width 13' 2" x depth 11'
Bedroom 3:
163 sq/ft width 13' 2" x depth 12' 5"
Dining Room:
214 sq/ft width 14' 2" x depth 15' 2"
Garage:
548 sq/ft width 22' x depth 24' 11"
Gathering Room:
319 sq/ft width 17' 11" x depth 17' 10"
Kitchen:
310 sq/ft width 26' 10" x depth 11' 7"
Master Bedroom:
214 sq/ft width 14' x depth 15' 4"
What's Included In This Plan Set
- Foundation Plan: Drawn to 1/4" scale, this page shows all necessary notations and dimensions including support columns, walls and excavated and unexcavated areas.
- Exterior Elevations: A blueprint picture of all four sides showing exterior materials and measurements.
- Floor Plan(s): Detailed plans, drawn to 1/4" scale for each level showing room dimensions, wall partitions, windows, etc. as well as the location of electrical outlets and switches.
- Cross Section: A vertical cutaway view of the house from roof to foundation showing details of framing, construction, flooring and roofing.
- Interior Elevations: Detailed drawings of kitchen cabinet elevations and other elements as required.
Plan Set
$2120.75
$2928.25
$3009.00
Foundation
$0.00
$0.00
$297.50
Framing
$0.00
$297.50
Additional Options
$212.50
$140.25
$250.75
$33.15
$140.25
* Alternate Foundations may take time to prepare.
** Options with a fee may take time to prepare. Please call to confirm.
 
         
         
                 
                         
                         
                 
                 
                 
                 
                 
                 
                 
                 
                 
                 
                        