SAVED No Saved House Plans REGISTER LOGIN Empty Cart
Don't lose your saved plans!  Create an account to access your saves whenever you want. See our Terms & Conditions and Privacy Policy.
15% OFF THIS PLAN TODAY

PLAN 5-380

Photographs may show modified designs.

Save
  • Jump to:
  • All (5)
  • Floor plans (3)
Questions? Get Personalized Help

Key Specs


Plan Sq Ft

3076
sq ft

Plan Bedrooms

5
Beds

Plan Bathrooms

3.5
Baths

Plan Floors

2
Floors

Plan Garages

3
Garages

Select Plan Set Options

What's included?
$425.00
$85.00
$33.15
$170.00
Subtotal
NOW $2975.00
You save $525.00 (15% savings)
Sale ends soon!
Best Price Guaranteed*

Also order by phone: 1-800-447-0027
 
Questions about building your home?
Get Personalized Help
We do our best to get back to you within 24 - 48 business hours.
Need an answer faster? Call now...
Phone: 1-800-447-0027
Hours:
Ready for Your Call 7 Days a Week
Every Day 7 am - 8:30 pm Eastern

See our Terms & Conditions and Privacy Policy.

 
Wow!
Cost to Build Reports
Only $1.99 Right Now
Use Code CTB2026
Our Cost to Build Report gives you a personalized estimate for building your home, based on your location, plan, and materials.
Get Cost To Build Report
Limit one per order.

Residential Construction Guide

Learn Building Basics

This downloadable, 26-page guide is full of diagrams and details about plumbing, electrical, and more.

PLAN 5-380

This plan can be customized

Tell us about your desired changes so we can prepare an estimate for the design service. Click the button to submit your request for pricing, or call 1-800-447-0027 for assistance.

Modify This Plan

Plan Description


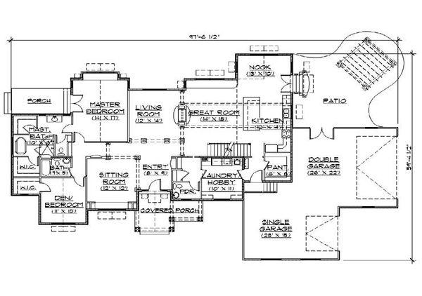
This bungalow design floor plan is 3076 sq ft and has 5 bedrooms and 3.5 bathrooms.

Full Specs & Features


Dimension

Depth : 59'

Height : 25'

Width : 98'

Area

Lower Floor : 1842 sq/ft

Main Floor : 2452 sq/ft

Upper Floor : 624 sq/ft

* Total Square Footage typically only includes conditioned space and does not include garages, porches, bonus rooms, or decks.

Ceiling

Main Ceiling : 9'

Upper Ceiling Ft : 8'

Roof

Primary Pitch : 8:12

Exterior Wall Framing

Framing : 2"x6"

Bedroom Features

Walk In Closet

Kitchen Features

Breakfast Nook

Eating Bar

Kitchen Island

Kitchenette Wet Bar

Walk In Pantry Cabinet Pantry

Additional Room Features

Den Office Study Computer

Great Room Living Room

Hobby Rec Room Game Room

Play Flex Room

Storage Area

Unfinished Future Space

Garage Features

Side Entry Garage

Lot Characteristics

Suited For Corner Lot

Outdoor Spaces

Covered Front Porch

Code Compliance

Irc 2006

What's Included In This Plan Set


All plans are drawn at ¼" scale or larger and include the below. IMPORTANT NOTE: Study Set Includes: floor plans (main / upper / basement (if available) ) - exterior elevations.
  • Foundation Plan(s): This page shows all necessary notations and dimensions including footings, support columns, walls, and excavated/unexcavated areas.
  • Floor Plan(s): Detailed plans, drawn to 1/4" scale for each level showing room dimensions, wall partitions, windows, etc. as well as the location of electrical outlets and switches.
  • Exterior Elevations: A blueprint picture of all four sides showing exterior materials and measurements.
  • Overhead Roof Plan(s): A view of the home from above showing roof pitch, peaks, valleys, and other details.
  • Cross Section(s): A slice of the home from roof to foundation, showing relationships between floors, roof, and foundation.
  • Construction Notes / Detail(s): Shows basic parts and assemblies recommended for the home so the builder can see how things come together.
» See important information before purchasing.
Questions? Call 1-800-447-0027

Plan Set

PDF Set:
$2975.00
PDF plan sets are best for fast electronic delivery and inexpensive local printing.
Reproducible Set:
$2975.00
For inexpensive local printing / making minor adjustments by hand. 1 printed set, typically on Bond paper.
Study Set:
$425.00
One electronic set for bidding purposes only. Not a legal building set for construction.

Foundation

Daylight Basement:
$0.00
Ideal for sloping lot, lower level of home partially underground.

Additional Options

Right-Reading Reverse:
$425.00
Choose this option to reverse your plans and to have the text and dimensions readable.
Audio Video Design:
$85.00
Receive an overlay sheet with suggested placement of audio and video components.
Construction Guide:
$33.15
Educate yourself about basic building ideas with these four detailed diagrams that discuss electrical, plumbing, mechanical, and structural topics.
Lighting Design:
$170.00
Receive an overlay sheet with suggested placement of lighting fixtures.

* Alternate Foundations may take time to prepare.

** Options with a fee may take time to prepare. Please call to confirm.

Unless you buy an “unlimited” plan set or a multi-use license you may only build one home from a set of plans. Please call to verify if you intend to build more than once. Plan licenses are non-transferable and cannot be resold.