- Jump to:
- All (3)
- Floor plans (2)
Key Specs
3121
sq ft
5
Beds
4
Baths
2
Floors
2
Garages
Phone: 1-800-447-0027
See our Terms & Conditions and Privacy Policy.
Use Code CTBFALL
Residential Construction Guide
Learn Building Basics
This downloadable, 26-page guide is full of diagrams and details about plumbing, electrical, and more.
PLAN 54-218
This plan can be customized
Tell us about your desired changes so we can prepare an estimate for the design service. Click the button to submit your request for pricing, or call 1-800-447-0027 for assistance.
Plan Description
Floor Plans
Full Specs & Features
Dimension
Depth : 47' 6"
Height : 31'
Width : 53'
Area
First Floor: 1578 sq/ft height 9'
Second Floor: 1543 sq/ft height 8'
Roof
Primary Pitch : 12:12
Roof Framing : Combination Truss/Conventional
Roof Type : Shingle
Exterior Wall Framing
Exterior Wall Finish : Brick/Shingle
Framing : Wood - 2x4
Bedroom Features
Fireplace
Formal Living Room / Parlor
Kitchen Features
Breakfast Nook
Butler's Pantry
Kitchen Island
Walk In Pantry Cabinet Pantry
Additional Room Features
Exercise Room
Great Room Living Room
Loft
Main Floor Laundry
Master Sitting Area
Outdoor Spaces
Balcony
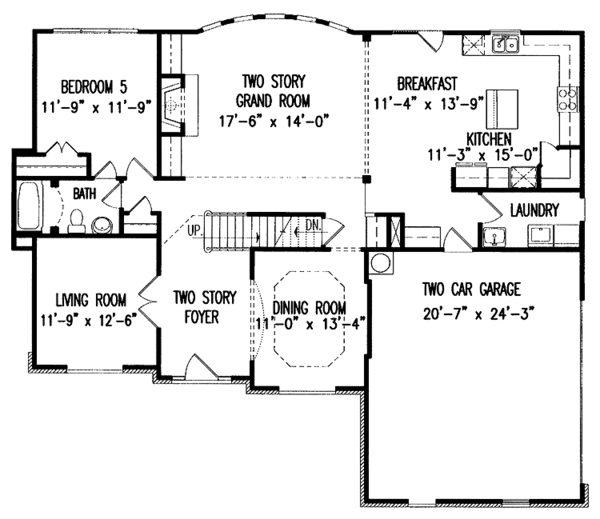
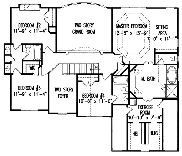
Rooms
Bedroom 2:
133 sq/ft width 11' 9" x depth 11' 4"
Bedroom 3:
133 sq/ft width 11' 9" x depth 11' 4"
Bedroom 4:
117 sq/ft width 10' 8" x depth 11'
Bedroom 5:
138 sq/ft width 11' 9" x depth 11' 9"
Breakfast Room:
155 sq/ft width 11' 4" x depth 13' 9"
Dining Room:
146 sq/ft width 11' x depth 13' 4"
Exercise Room:
81 sq/ft width 10' 10" x depth 7' 6"
Garage:
499 sq/ft width 20' 7" x depth 24' 3"
Grand Room:
245 sq/ft width 17' 6" x depth 14'
Kitchen:
168 sq/ft width 11' 3" x depth 15'
Living Room:
146 sq/ft width 11' 9" x depth 12' 6"
Master Bedroom:
184 sq/ft width 13' 5" x depth 13' 9"
What's Included In This Plan Set
- Foundation Plan: Drawn to 1/4" scale, this page shows all necessary notations and dimensions including support columns, walls and excavated and unexcavated areas.
- Exterior Elevations: A blueprint picture of all four sides showing exterior materials and measurements.
- Floor Plan(s): Detailed plans, drawn to 1/4" scale for each level showing room dimensions, wall partitions, windows, etc. as well as the location of electrical outlets and switches.
- Cross Section: A vertical cutaway view of the house from roof to foundation showing details of framing, construction, flooring and roofing.
- Interior Elevations: Detailed drawings of kitchen cabinet elevations and other elements as required.
Plan Set
$1501.10
$2393.60
$2474.35
Foundation
$0.00
$297.50
$297.50
Framing
$0.00
$297.50
Additional Options
$212.50
$59.50
$140.25
$335.75
$33.15
$140.25
$46.75
* Alternate Foundations may take time to prepare.
** Options with a fee may take time to prepare. Please call to confirm.
 
         
         
                 
                         
                         
                 
                 
                 
                 
                 
                 
                 
                 
                 
                 
                         
                        