- Jump to:
- All (7)
- Floor plans (3)
Key Specs
3214
sq ft
5
Beds
2.5
Baths
2
Floors
0
Garages
Phone: 1-800-447-0027
See our Terms & Conditions and Privacy Policy.
Use Code CTBFALL
Residential Construction Guide
Learn Building Basics
This downloadable, 26-page guide is full of diagrams and details about plumbing, electrical, and more.
PLAN 1064-180
This plan can be customized
Tell us about your desired changes so we can prepare an estimate for the design service. Click the button to submit your request for pricing, or call 1-800-447-0027 for assistance.
Plan Description
Floor Plans
Full Specs & Features
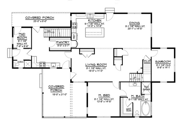
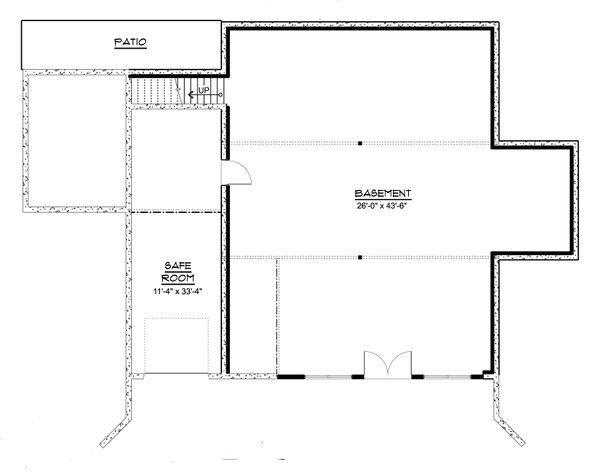
Dimension
Depth : 45'
Width : 70'
Area
Lower Floor : 2193 sq/ft
Main Floor : 2070 sq/ft
Patios : 507 sq/ft
Upper Floor : 1144 sq/ft
Ceiling
Lower Ceiling : 8'
Main Ceiling : 9' 1"
Upper Ceiling Ft : 8' 1"
Roof
Roof Framing : Truss
Roof Load : 30 psf
Roof Type : Metal Roof
Exterior Wall Framing
Exterior Wall Finish : Horizontal Vinyl Siding
Framing : 2x6
Insulation : R-19
Bedroom Features
Main Floor Master Bedroom
Upstairs Bedrooms
Walk In Closet
Kitchen Features
Kitchen Island
Additional Room Features
Great Room Living Room
Loft
Main Floor Laundry
Mud Room
Storage Area
Lot Characteristics
Suited For View Lot
Outdoor Spaces
Covered Front Porch
Covered Rear Porch
More
Additional Half Bath
What's Included In This Plan Set
All plans are drawn at ¼” scale or larger and include :
- Foundation Plan: This page shows all necessary notations and dimensions including support columns, walls, and excavated/unexcavated areas.
- Exterior Elevations: Views of the home from all four sides showing exterior materials and measurements.
- Floor Plan(s): Detailed plans for each level showing room dimensions, wall partitions, windows and doors, etc.
- Cross Section: A slice of the home from roof to foundation, showing important details like stairs and wall construction.
- Overhead Roof Plan(s): A view of the home from above showing roof pitch, peaks, valleys, and other details.
- Construction Notes and Details: Shows the builder how things come together, like walls, the chimney, insulation, and more.
Plan Set
$1232.50
$1530.00
$1742.50
$2295.00
$2762.50
Foundation
$0.00
$250.75
$250.75
$335.75
$335.75
Framing
$0.00
$170.00
Additional Options
$233.75
$140.25
$335.75
$33.15
$140.25
* Alternate Foundations may take time to prepare.
** Options with a fee may take time to prepare. Please call to confirm.
 
         
         
                 
                         
                         
                         
                 
                 
                 
                 
                 
                 
                 
                 
                 
                