SAVED No Saved House Plans REGISTER LOGIN Empty Cart
Don't lose your saved plans!  Create an account to access your saves whenever you want. See our Terms & Conditions and Privacy Policy.

PLAN 117-180

Photographs may show modified designs.

Save
  • Jump to:
  • All (4)
  • Floor plans (2)
Questions? Get Personalized Help
Home  >  Style  >  Modern

Key Specs


Plan Sq Ft

3676
sq ft

Plan Bedrooms

4
Beds

Plan Bathrooms

3
Baths

Plan Floors

1
Floors

Plan Garages

3
Garages

Select Plan Set Options

What's included?
$195.00
$165.00
$395.00
$39.00
$165.00
Subtotal
$2085.00
Best Price Guaranteed*

Also order by phone: 1-800-447-0027
 
Questions about building your home?
Get Personalized Help
We do our best to get back to you within 24 - 48 business hours.
Need an answer faster? Call now...
Phone: 1-800-447-0027
Hours:
Ready for Your Call 7 Days a Week
Every Day 7 am - 8:30 pm Eastern

See our Terms & Conditions and Privacy Policy.

 
Wow!
Cost to Build Reports
Only $1.99 Right Now
Use Code CTB2026
Our Cost to Build Report gives you a personalized estimate for building your home, based on your location, plan, and materials.
Get Cost To Build Report
Limit one per order.

Residential Construction Guide

Learn Building Basics

This downloadable, 26-page guide is full of diagrams and details about plumbing, electrical, and more.

PLAN 117-180

This plan can be customized

Tell us about your desired changes so we can prepare an estimate for the design service. Click the button to submit your request for pricing, or call 1-800-447-0027 for assistance.

Modify This Plan

Plan Description


This modern design floor plan is 3676 sq ft and has 4 bedrooms and 3 bathrooms.

Full Specs & Features


Dimension

Depth: 57' 10"

Height: 29' 11"

Width: 110' 6"

Area

Basement Living: 1838 sq/ft

Bonus: 786 sq/ft

First Floor: 1838 sq/ft

Garage: 786 sq/ft

* Total Square Footage typically only includes conditioned space and does not include garages, porches, bonus rooms, or decks.

Roof

Primary Pitch: 6:12

Roof Framing: Truss

Exterior Wall Framing

Exterior Wall Finish: Siding

Framing: ICF

Bedroom Features

Walk In Closet

Kitchen Features

Eating Bar

Additional Room Features

Den Office Study Computer

Family Room Keeping Room

Great Room Living Room

Workshop

Garage Features

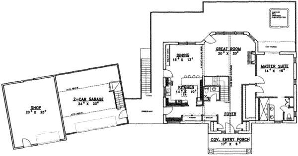
Detached Garage

Lot Characteristics

Suited For Sloping Lot

Suited For View Lot

Outdoor Spaces

Breezeway

Covered Front Porch

More

Empty Nester

Rooms

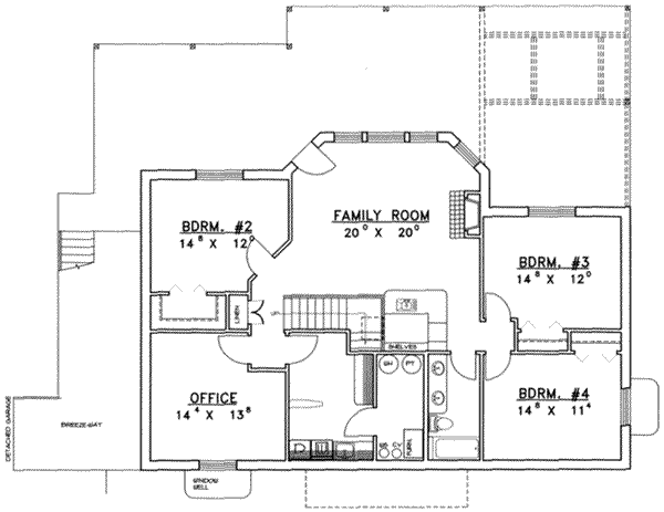
Bedroom 2:

147 sq/ft width 12' 4" x depth 12'

Bedroom 3:

183 sq/ft width 14' 4" x depth 12' 10"

Bedroom 4:

139 sq/ft width 12' 4" x depth 11' 4"

Dining Room:

195 sq/ft width 15' x depth 13'

Family Room:

400 sq/ft width 20' x depth 20'

Great Room:

400 sq/ft width 20' x depth 20'

Kitchen:

154 sq/ft width 14' 4" x depth 10' 9"

Master Bedroom:

240 sq/ft width 14' 6" x depth 16' 7"

Mechanical/Equipment Room:

128 sq/ft width 11' 4" x depth 11' 4"

Utility Room:

123 sq/ft width 9' x depth 13' 8"

What's Included In This Plan Set


  • Foundation Plan(s): Footing locations, foundation details, etc.
  • Floor Plan(s): Layout of floor plan, window/door schedule, interior and exterior dimensions
  • Exterior Elevations: Exterior on all four sides, siding notes, roof pitches, garage door heights, etc.
  • Overhead Roof Plan(s): A view of the home from above showing roof pitch, peaks, valleys, and other details.
  • Cross Section(s): Cut-through view of home. Shows foundation, insulation, wall construction, ceiling heights, etc.
  • Electrical Plan(s): Lighting, switches, electrical outlet placement throughout home.
  • Detail Sheet(s): Additional structural details included in most log and ICF plans. Important: design loads and weather conditions vary by region. As a result the size, spacing, and layout of all structural elements in this home design may need approval by a structural engineer or code official based on your specific site location.
  • Construction Notes / Detail(s): Referencing the entirety of the project.
  • Framing Detail(s): Location of supporting walls and beams. Location/spacing of floor joists, floor framing details. Layout of roof, roof framing details, truss/rafter locations, connection details etc. If included, the framing layout is intended to be a suggested layout only. Design loads and weather conditions vary by region. As a result the size, spacing, and layout of all structural elements in this home design may need approval by a structural engineer or code official based on your specific site location.
» See important information before purchasing.
Questions? Call 1-800-447-0027

Plan Set

CAD and PDF Set:
$2085.00
For use by design professionals to make substantial changes to your house plan and inexpensive local printing plus PDF plan sets are best for fast electronic delivery and inexpensive local printing.
CAD Set:
$2085.00
For use by design professionals to make substantial changes to your house plan and inexpensive local printing.
CAD Single Build:
$2085.00
For use by design professionals to make substantial changes to your house plan and inexpensive local printing.
PDF Set:
$2085.00
PDF plan sets are best for fast electronic delivery and inexpensive local printing.
CAD Unlimited Build:
$2855.00
For use by design professionals to make substantial changes to your house plan and inexpensive local printing.

Foundation

Daylight Basement:
$0.00
Ideal for sloping lot, lower level of home partially underground.
Slab:
$0.00
Ideal for level lot, single layer concrete poured directly on grade.

Additional Options

Right-Reading Reverse:
$195.00
Choose this option to reverse your plans and to have the text and dimensions readable.
Audio Video Design:
$165.00
Receive an overlay sheet with suggested placement of audio and video components.
Comprehensive Material List:
$395.00
A complete list of building supplies needed to construct the infrastructure of your new house, plus an overlay of materials shown directly on your PDF (foundation to rooftop with interior and exterior materials), and a detailed, itemized door and window schedule showing all sizes and types. Please allow 5-7 Business Days for completion. Note, the Comprehensive list is only available with a PDF purchase. The Comprehensive list can be ordered no matter what additional plan options you have selected.
Construction Guide:
$39.00
Educate yourself about basic building ideas with these four detailed diagrams that discuss electrical, plumbing, mechanical, and structural topics.
Lighting Design:
$165.00
Receive an overlay sheet with suggested placement of lighting fixtures.

* Alternate Foundations may take time to prepare.

** Options with a fee may take time to prepare. Please call to confirm.

Unless you buy an “unlimited” plan set or a multi-use license you may only build one home from a set of plans. Please call to verify if you intend to build more than once. Plan licenses are non-transferable and cannot be resold.
Today's Deals