- Jump to:
- All (8)
- Floor plans (2)
Key Specs
3868
sq ft
3
Beds
3.5
Baths
2
Floors
2
Garages
Phone: 1-800-447-0027
See our Terms & Conditions and Privacy Policy.
Use Code CTBFALL
Residential Construction Guide
Learn Building Basics
This downloadable, 26-page guide is full of diagrams and details about plumbing, electrical, and more.
PLAN 1088-2
This plan can be customized
Tell us about your desired changes so we can prepare an estimate for the design service. Click the button to submit your request for pricing, or call 1-800-447-0027 for assistance.
Plan Description
Floor Plans
Full Specs & Features
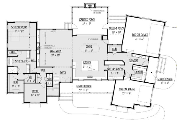
Dimension
Depth : 65' 8"
Height : 32'
Width : 98' 3"
Area
Bonus : 904 sq/ft
Garage : 920 sq/ft
Main Floor : 2766 sq/ft
Porch : 843 sq/ft
Upper Floor : 1102 sq/ft
Ceiling
Bonus Ceiling : 9' 1"
Ceiling Details : Cathedral decorative trusses in great room and cathedral ceiling in master
Garage Ceiling : 11' 3"
Main Ceiling : 10' 1"
Upper Ceiling Ft : 9' 1"
Roof
Primary Pitch : 10/12
Roof Framing : Rafters
Roof Load : 20lbs per sf
Roof Type : Gable
Secondary Pitch : 4/12
Exterior Wall Framing
Exterior Wall Finish : B&B
Framing : 2x4
Insulation : R-15
Bedroom Features
Main Floor Master Bedroom
Upstairs Bedrooms
Walk In Closet
Kitchen Features
Butler's Pantry
Kitchen Island
Additional Room Features
Den Office Study Computer
Great Room Living Room
Mud Room
Garage Features
Side Entry Garage
Split Garage
Outdoor Spaces
Covered Front Porch
Covered Rear Porch
Grill Deck Sundeck
Outdoor Kitchen Grill
Screened Porch
More
Unusual Shape
What's Included In This Plan Set
All plans are drawn at ¼” scale or larger and include :
- Foundation Plan: This page shows all necessary notations and dimensions including support columns, walls, and excavated/unexcavated areas.
- Exterior Elevations: Views of the home from all four sides showing exterior materials and measurements.
- Floor Plan(s): Detailed plans for each level showing room dimensions, wall partitions, windows and doors, etc.
- Cross Section: A slice of the home from roof to foundation, showing important details like stairs and wall construction.
- Overhead Roof Plan(s): A view of the home from above showing roof pitch, peaks, valleys, and other details.
- Construction Notes and Details: Shows the builder how things come together, like walls, the chimney, insulation, and more.
Plan Set
$1500.25
$2010.25
Foundation
$0.00
Framing
$0.00
Additional Options
$552.50
* Alternate Foundations may take time to prepare.
** Options with a fee may take time to prepare. Please call to confirm.
 
         
         
                 
                         
                         
                 
                 
                 
                 
                 
                 
                 
                 
                 
                 
                         
                        