- Jump to:
- All (4)
- Floor plans (2)
Key Specs
3970
sq ft
4
Beds
3
Baths
2
Floors
0
Garages
Phone: 1-800-447-0027
See our Terms & Conditions and Privacy Policy.
Use Code CTBFALL
Residential Construction Guide
Learn Building Basics
This downloadable, 26-page guide is full of diagrams and details about plumbing, electrical, and more.
PLAN 17-2860
This plan can be customized
Tell us about your desired changes so we can prepare an estimate for the design service. Click the button to submit your request for pricing, or call 1-800-447-0027 for assistance.
Plan Description
Floor Plans
Full Specs & Features
Dimension
Depth : 79' 10"
Height : 32' 8"
Width : 80' 6"
Area
First Floor: 2404 sq/ft
Second Floor: 1566 sq/ft
Roof
Primary Pitch : 12:12
Roof Framing : Combination Truss/Conventional
Roof Type : Asphalt
Exterior Wall Framing
Exterior Wall Finish : Siding
Framing : Wood - 2x4
Bedroom Features
Fireplace
Formal Dining Room
Main Floor Master Bedroom
Walk In Closet
Kitchen Features
Breakfast Nook
Additional Room Features
Den Office Study Computer
Great Room Living Room
Main Floor Laundry
Media Room
Vaulted / Cathedral Ceilings
Garage Features
Rear Entry Garage
Outdoor Spaces
Covered Front Porch
Covered Rear Porch
More
Jack & Jill Bath
Rooms
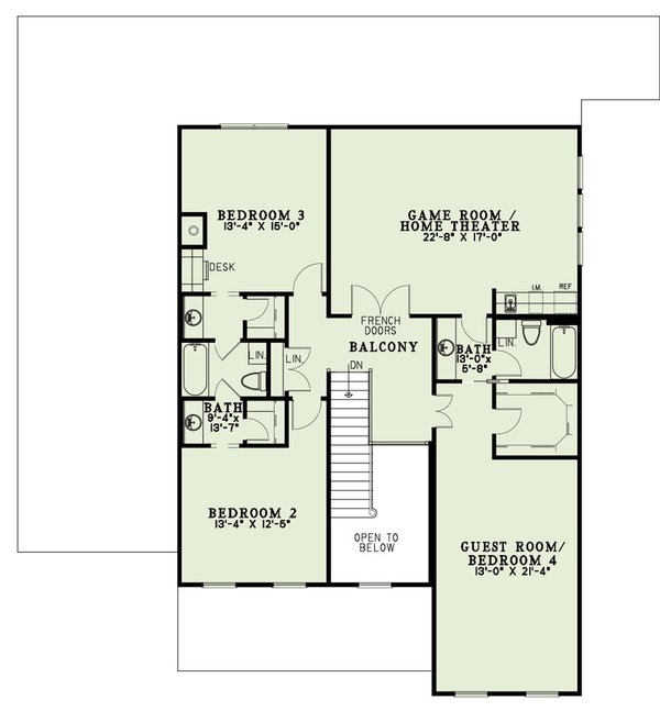
Bedroom 2:
165 sq/ft width 13' 4" x depth 12' 5"
Bedroom 3:
199 sq/ft width 13' 4" x depth 15'
Bedroom 4:
277 sq/ft width 13' x depth 21' 4"
Great Room:
368 sq/ft width 22' 7" x depth 16' 4"
Kitchen:
215 sq/ft width 13' 4" x depth 16' 2"
Master Bedroom:
262 sq/ft width 14' 4" x depth 18' 4"
What's Included In This Plan Set
Plans are typically drawn to ¼” scale and include:
- Foundation Plan(s): Most plans are available with a slab or crawlspace foundation. Optional walkout style basement (three walls masonry with a wood framed rear wall with notes for the builder to locate the windows and doors) and optional full basement foundation available if the plan allows, at an additional cost. (Walk out is not shown on elevations unless finished walk out.)
- Floor Plan(s): Each home plan includes the floor plan showing the dimensioned locations of walls, doors, and windows as well as a schematic electrical layout.
- Exterior Elevations: All plans include the exterior elevations (front, rear, right and left) that show and describe the finished materials of the house.
- Overhead Roof Plan(s): This is a “bird’s eye” view showing the roof slopes, ridges, valleys and any saddles.
- Cross Section(s): **Cross section views available for an additional fee. ** (cut throughs where applicable)
- Building Section(s): The building sections are vertical cuts through the house and the stairs showing floor, ceiling and roof height information. **Cross section views available for an additional fee. ** (cut throughs where applicable)
- Construction Notes / Detail(s): Shows basic parts and assemblies recommended for the home so the builder can see how things come together.
- Other Note(s): These are included for many interior and exterior conditions that require more specific information for their construction.
Plan Set
$1147.50
$1232.50
$1445.00
$1742.50
$2295.00
$2890.00
Foundation
$0.00
$0.00
$254.15
$254.15
Framing
$0.00
$254.15
Additional Options
$254.15
$68.00
$140.25
$335.75
$33.15
$140.25
$126.65
* Alternate Foundations may take time to prepare.
** Options with a fee may take time to prepare. Please call to confirm.
 
         
         
                 
                         
                         
                 
                 
                 
                 
                 
                 
                