- Jump to:
- All (5)
- Floor plans (3)
Key Specs
4192
sq ft
4
Beds
3
Baths
2
Floors
2
Garages
Phone: 1-800-447-0027
See our Terms & Conditions and Privacy Policy.
Use Code CTBFALL
Residential Construction Guide
Learn Building Basics
This downloadable, 26-page guide is full of diagrams and details about plumbing, electrical, and more.
PLAN 117-162
This plan can be customized
Tell us about your desired changes so we can prepare an estimate for the design service. Click the button to submit your request for pricing, or call 1-800-447-0027 for assistance.
Plan Description
Floor Plans
Full Specs & Features
Dimension
Depth : 57' 6"
Height : 28' 4"
Width : 66'
Area
Basement Unfinished: 1344 sq/ft
Bonus: 408 sq/ft
First Floor: 1504 sq/ft
Second Floor: 1344 sq/ft
Roof
Primary Pitch : 7:12
Roof Framing : Truss
Exterior Wall Framing
Exterior Wall Finish : Siding
Framing : ICF
Bedroom Features
Upstairs Master Bedrooms
Walk In Closet
Kitchen Features
Kitchen Island
Walk In Pantry Cabinet Pantry
Additional Room Features
Den Office Study Computer
Hobby Rec Room Game Room
Storage Area
Outdoor Spaces
Covered Front Porch
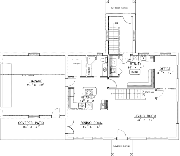
Rooms
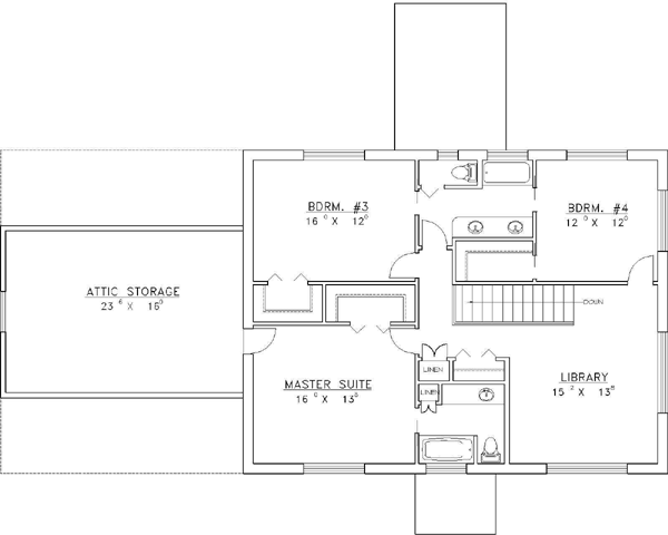
Attic:
378 sq/ft width 23' 8" x depth 16'
Bedroom 1:
192 sq/ft width 16' x depth 12'
Bedroom 2:
144 sq/ft width 12' x depth 12'
Dining Room:
160 sq/ft width 10' x depth 16'
Garage:
506 sq/ft width 23' x depth 22'
Kitchen:
122 sq/ft width 14' 8" x depth 8' 4"
Library - Upper:
207 sq/ft width 15' 2" x depth 13' 8"
Living Room:
418 sq/ft width 23' 8" x depth 17' 8"
Master Bedroom:
220 sq/ft width 16' x depth 13' 9"
Office:
96 sq/ft width 8' x depth 12'
Patio:
192 sq/ft width 24' x depth 8'
Utility Room:
77 sq/ft width 16' 6" x depth 4' 8"
What's Included In This Plan Set
- Foundation Plan(s): Footing locations, foundation details, etc.
- Floor Plan(s): Layout of floor plan, window/door schedule, interior and exterior dimensions
- Exterior Elevations: Exterior on all four sides, siding notes, roof pitches, garage door heights, etc.
- Overhead Roof Plan(s): A view of the home from above showing roof pitch, peaks, valleys, and other details.
- Cross Section(s): Cut-through view of home. Shows foundation, insulation, wall construction, ceiling heights, etc.
- Electrical Plan(s): Lighting, switches, electrical outlet placement throughout home.
- Detail Sheet(s): Additional structural details included in most log and ICF plans. Important: design loads and weather conditions vary by region. As a result the size, spacing, and layout of all structural elements in this home design may need approval by a structural engineer or code official based on your specific site location.
- Construction Notes / Detail(s): Referencing the entirety of the project.
- Framing Detail(s): Location of supporting walls and beams. Location/spacing of floor joists, floor framing details. Layout of roof, roof framing details, truss/rafter locations, connection details etc. If included, the framing layout is intended to be a suggested layout only. Design loads and weather conditions vary by region. As a result the size, spacing, and layout of all structural elements in this home design may need approval by a structural engineer or code official based on your specific site location.
Plan Set
$1950.75
$1950.75
$2545.75
Foundation
$0.00
Additional Options
$165.75
$140.25
$335.75
$33.15
$140.25
* Alternate Foundations may take time to prepare.
** Options with a fee may take time to prepare. Please call to confirm.
 
         
         
                 
                         
                         
                         
                 
                 
                 
                 
                 
                 
                 
                 
                 
                