SAVED No Saved House Plans REGISTER LOGIN Empty Cart
Don't lose your saved plans!  Create an account to access your saves whenever you want. See our Terms & Conditions and Privacy Policy.
15% OFF THIS PLAN TODAY

PLAN 137-414

Photographs may show modified designs.

Save
  • Jump to:
  • All (4)
  • Floor plans (2)
Questions? Get Personalized Help
Home  >  Style  >  Southern

Key Specs


Plan Sq Ft

4685
sq ft

Plan Bedrooms

5
Beds

Plan Bathrooms

5.5
Baths

Plan Floors

2
Floors

Plan Garages

3
Garages

Select Plan Set Options

What's included?
$140.25
$250.75
$33.15
$140.25
Subtotal
NOW $1657.50
You save $292.50 (15% savings)
Sale ends soon!
Best Price Guaranteed*

Also order by phone: 1-800-447-0027
 
Questions about building your home?
Get Personalized Help
We do our best to get back to you within 24 - 48 business hours.
Need an answer faster? Call now...
Phone: 1-800-447-0027
Hours:
Ready for Your Call 7 Days a Week
Every Day 7 am - 8:30 pm Eastern

See our Terms & Conditions and Privacy Policy.

 
Wow!
Cost to Build Reports
Only $1.99 Right Now
Use Code CTB2026
Our Cost to Build Report gives you a personalized estimate for building your home, based on your location, plan, and materials.
Get Cost To Build Report
Limit one per order.

Residential Construction Guide

Learn Building Basics

This downloadable, 26-page guide is full of diagrams and details about plumbing, electrical, and more.

PLAN 137-414

This plan can be customized

Tell us about your desired changes so we can prepare an estimate for the design service. Click the button to submit your request for pricing, or call 1-800-447-0027 for assistance.

Modify This Plan

Plan Description


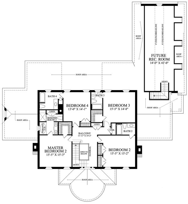
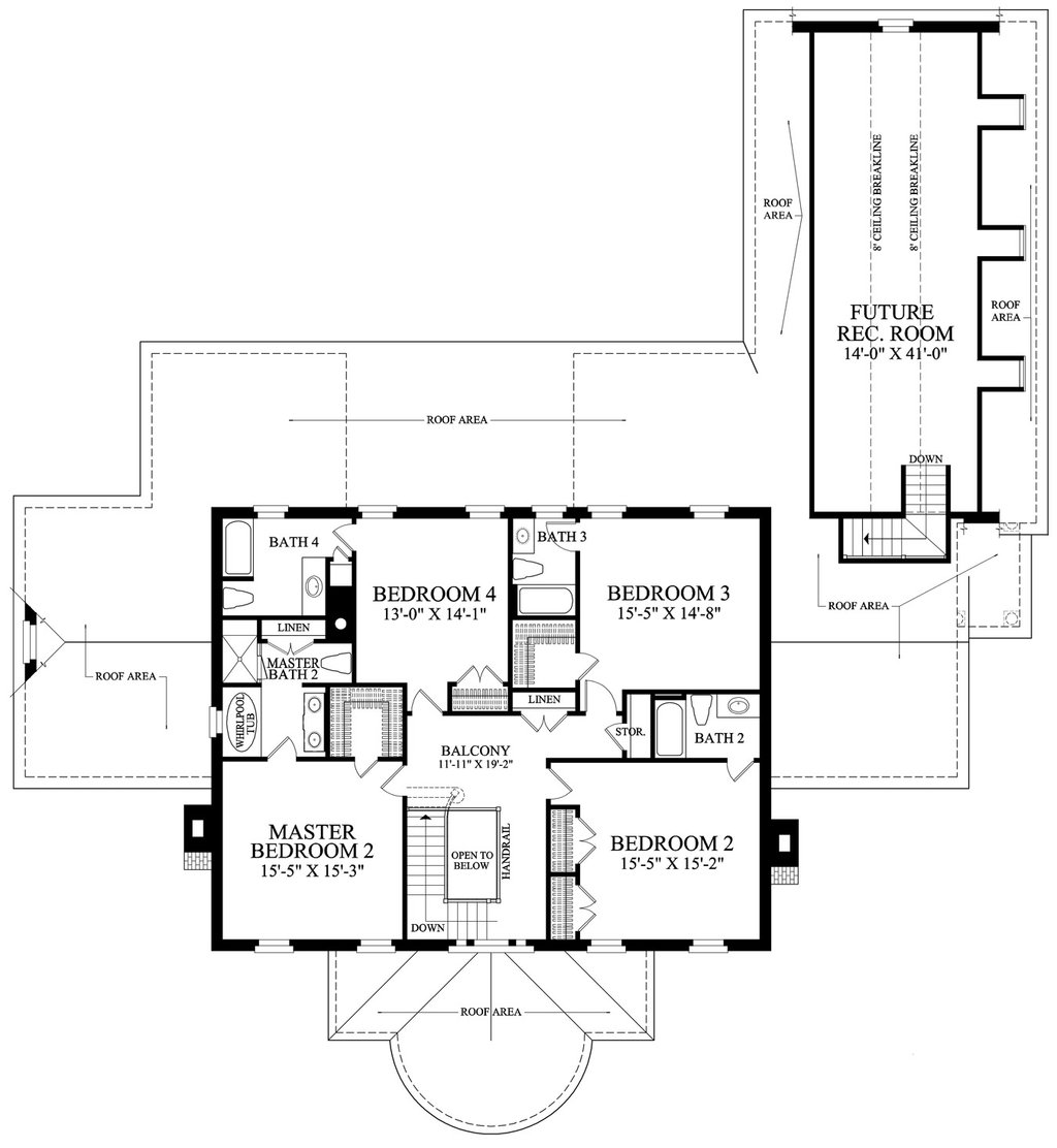
This southern design floor plan is 4685 sq ft and has 5 bedrooms and 5.5 bathrooms.

Full Specs & Features


Dimension

Depth : 94' 4"

Width : 86' 4"

Area

Main Floor : 2966 sq/ft

Optional Bonus Room : 637 sq/ft

Porch : 589 sq/ft

Upper Floor : 1719 sq/ft

* Total Square Footage typically only includes conditioned space and does not include garages, porches, bonus rooms, or decks.

Ceiling

Main Ceiling : 10'

Upper Ceiling Ft : 9'

Bedroom Features

2 Master Suites

Main Floor Bedrooms

Main Floor Master Bedroom

Split Bedrooms

Upstairs Bedrooms

Upstairs Master Bedrooms

Walk In Closet

Kitchen Features

Breakfast Nook

Butler's Pantry

Eating Bar

Kitchen Island

Walk In Pantry Cabinet Pantry

Additional Room Features

Den Office Study Computer

Exercise Room

Family Room Keeping Room

Great Room Living Room

Main Floor Laundry

Master Sitting Area

Storage Area

Sunroom

Unfinished Future Space

Wet Bar

Wine Cellar

Workshop

Outdoor Spaces

Balcony

Covered Front Porch

Covered Rear Porch

Grill Deck Sundeck

Outdoor Kitchen Grill

Screened Porch

What's Included In This Plan Set




All plans are drawn at ¼” scale or larger and include :

Plans are typically drawn to ¼” scale and include:
  • Foundation Plan(s): This page shows all necessary notations and dimensions including footings, support columns, walls, and excavated/unexcavated areas.
  • Floor Plan(s): Detailed plans for each level showing room dimensions, wall partitions, windows and doors, fixture locations, and ceiling treatments.
  • Exterior Elevations: Views of the home from all four sides showing exterior materials, roof slope, ridge heights, siding and trim notes.
  • Interior Elevations: Detailed drawings of kitchen cabinet elevations and other elements.
  • Overhead Roof Plan(s): A view of the home from above showing roof pitch, peaks, valleys, and other details.
  • Cross Section(s): A slice of the home from roof to foundation, showing relationships between floors, roof, and foundation.
  • Building Section(s): Shows the relationship between different levels, wall heights, and the overall building volume. May include details like foundation, framing, insulation, and finishes.
  • Electrical Plan(s): Shows the location of lights, receptacles, switches, etc. Some plans that do not include an electrical plan may have it available for an additional fee.
  • Construction Notes / Detail(s): Shows basic parts and assemblies recommended for the home so the builder can see how things come together.
  • Rendering(s): Designer’s rendering of front elevation
» See important information before purchasing.
Questions? Call 1-800-447-0027

Plan Set

5 Copy Set:
$1657.50
5 printed plan sets mailed to you.
8 Copy Set:
$1657.50
8 printed plan sets mailed to you.
PDF Master Set:
$1657.50
An unlocked, modifiable PDF file
PDF Set:
$1657.50
PDF plan sets are best for fast electronic delivery and inexpensive local printing.
Reproducible Set:
$1657.50
For inexpensive local printing / making minor adjustments by hand. 1 printed set, typically on Bond paper.
Single Set:
$1657.50
One printed set for bidding purposes only. Not a legal building set for construction.
Study Set:
$1657.50
One electronic set for bidding purposes only. Not a legal building set for construction.

Foundation

Basement:
$0.00
Ideal for level lot, lower level of home partially or fully underground.
Crawlspace:
$0.00
Ideal for semi-sloped or level lot, home can be built off of grade, typically 18” - 48”.

Framing

Wood 2x4:
$0.00
Wood 2x4 Exterior Walls

Additional Options

Audio Video Design:
$140.25
Receive an overlay sheet with suggested placement of audio and video components.
Comprehensive Material List:
$250.75
A complete list of building supplies needed to construct the infrastructure of your new house, plus an overlay of materials shown directly on your PDF (foundation to rooftop with interior and exterior materials), and a detailed, itemized door and window schedule showing all sizes and types. Please allow 5-7 Business Days for completion. Note, the Comprehensive list is only available with a PDF purchase. The Comprehensive list can be ordered no matter what additional plan options you have selected.
Construction Guide:
$33.15
Educate yourself about basic building ideas with these four detailed diagrams that discuss electrical, plumbing, mechanical, and structural topics.
Lighting Design:
$140.25
Receive an overlay sheet with suggested placement of lighting fixtures.

* Alternate Foundations may take time to prepare.

** Options with a fee may take time to prepare. Please call to confirm.

Unless you buy an “unlimited” plan set or a multi-use license you may only build one home from a set of plans. Please call to verify if you intend to build more than once. Plan licenses are non-transferable and cannot be resold.