- Jump to:
- All (3)
- Floor plans (2)
Key Specs
4820
sq ft
5
Beds
4.5
Baths
2
Floors
3
Garages
Phone: 1-800-447-0027
See our Terms & Conditions and Privacy Policy.
Use Code CTBFALL
Residential Construction Guide
Learn Building Basics
This downloadable, 26-page guide is full of diagrams and details about plumbing, electrical, and more.
PLAN 328-400
This plan can be customized
Tell us about your desired changes so we can prepare an estimate for the design service. Click the button to submit your request for pricing, or call 1-800-447-0027 for assistance.
Plan Description
Floor Plans
Full Specs & Features
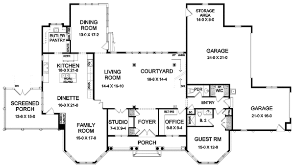
Dimension
Depth : 58'
Width : 90'
Area
First Floor: 2382 sq/ft height 9'
Second Floor: 2438 sq/ft height 9'
Roof
Roof Framing : Conventional
Roof Type : Asphalt
Exterior Wall Framing
Exterior Wall Finish : Brick/Shingle
Framing : Wood - 2x6
Bedroom Features
Fireplace
Formal Dining Room
Guest Suite
Upstairs Master Bedrooms
Walk In Closet
Kitchen Features
Breakfast Nook
Butler's Pantry
Kitchen Island
Additional Room Features
Den Office Study Computer
Family Room Keeping Room
Loft
Sunroom
Outdoor Spaces
Balcony
Courtyard
Screened Porch
Rooms
Bedroom 2:
160 sq/ft width 13' x depth 12' 4"
Bedroom 3:
237 sq/ft width 11' 4" x depth 21'
Bedroom 4:
231 sq/ft width 15' 3" x depth 15' 2"
Courtyard:
267 sq/ft width 18' 8" x depth 14' 4"
Garage:
378 sq/ft width 21' x depth 18'
Kitchen:
387 sq/ft width 18' x depth 21' 6"
Living Room:
155 sq/ft width 14' 4" x depth 10' 10"
Office:
86 sq/ft width 9' 3" x depth 9' 4"
Porch - Screened:
202 sq/ft width 13' 6" x depth 15'
Storage:
112 sq/ft width 14' x depth 8'
What's Included In This Plan Set
All plans are drawn at ¼” scale or larger and include :
- Foundation Plan: This page shows all necessary notations and dimensions including support columns, walls, and excavated/unexcavated areas.
- Exterior Elevations: Views of the home from all four sides showing exterior materials and measurements.
- Floor Plan(s): Detailed plans for each level showing room dimensions, wall partitions, windows and doors, etc.
- Cross Section: A slice of the home from roof to foundation, showing important details like stairs and wall construction.
- Overhead Roof Plan(s): A view of the home from above showing roof pitch, peaks, valleys, and other details.
- Construction Notes and Details: Shows the builder how things come together, like walls, the chimney, insulation, and more.
Plan Set
$701.25
$765.00
$977.50
$2125.00
$637.50
Foundation
$0.00
Framing
$0.00
Additional Options
$51.00
$85.00
$33.15
$170.00
$34.00
* Alternate Foundations may take time to prepare.
** Options with a fee may take time to prepare. Please call to confirm.
 
         
         
                 
                         
                         
                 
                 
                 
                 
                 
                 
                 
                 
                 
                 
                        