- Jump to:
- All (4)
- Floor plans (2)
Phone: 1-800-447-0027
See our Terms & Conditions and Privacy Policy.
Use Code CTBFALL
Residential Construction Guide
Learn Building Basics
This downloadable, 26-page guide is full of diagrams and details about plumbing, electrical, and more.
PLAN 70-1413
This plan can be customized
Tell us about your desired changes so we can prepare an estimate for the design service. Click the button to submit your request for pricing, or call 1-800-447-0027 for assistance.
Plan Description
Floor Plans
Full Specs & Features
Dimension
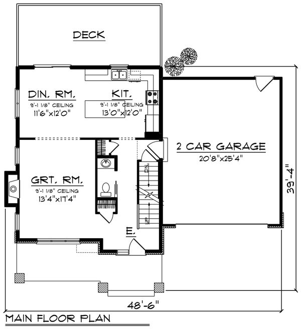
Depth : 39' 4"
Height : 24'
Width : 48' 6"
Area
Garage : 546 sq/ft
Main Floor : 816 sq/ft
Upper Floor : 756 sq/ft
Ceiling
Lower Ceiling : 8'
Main Ceiling : 9'
Upper Ceiling Ft : 8'
Roof
Primary Pitch : 8:12
Roof Framing : Truss
Roof Load : 47 lbs psf
Secondary Pitch : 4:12
Exterior Wall Framing
Exterior Wall Finish : Stone, Brick, Horizontal Siding
Framing : 2x6
Insulation : R-20
Bedroom Features
Upstairs Master Bedrooms
Walk In Closet
Kitchen Features
Breakfast Nook
Kitchen Island
Additional Room Features
Great Room Living Room
Storage Area
Upstairs Laundry
Garage Features
Front Entry Garage
Outdoor Spaces
Covered Front Porch
Grill Deck Sundeck
What's Included In This Plan Set
- Cover Sheet: Cover sheet with front rendering
- Foundation Plan(s): Foundation plans at 1/4" = 1' scale
- Floor Plan(s): Floor plans at 1/4" = 1' scale
- Exterior Elevations: Exterior elevations of all four views, front at 1/4" = 1' scale, rear and sides vary from 1/8" to 1/4" = 1' scale
- Overhead Roof Plan(s): A view of the home from above showing roof pitch, peaks, valleys, and other details.
- Cross Section(s): A slice of the home from roof to foundation, showing relationships between floors, roof, and foundation.
- Building Section(s): Building sections and details as required to construct the individual design
- Electrical Plan(s): Schematic electrical plans with suggested switch, outlet, and light fixture locations
- Kitchen Cabinet Elevation(s): Interior elevation of cabinets at 1/4" = 1' scale
- Construction Notes / Detail(s): Shows basic parts and assemblies recommended for the home so the builder can see how things come together.
- Specification(s): General specification design notes
Plan Set
$868.70
$906.95
$1084.60
$1084.60
$1714.45
Foundation
$0.00
$335.75
$335.75
Additional Options
$335.75
$68.00
$140.25
$250.75
$33.15
$140.25
$63.75
* Alternate Foundations may take time to prepare.
** Options with a fee may take time to prepare. Please call to confirm.
 
         
         
                 
                         
                         
                 
                 
                 
                 
                 
                 
                 
                 
                 
                        