- Jump to:
- All (13)
- Floor plans (1)
Key Specs
2097
sq ft
3
Beds
3
Baths
1
Floors
3
Garages
Phone: 1-800-447-0027
See our Terms & Conditions and Privacy Policy.
Use Code CTBFALL
Residential Construction Guide
Learn Building Basics
This downloadable, 26-page guide is full of diagrams and details about plumbing, electrical, and more.
PLAN 56-164
This plan can be customized
Tell us about your desired changes so we can prepare an estimate for the design service. Click the button to submit your request for pricing, or call 1-800-447-0027 for assistance.
Plan Description
Floor Plans
Full Specs & Features
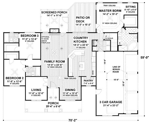
Dimension
Depth : 59'
Height : 24'
Width : 70' 2"
Area
Bonus: 452 sq/ft
First Floor: 2097 sq/ft
Roof
Primary Pitch : 8:12
Roof Framing : Conventional
Roof Type : Shingle
Exterior Wall Framing
Exterior Wall Finish : Siding
Framing : 2"x4"
Bedroom Features
Split Bedrooms
Walk In Closet
Kitchen Features
Breakfast Nook
Eating Bar
Kitchen Island
Walk In Pantry Cabinet Pantry
Additional Room Features
Great Room Living Room
Master Sitting Area
Play Flex Room
Sunroom
Unfinished Future Space
Garage Features
Oversized Garage
Side Entry Garage
Lot Characteristics
Suited For Corner Lot
Suited For View Lot
Outdoor Spaces
Covered Front Porch
Screened Porch
More
Jack & Jill Bath
Rooms
3rd BR Closet:
32 sq/ft width 7' 7" x depth 4' 4"
Bathroom 3:
37 sq/ft width 7' 6" x depth 5'
Bedroom 2:
148 sq/ft width 11' x depth 13' 6"
Bedroom 2 Closet:
26 sq/ft width 7' 7" x depth 3' 6"
Bedroom 3:
148 sq/ft width 11' x depth 13' 6"
Bedroom 3 Closet:
26 sq/ft width 7' 7" x depth 3' 6"
Breakfast Area:
104 sq/ft width 12' x depth 8' 8"
Deck:
216 sq/ft width 14' 3" x depth 15' 2"
Dining Room:
132 sq/ft width 11' x depth 12'
Family Room:
315 sq/ft width 14' x depth 22' 6"
Garage:
71048 sq/ft width 214' x depth 332'
Hall Bathroom:
37 sq/ft width 7' 7" x depth 5'
Kitchen:
197 sq/ft width 14' 3" x depth 13' 10"
Laundry Room:
51 sq/ft width 9' 4" x depth 5' 6"
Living Room:
132 sq/ft width 11' x depth 12'
Master Bathroom:
121 sq/ft width 12' 2" x depth 10'
Master Bedroom:
214 sq/ft width 14' 2" x depth 15' 2"
Master Closet:
40 sq/ft width 6' 10" x depth 6'
Porch - Front:
175 sq/ft width 29' 4" x depth 6'
Porch - Rear:
161 sq/ft width 14' 1" x depth 11' 6"
What's Included In This Plan Set
- Foundation Plan(s): This page shows all necessary notations and dimensions including footings, support columns, walls, and excavated/unexcavated areas.
- Floor Plan(s): Detailed plans for each level showing room dimensions, wall partitions, windows and doors, fixture locations, and ceiling treatments.
- Exterior Elevations: All four sides
- Overhead Roof Plan(s): A view of the home from above showing roof pitch, peaks, valleys, and other details.
- Cross Section(s): A slice of the home from roof to foundation, showing relationships between floors, roof, and foundation.
- Electrical Plan(s): Most plans from this designer have this available
- Kitchen Cabinet Elevation(s): Detailed drawings of kitchen cabinet elevations
- Construction Notes / Detail(s): Shows basic parts and assemblies recommended for the home so the builder can see how things come together.
- Rendering(s): Artist rendering
- Specification(s): Includes general specifications, not specific to individual plans.
Plan Set
$1185.75
$1228.25
$1270.75
$1402.50
$1610.75
Foundation
$0.00
$0.00
$297.50
Framing
$0.00
$297.50
Additional Options
$250.75
$59.50
$637.50
$85.00
$33.15
$85.00
$250.75
$1275.00
* Alternate Foundations may take time to prepare.
** Options with a fee may take time to prepare. Please call to confirm.
 
         
         
                 
                         
                 
                 
                 
                 
                 
                 
                 
                 
                 
                