SAVED No Saved House Plans REGISTER LOGIN Empty Cart
Don't lose your saved plans!  Create an account to access your saves whenever you want. See our Terms & Conditions and Privacy Policy.

PLAN 21-377

Photographs may show modified designs.

Save
  • Jump to:
  • All (4)
  • Floor plans (2)
Questions? Get Personalized Help

Key Specs


Plan Sq Ft

2292
sq ft

Plan Bedrooms

4
Beds

Plan Bathrooms

2.5
Baths

Plan Floors

1
Floors

Plan Garages

2
Garages

Select Plan Set Options

What's included?
$150.00
Additional Construction Sets$65.00/each

Additional hard copies of the plan (can be ordered at the time of purchase and within 90 days of the purchase date).

$165.00
$39.00
$165.00
$150.00
Mirror Reversed Sets$50.00

Printed sets showing plan in reverse, text and dimensions will be backwards.

Subtotal
$1400.00
Best Price Guaranteed*

Also order by phone: 1-800-447-0027
 
Questions about building your home?
Get Personalized Help
We do our best to get back to you within 24 - 48 business hours.
Need an answer faster? Call now...
Phone: 1-800-447-0027
Hours:
Ready for Your Call 7 Days a Week
Every Day 7 am - 8:30 pm Eastern

See our Terms & Conditions and Privacy Policy.

 
Wow!
Cost to Build Reports
Only $1.99 Right Now
Use Code CTB2026
Our Cost to Build Report gives you a personalized estimate for building your home, based on your location, plan, and materials.
Get Cost To Build Report
Limit one per order.

Residential Construction Guide

Learn Building Basics

This downloadable, 26-page guide is full of diagrams and details about plumbing, electrical, and more.

PLAN 21-377

This plan can be customized

Tell us about your desired changes so we can prepare an estimate for the design service. Click the button to submit your request for pricing, or call 1-800-447-0027 for assistance.

Modify This Plan

Plan Description


This traditional design floor plan is 2292 sq ft and has 4 bedrooms and 2.5 bathrooms.

Full Specs & Features


Dimension

Depth : 61'

Height : 21' 10"

Width : 75'

Area

Bonus: 406 sq/ft height 8'

First Floor: 2292 sq/ft

Garage: 772 sq/ft

* Total Square Footage typically only includes conditioned space and does not include garages, porches, bonus rooms, or decks.

Ceiling

Main Ceiling : 9'

Roof

Primary Pitch : 8:12

Roof Framing : Stick

Roof Type : Hip / Gable

Secondary Pitch : 12:12

Exterior Wall Framing

Exterior Wall Finish : Brick / Siding

Framing : 2"x4"

Bedroom Features

Main Floor Bedrooms

Main Floor Master Bedroom

Kitchen Features

Kitchen Island

Additional Room Features

Great Room Living Room

Main Floor Laundry

Play Flex Room

Storage Area

Unfinished Future Space

Outdoor Spaces

Covered Front Porch

Covered Rear Porch

Rooms

Bedroom 2:

width 11' 4" x depth 13'

Bedroom 3:

width 12' 10" x depth 12'

Bedroom 4:

width 11' 4" x depth 13'

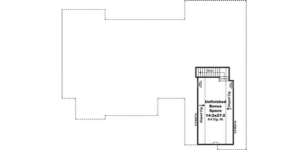
Bonus:

406 sq/ft width 14' 2" x depth 27' 2"

Breakfast Nook:

width 12' 6" x depth 10' 4"

Covered Front Porch:

108 sq/ft width 21' 6" x depth 5'

Covered Rear Porch:

260 sq/ft width 32' 6" x depth 8'

Dining Room:

width 13' 2" x depth 10' 2"

Foyer:

width 6' 2" x depth 10' 2"

Garage:

772 sq/ft width 24' 4" x depth 23' 2"

Great Room:

width 19' 4" x depth 15'

Kitchen:

width 12' 6" x depth 13' 2"

Laundry Room:

width 14' 6" x depth 5' 6"

Master Bath:

width 10' 10" x depth 12' 6"

Master Bedroom:

width 13' 2" x depth 15' 6"

Master Closet:

width 10' 10" x depth 8'

What's Included In This Plan Set


Plans are typically drawn to ¼” scale or larger and include:
  • Cover Sheet: Color rendering or black and white image of the exterior
  • Foundation Plan(s): Drawn to 1/4" scale, this page shows all necessary notations and dimensions including support columns, walls and excavated and unexcavated areas.
  • Floor Plan(s): Detailed plans, drawn to 1/4" scale for each level showing room dimensions, wall partitions, windows, etc. as well as the location of electrical outlets and switches.
  • Exterior Elevations: A blueprint picture of all four sides showing exterior materials and measurements.
  • Interior Elevations: Where applicable, each house plan set includes relevant interior elevations, including cabinets, cabinet details, columns and walls with unique conditions.
  • Overhead Roof Plan(s): Overhead view of roof.
  • Cross Section(s): A vertical cutaway view of the house from roof to foundation showing details of framing, construction, flooring and roofing.
  • Electrical Plan(s): Lighting, outlets, switches, detectors, etc.
  • Kitchen Cabinet Elevation(s): Scaled drawings of interior cabinets.
  • Construction Notes and Detail(s): Shows basic parts and assemblies recommended for the home so the builder can see how things come together.
  • Framing Detail(s): Ceiling joist size and spacing and layouts. If included, the framing layout is intended to be a suggested layout only. Design loads and weather conditions vary by region. As a result the size, spacing, and layout of all structural elements in this home design may need approval by a structural engineer or code official based on your specific site location.
  • Wall Section(s): Exterior wall and roof sections and specialty details.
» See important information before purchasing.
Questions? Call 1-800-447-0027

Plan Set

PDF Set:
$1400.00
PDF plan sets are best for fast electronic delivery and inexpensive local printing.
5 Copy Set:
$1500.00
5 printed plan sets mailed to you.
5 Copy and PDF Set:
$1700.00
5 printed plan sets mailed to you plus PDF plan sets are best for fast electronic delivery and inexpensive local printing.
CAD Set:
$2100.00
For use by design professionals to make substantial changes to your house plan and inexpensive local printing.
Single Set:
$1250.00
One printed set for bidding purposes only. Not a legal building set for construction.

Foundation

Basement:
$0.00
Ideal for level lot, lower level of home partially or fully underground.

Additional Options

Right-Reading Reverse:
$150.00
Choose this option to reverse your plans and to have the text and dimensions readable.
Additional Construction Sets:
$65.00
Additional hard copies of the plan (can be ordered at the time of purchase and within 90 days of the purchase date).
Audio Video Design:
$165.00
Receive an overlay sheet with suggested placement of audio and video components.
Construction Guide:
$39.00
Educate yourself about basic building ideas with these four detailed diagrams that discuss electrical, plumbing, mechanical, and structural topics.
Lighting Design:
$165.00
Receive an overlay sheet with suggested placement of lighting fixtures.
Material List:
$150.00
A spreadsheet of building supplies needed to construct the infrastructure of your new house. Please note materials lists will not reflect add-ons such as alternate foundation and framing options.
Mirror Reversed Sets:
$50.00
A mirror-reversed set is a printed copy of your house, resulting in the same image you would see if you held the drawing up to a mirror. Everything, including the text, is backward in relation to the original design. These kinds of drawing are typically used to reorient an original plan more advantageously on a site, either because the homeowner prefers it that way or because of limitations of the site itself. Note: Mirror reverse sets are only available with a 5 copy or 8 copy set. With a Reproducible, PDF, or CAD set, you can print mirrored copies locally. In addition: 5 Copy set selected, should only allow 4 mirrored sets to be selected. 8 Copy set selected, should only allow 7 mirrored sets to be selected.

* Alternate Foundations may take time to prepare.

** Options with a fee may take time to prepare. Please call to confirm.

Unless you buy an “unlimited” plan set or a multi-use license you may only build one home from a set of plans. Please call to verify if you intend to build more than once. Plan licenses are non-transferable and cannot be resold.
Today's Deals