- Jump to:
- All (4)
- Floor plans (2)
Key Specs
2490
sq ft
5
Beds
3.5
Baths
2
Floors
2
Garages
Phone: 1-800-447-0027
See our Terms & Conditions and Privacy Policy.
Use Code CTBFALL
Residential Construction Guide
Learn Building Basics
This downloadable, 26-page guide is full of diagrams and details about plumbing, electrical, and more.
PLAN 72-565
This plan can be customized
Tell us about your desired changes so we can prepare an estimate for the design service. Click the button to submit your request for pricing, or call 1-800-447-0027 for assistance.
Plan Description
Floor Plans
Full Specs & Features
Dimension
Depth : 34' 10"
Height : 24'
Width : 54' 5"
Area
First Floor: 1190 sq/ft height 8'
Second Floor: 1300 sq/ft
Roof
Primary Pitch : 5:12
Roof Framing : Combination Truss/Conventional
Roof Type : Shingle
Exterior Wall Framing
Exterior Wall Finish : Brick/Siding
Framing : Wood - 2x4
Bedroom Features
Fireplace
Formal Dining Room
Formal Living Room / Parlor
Split Bedrooms
Kitchen Features
Breakfast Nook
Additional Room Features
Family Room Keeping Room
Outdoor Spaces
Courtyard
Covered Front Porch
Rooms
3rd BR Closet:
10 sq/ft width 2' 1" x depth 5' 1"
Basement Foundation:
1895 sq/ft width 54' 5" x depth 34' 10"
Bedroom 2:
188 sq/ft width 11' 4" x depth 16' 8"
Bedroom 2 Closet:
16 sq/ft width 2' 1" x depth 8' 1"
Bedroom 3:
138 sq/ft width 11' 6" x depth 12'
Bedroom 3 Closet:
16 sq/ft width 2' 1" x depth 8' 1"
Bedroom 4:
151 sq/ft width 10' 4" x depth 14' 8"
Bedroom 4 Closet:
16 sq/ft width 2' 1" x depth 8' 1"
Bedroom 5:
110 sq/ft width 10' 4" x depth 10' 8"
Breakfast Room:
102 sq/ft width 9' 4" x depth 11'
Deck:
544 sq/ft width 10' x depth 54' 5"
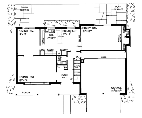
Dining Room:
143 sq/ft width 11' x depth 13'
Foyer:
69 sq/ft width 6' x depth 11' 6"
Garage:
455 sq/ft width 21' x depth 21' 8"
Gathering Room:
260 sq/ft width 12' x depth 21' 8"
Hall:
63 sq/ft width 3' 3" x depth 19' 6"
Hall Closet:
7 sq/ft width 2' 1" x depth 3' 6"
Kitchen:
138 sq/ft width 10' 8" x depth 13'
Living Room:
247 sq/ft width 13' x depth 19'
Master Bedroom:
242 sq/ft width 14' x depth 17' 4"
Master Closet:
51 sq/ft width 6' 8" x depth 7' 8"
Porch - Front:
156 sq/ft width 5' x depth 31' 3"
What's Included In This Plan Set
All plans are drawn at ¼” scale or larger and include :
- Foundation Plan: This page shows all necessary notations and dimensions including support columns, walls, and excavated/unexcavated areas.
- Exterior Elevations: Views of the home from all four sides showing exterior materials and measurements.
- Floor Plan(s): Detailed plans for each level showing room dimensions, wall partitions, windows and doors, etc.
- Cross Section: A slice of the home from roof to foundation, showing important details like stairs and wall construction.
- Overhead Roof Plan(s): A view of the home from above showing roof pitch, peaks, valleys, and other details.
- Construction Notes and Details: Shows the builder how things come together, like walls, the chimney, insulation, and more.
Plan Set
$1013.17
$1130.98
$1248.79
Foundation
$0.00
$233.75
$233.75
$233.75
Framing
$0.00
Additional Options
$165.75
$51.00
$420.75
$127.50
$250.75
$33.15
$127.50
$72.25
$0.00
$845.75
* Alternate Foundations may take time to prepare.
** Options with a fee may take time to prepare. Please call to confirm.
 
         
         
                 
                         
                         
                 
                 
                 
                 
                 
                 
                 
                 
                 
                        