- Jump to:
- All (5)
- Floor plans (2)
Key Specs
2922
sq ft
5
Beds
3
Baths
2
Floors
2
Garages
Phone: 1-800-447-0027
See our Terms & Conditions and Privacy Policy.
Use Code CTBFALL
Residential Construction Guide
Learn Building Basics
This downloadable, 26-page guide is full of diagrams and details about plumbing, electrical, and more.
PLAN 952-261
This plan can be customized
Tell us about your desired changes so we can prepare an estimate for the design service. Click the button to submit your request for pricing, or call 1-800-447-0027 for assistance.
Plan Description
Floor Plans
Full Specs & Features
Dimension
Depth : 65' 6"
Height : 34'
Width : 86' 10"
Area
Basement Unfinished: 2000 sq/ft
Bonus: 192 sq/ft
First Floor: 2009 sq/ft height 10'
Second Floor: 913 sq/ft
Roof
Primary Pitch : 12:12
Roof Framing : Conventional
Roof Type : Shingle
Exterior Wall Framing
Exterior Wall Finish : Brick
Framing : Wood - 2x4
Bedroom Features
Fireplace
Formal Dining Room
Guest Suite
Split Bedrooms
Kitchen Features
Kitchen Island
Additional Room Features
Den Office Study Computer
Great Room Living Room
Loft
Unfinished Future Space
Garage Features
Side Entry Garage
Outdoor Spaces
Balcony
Covered Front Porch
Covered Rear Porch
Rooms
Bathroom 2:
51 sq/ft width 10' 4" x depth 5'
Bedroom 2:
143 sq/ft width 12' 6" x depth 11' 6"
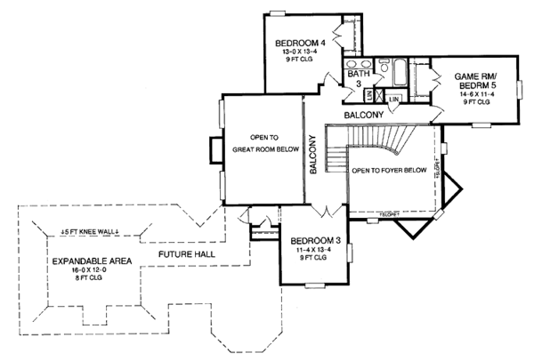
Bedroom 3:
151 sq/ft width 11' 4" x depth 13' 4"
Bedroom 4:
173 sq/ft width 13' x depth 13' 4"
Bedroom 5:
164 sq/ft width 14' 6" x depth 11' 4"
Bonus Room - Finished:
192 sq/ft width 16' x depth 12'
Breakfast Room:
130 sq/ft width 11' 4" x depth 11' 6"
Dining Room:
152 sq/ft width 11' 4" x depth 13' 6"
Garage:
564 sq/ft width 25' 8" x depth 22'
Gathering Room:
314 sq/ft width 17' x depth 18' 6"
Kitchen:
169 sq/ft width 13' x depth 13'
Master Bathroom:
163 sq/ft width 11' 8" x depth 14'
Master Bedroom:
217 sq/ft width 16' 4" x depth 13' 4"
Master Closet - Hers:
51 sq/ft width 9' x depth 5' 8"
Master Closet - His:
33 sq/ft width 5' x depth 6' 8"
Porch - Front:
57 sq/ft width 12' 4" x depth 4' 8"
Utility Room:
33 sq/ft width 5' 6" x depth 6'
What's Included In This Plan Set
All plans are drawn at ¼” scale or larger and include :
- Foundation Plan: This page shows all necessary notations and dimensions including support columns, walls, and excavated/unexcavated areas.
- Exterior Elevations: Views of the home from all four sides showing exterior materials and measurements.
- Floor Plan(s): Detailed plans for each level showing room dimensions, wall partitions, windows and doors, etc.
- Cross Section: A slice of the home from roof to foundation, showing important details like stairs and wall construction.
- Overhead Roof Plan(s): A view of the home from above showing roof pitch, peaks, valleys, and other details.
- Construction Notes and Details: Shows the builder how things come together, like walls, the chimney, insulation, and more.
Plan Set
$1032.75
Foundation
$0.00
$0.00
$0.00
Framing
$0.00
Additional Options
$51.00
$85.00
$250.75
$33.15
$46.75
* Alternate Foundations may take time to prepare.
** Options with a fee may take time to prepare. Please call to confirm.
 
         
         
                 
                         
                         
                 
                 
                 
                 
                 
                 
                 
                 
                 
                 
                        