SAVED No Saved House Plans REGISTER LOGIN Empty Cart
Don't lose your saved plans!  Create an account to access your saves whenever you want. See our Terms & Conditions and Privacy Policy.
1 MORE DAY: 20% OFF ENDS TONIGHT

PLAN 1017-60

Photographs may show modified designs.

Save
  • Jump to:
  • All (4)
  • Floor plans (2)
Questions? Get Personalized Help
Home  >  Style  >  Southern

Key Specs


Plan Sq Ft

4110
sq ft

Plan Bedrooms

4
Beds

Plan Bathrooms

4
Baths

Plan Floors

2
Floors

Plan Garages

3
Garages

Select Plan Set Options

What's included?
Additional Construction Sets$72.00/each

Additional hard copies of the plan (can be ordered at the time of purchase and within 90 days of the purchase date).

$80.00
$31.20
Subtotal
NOW $1120.00
You save $280.00 (20% savings)
Sale ends soon!
Best Price Guaranteed*

Also order by phone: 1-800-447-0027
 
Questions about building your home?
Get Personalized Help
We do our best to get back to you within 24 - 48 business hours.
Need an answer faster? Call now...
Phone: 1-800-447-0027
Hours:
Ready for Your Call 7 Days a Week
Every Day 7 am - 8:30 pm Eastern

See our Terms & Conditions and Privacy Policy.

 
Wow!
Cost to Build Reports
Only $1.99 Right Now
Use Code CTB2026
Our Cost to Build Report gives you a personalized estimate for building your home, based on your location, plan, and materials.
Get Cost To Build Report
Limit one per order.

Residential Construction Guide

Learn Building Basics

This downloadable, 26-page guide is full of diagrams and details about plumbing, electrical, and more.

PLAN 1017-60

This plan can be customized

Tell us about your desired changes so we can prepare an estimate for the design service. Click the button to submit your request for pricing, or call 1-800-447-0027 for assistance.

Modify This Plan

Plan Description


First story walls are constructed of concrete block; upper stories are 2x6 wood-framed.

Full Specs & Features


Dimension

Depth : 39'

Height : 30' 9"

Width : 109' 10"

Area

First Floor: 1881 sq/ft

Second Floor: 2229 sq/ft

* Total Square Footage typically only includes conditioned space and does not include garages, porches, bonus rooms, or decks.

Roof

Primary Pitch : 7:12

Roof Framing : Truss

Roof Type : Tile

Exterior Wall Framing

Exterior Wall Finish : Stucco

Bedroom Features

Formal Dining Room

Formal Living Room / Parlor

Guest Suite

Upstairs Master Bedrooms

Walk In Closet

Kitchen Features

Breakfast Nook

Kitchen Island

Walk In Pantry Cabinet Pantry

Additional Room Features

Den Office Study Computer

Outdoor Spaces

Deck

Rooms

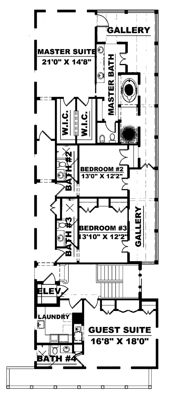
Bedroom 2:

158 sq/ft width 13' x depth 12' 2"

Bedroom 3:

168 sq/ft width 13' 10" x depth 12' 2"

Breakfast:

144 sq/ft width 12' x depth 12'

Dining Room:

200 sq/ft width 16' x depth 12' 6"

Gallery:

612 sq/ft width 15' 6" x depth 39' 6"

Garage:

747 sq/ft width 21' 2" x depth 35' 4"

Guest Suite:

300 sq/ft width 16' 8" x depth 18'

Kitchen:

194 sq/ft width 15' 4" x depth 12' 8"

Living Room:

451 sq/ft width 23' 2" x depth 19' 6"

Master Bedroom:

308 sq/ft width 21' x depth 14' 8"

Parlor:

156 sq/ft width 12' 4" x depth 12' 8"

Study:

81 sq/ft width 11' 4" x depth 7' 2"

What's Included In This Plan Set


All plans are drawn at ¼” scale or larger and include :

  • Foundation Plan: This page shows all necessary notations and dimensions including support columns, walls, and excavated/unexcavated areas.
  • Exterior Elevations: Views of the home from all four sides showing exterior materials and measurements.
  • Floor Plan(s): Detailed plans for each level showing room dimensions, wall partitions, windows and doors, etc.
  • Cross Section: A slice of the home from roof to foundation, showing important details like stairs and wall construction.
  • Overhead Roof Plan(s): A view of the home from above showing roof pitch, peaks, valleys, and other details.
  • Construction Notes and Details: Shows the builder how things come together, like walls, the chimney, insulation, and more.
» See important information before purchasing.
Questions? Call 1-800-447-0027

Plan Set

CAD Set:
$1120.00
For use by design professionals to make substantial changes to your house plan and inexpensive local printing.
PDF Set:
$1120.00
PDF plan sets are best for fast electronic delivery and inexpensive local printing.

Foundation

Slab:
$0.00
Ideal for level lot, single layer concrete poured directly on grade.

Additional Options

Additional Construction Sets:
$72.00
Additional hard copies of the plan (can be ordered at the time of purchase and within 90 days of the purchase date).
Audio Video Design:
$80.00
Receive an overlay sheet with suggested placement of audio and video components.
Construction Guide:
$31.20
Educate yourself about basic building ideas with these four detailed diagrams that discuss electrical, plumbing, mechanical, and structural topics.

* Alternate Foundations may take time to prepare.

** Options with a fee may take time to prepare. Please call to confirm.

Unless you buy an “unlimited” plan set or a multi-use license you may only build one home from a set of plans. Please call to verify if you intend to build more than once. Plan licenses are non-transferable and cannot be resold.