SAVED No Saved House Plans REGISTER LOGIN Empty Cart
BLOG
Our Favorites + Building Knowledge and Materials
Home>Articles

Flexible & Smart: 5 Bedroom, 4 Bath House Plans

Flexible & Smart: 5 Bedroom, 4 Bath House Plans
Get options galore with these 5 bedroom 4 bath house plans.

Flexible & Smart: 5 Bedroom, 4 Bath House Plans

By Courtney Pittman

Flexible and smart, these 5 bedroom, 4 bath house plans give you maximum versatility with lots of bedrooms and streamlined layouts. Look for up-to-date design features like open kitchens, indoor/outdoor connections, and lots of storage. Here are some of our favorites.

Ready to explore? Check out our 5 bedroom, 4 bath house plans collection here.

Family-Friendly Plan with Screened Porch Family-Friendly Plan with Screened Porch Family-Friendly Plan with Screened Porch 1080-1 - Front Exterior

Family-Friendly Plan with Screened Porch Family-Friendly Plan with Screened Porch 1080-1 - Main Floor Plan

Family-Friendly Plan with Screened Porch Family-Friendly Plan with Screened Porch 1080-1 - Upper Floor Plan

Here’s a family-friendly house plan that’s ready for modern living. The open kitchen gives you a big island and a generous walk-in pantry. The nearby family room opens to the screened porch in back for easy outdoor living (check out these screened porch ideas from HGTV). The primary suite rests on the main floor, along with a secondary bedroom.

Three more bedrooms (each with a walk-in closet) share a cool kids loft on the second level. Don’t miss the handy cubbies on the way in from the two-car garage.

Contemporary and Bright Contemporary and Bright Contemporary and Bright 1066-102 - Front Exterior

Contemporary and Bright Contemporary and Bright 1066-102 - Main Floor Plan

Contemporary and Bright Contemporary and Bright 1066-102 - Upper Floor Plan

Highlights of this 5 bedroom, 4 bath contemporary house plan include a big island in the kitchen and a spacious walk-in closet in the primary suite. An additional bedroom suite opens up all kinds of possibilities.

Two outdoor living spaces make it easy to kick back and relax – including a balcony.

Two-Story Design with Study Two-Story Design with Study Two-Story Design with Study 54-450 - Front Exterior

Two-Story Design with Study Two-Story Design with Study 54-450 - Main Floor Plan

Two-Story Design with Study Two-Story Design with Study 54-450 - Upper Floor Plan

A keeping room and an optional bonus room are just some of the special features in this traditional two-story design. You’ll also find a sitting area and a huge walk-in closet in the primary suite. A study near the foyer gives you a nice place to work.

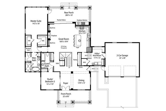
Farmhouse with Guest Suite Farmhouse with Guest Suite Farmhouse with Guest Suite 932-599 - Front Exterior

Farmhouse with Guest Suite Farmhouse with Guest Suite 932-599 - Main Floor Plan

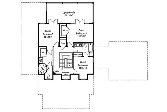
Farmhouse with Guest Suite Farmhouse with Guest Suite 932-599 - Upper Floor Plan

This farmhouse-style plan showcases many versatile features, including a detached guest suite, a home office, and a bonus room upstairs. The great room is highlighted by a vaulted ceiling and openness to the island kitchen and dining area.

Located on the main floor, the primary suite impresses with two sinks, a relaxing tub, and a big closet. Two more bedrooms and a full bath occupy the second level. Front and rear porches offer plenty of outdoor living options.

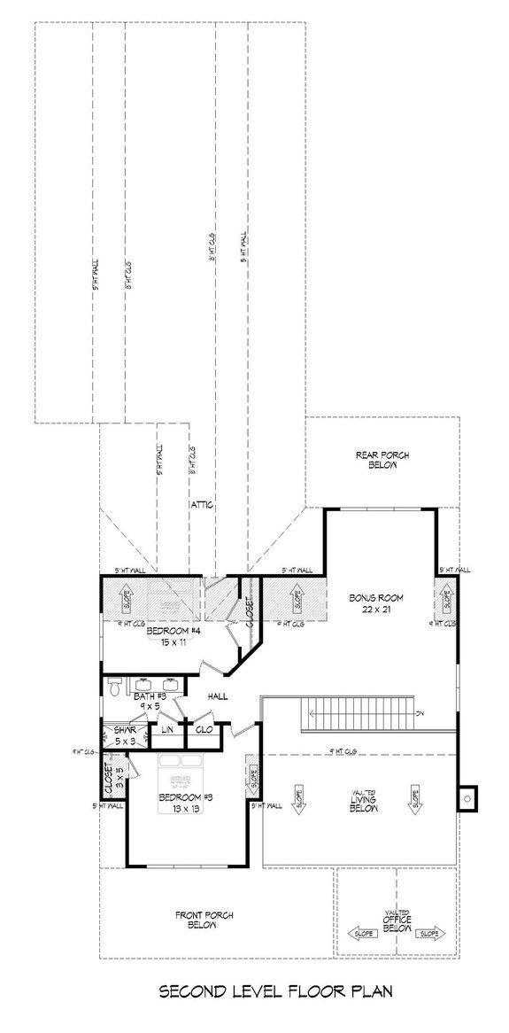
Lots of Storage Lots of Storage Lots of Storage 929-1135 - Front Exterior

Lots of Storage Lots of Storage 929-1135 - Main Floor Plan

Lots of Storage Lots of Storage 929-1135 - Upper Floor Plan

Looking for extra storage? Check out this plan. Each bedroom features a walk-in closet (even the bonus room) and there's also extra storage in the two-car garage. The large great room opens onto a screened porch and patio.

Near the front, a flexible study could be used as a guest room. A secluded retreat, the primary suite enjoys privacy on the main floor and features two vanities, a modern shower (with a seat), and a separate tub.

Craftsman Plan with Wine Cellar Craftsman Plan with Wine Cellar Craftsman Plan with Wine Cellar 20-2415 - Front Exterior

Craftsman Plan with Wine Cellar Craftsman Plan with Wine Cellar 20-2415 - Main Floor Plan

Craftsman Plan with Wine Cellar Craftsman Plan with Wine Cellar 20-2415 - Upper Floor Plan

Craftsman Plan with Wine Cellar Craftsman Plan with Wine Cellar 20-2415 - Lower Floor Plan

Jam-packed with style, this handsome design gives you a modern layout and a cute front porch. Check out the tidy drop zone and laundry room near the garage entrance. The open gathering areas will become the center of attention, with the great room opening to the island kitchen and eating area.

The owner’s suite is conveniently located on the main level – making it easy to age in place. Two secondary bedrooms and a family room (with a wine cellar) provide more room for family or friends.

Outdoor Living to the Max Outdoor Living to the Max Outdoor Living to the Max 929-1051 - Front Exterior

Outdoor Living to the Max Outdoor Living to the Max 929-1051 - Main Floor Plan

Outdoor Living to the Max Outdoor Living to the Max 929-1051 - Upper Floor Plan

This Craftsman house plan offers lots of curb appeal. Inside, the open floor plan feels modern and bright. Near the foyer, the dining room serves formal occasions. The primary suite dazzles with a shower, a relaxing tub, and an extra-spacious closet.

The second floor holds a bedroom suite and two additional bedrooms (each with a walk-in closet). Need more space? Check out the bonus room.

Versatile Rooms Versatile Rooms Versatile Rooms 935-13 - Front Exterior

Versatile Rooms Versatile Rooms 935-13 - Main Floor Plan

The options are endless with this 5 bedroom, 4 bath house plan. A flexible game room and a media space sit near the back. Don’t miss the study next to the entry or the versatile guest room. The primary suite invites you to relax in the spa-like bathroom (transform your bathroom into a spa with these tips from The Spruce).

The island kitchen has space for casual seating at the bar. We love the generous outdoor room.

First-Floor Primary Suite First-Floor Primary Suite First-Floor Primary Suite 938-85 - Front Exterior

First-Floor Primary Suite First-Floor Primary Suite 938-85 - Main Floor Plan

First-Floor Primary Suite First-Floor Primary Suite 938-85 - Upper Floor Plan

An inviting front porch enhances the exterior of this two-story house plan. The first floor shows off an open layout between the main gathering spaces. Seating at the kitchen island is a modern touch.

A study near the front is a welcome amenity. The primary suite gives you two walk-in closets and access to the rear porch. The mudroom provides space to sit and take off your shoes. Two more bedrooms, a guest suite, and another porch complete the second level.

Discover more 5 bedroom, 4 bath house plans here.

Flexible & Smart: 5 Bedroom, 4 Bath House Plans

Coupon Codes