SAVED No Saved House Plans REGISTER LOGIN Empty Cart
BLOG
Our Favorites + Building Knowledge and Materials
Home>Articles

RV Garage Plans with Incredible Storage

RV Garage Plans with Incredible Storage
Check out these RV garage plans.

By Devin Uriarte

We’ve compiled some of our favorite RV garage plans including some house plans with an attached RV garage. Whether you’re looking to expand on your property or are looking for a whole new build, these plans feature lots of additional storage space.

See more RV garage plans here.

Farmhouse Plan with RV Garage Farmhouse Plan with RV Garage Farmhouse Plan with RV Garage - Exterior

Farmhouse Plan with RV Garage Farmhouse Plan with RV Garage - Main Floor Plan

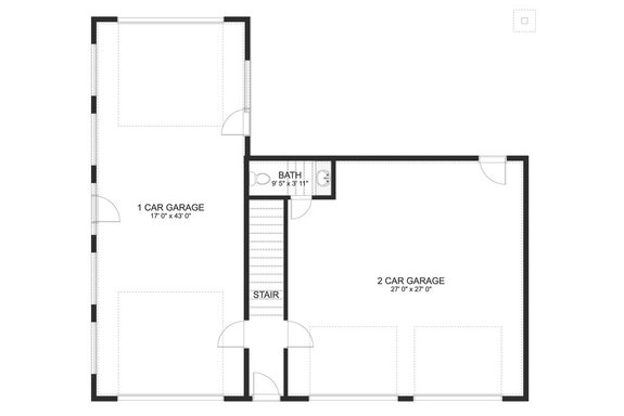
Farmhouse Plan with RV Garage Farmhouse Plan with RV Garage - Upper Floor Plan

This charming farmhouse style plan has just under 1,000 sq. ft. of living space and is filled with various amenities. The main floor features a two-car garage that is attached to an RV garage. Through the RV garage, you can access a bathroom that leads into the mudroom and up to the main living area. Host friends and family for a night of entertainment upstairs in the open concept living area. Open the French doors in the living room for indoor-outdoor flow all while preparing a meal in the spacious kitchen. The kitchen looks out to the dining nook and there’s even a bar top for guests to sit and enjoy company. There’s a walk-in closet in the primary bedroom.

Two-Bedroom RV Garage Plan Two-Bedroom RV Garage Plan Two-Bedroom RV Garage Plan - Exterior

Two-Bedroom RV Garage Plan Two-Bedroom RV Garage Plan - Main Floor Plan

Two-Bedroom RV Garage Plan Two-Bedroom RV Garage Plan - Upper Floor Plan

The unique angled roof of this two-bedroom garage plan gives it a stylish modern look. Both the two-car garage and RV bay have high ceilings that are lift friendly. Also, on the main level there is a storage closet, a workshop, and a bathroom. A luxurious feature in this modern garage plan is an elevator that leads up to the living space. The elevator opens to the vaulted kitchen with an impressive island that looks out to the living room. Create an indoor-outdoor flow by opening the sliding glass door to the wraparound balcony. Down the hall there are two bedrooms, both featuring walk-in closets. In the hallway there is a laundry room with an attached pantry for additional storage.

RV Garage Plan with Studio RV Garage Plan with Studio RV Garage Plan with Studio - Exterior

RV Garage Plan with Studio RV Garage Plan with Studio - Main Floor Plan

RV Garage Plan with Studio RV Garage Plan with Studio - Upper Floor Plan

You would never guess there was a spacious studio in this sleek and modern garage plan. The main floor has two garages, one large enough to fit an RV. There’s a half bath in the hall leading up to the second level. The studio apartment upstairs has an open floor plan that is great for entertaining. Relax outdoors on the deck and open the sliding glass doors to fill the space with natural light. In the kitchen there’s an impressive island for storage and a casual bar top. For additional storage there’s a pantry and right next to it is the laundry closet.

Single-Story Craftsman Plan with RV Garage Single-Story Craftsman Plan with RV Garage Single-Story Craftsman Plan with RV Garage - Exterior

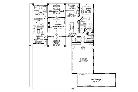
Single-Story Craftsman Plan with RV Garage Single-Story Craftsman Plan with RV Garage - Main Floor Plan

Looking for a traditional house plan with lots of storage and a spacious garage? This Craftsman style home features elegant details along with plenty of storage. The vaulted porch opens to the vaulted great room where the kitchen island is the highlight of the space. Host friends and family on the three-season porch or out on the covered patio on those warmer nights. The primary suite has a double walk-in closet that leads into a bathroom with skylights. On the other side of the home there is a vaulted den, a guest bedroom, and a craft room. Transform the den or craft room into an office for anyone that works from home. Outside is the two-car garage that is attached to the RV garage.

Huge Garage Plan with Living Space Huge Garage Plan with Living Space Huge Garage Plan with Living Space - Exterior

Huge Garage Plan with Living Space Huge Garage Plan with Living Space - Main Floor Plan

Enjoy all the luxuries of this tiny plan with a big garage. With 540 sq. ft. of living space, this traditional plan features a two-car garage able to fit a car and an RV. Through the shop area there is an attached garden shed for additional storage. The apartment features a cozy living space with an L-shaped kitchen and an island for easy meal prep. For more storage, there’s a pantry across from the kitchen island.

Two-Story RV Garage Two-Story RV Garage Two-Story RV Garage - Exterior

Two-Story RV Garage Two-Story RV Garage - Main Floor Plan

Two-Story RV Garage Two-Story RV Garage - Upper Floor Plan

Look to this two-story RV garage for your next building project. The modern design of the garage is simple and sleek. The vaulted studio loft on the second floor would make a great in-law suite as it features a private bath and a kitchenette. There’s a storage area in the two-car garage. A door on the main floor connects to the lift-friendly RV garage.

Narrow Garage Plan Narrow Garage Plan Narrow Garage Plan - Exterior

Narrow Garage Plan Narrow Garage Plan - Main Floor Plan

Narrow Garage Plan Narrow Garage Plan - Upper Floor Plan

This 800 sq. ft. garage plan has a very narrow design that is suitable for smaller lots. The garage space on the main floor is long enough to fit an RV and a car. Upstairs there is a studio that could be used as an office space.

Two Bedroom Craftsman Plan with Boat Parking Two Bedroom Craftsman Plan with Boat Parking Two Bedroom Craftsman Plan with Boat Parking - Exterior

Two Bedroom Craftsman Plan with Boat Parking Two Bedroom Craftsman Plan with Boat Parking - Main Floor Plan

Two Bedroom Craftsman Plan with Boat Parking Two Bedroom Craftsman Plan with Boat Parking - Upper Floor Plan

Looking for a place to stash your boat or RV? This Craftsman-style plan has room in the garage, along with a workshop. The open concept living space on the second floor features an island in the kitchen for easy meal prep. A cozy built-in desk sits across from the kitchen for anyone who works remotely. Both bedrooms have a good amount of storage space with one having two closets and the other having built-ins.

Contemporary House Plan with RV Garage Contemporary House Plan with RV Garage Contemporary House Plan with RV Garage - Exterior

Contemporary House Plan with RV Garage Contemporary House Plan with RV Garage - Main Floor Plan

This luxurious contemporary house plan features an RV garage in addition to a two-car garage. Relax outside on the outdoor living area and deck. Host guests at the kitchen island while preparing a meal and set the ambiance for dinner in the dining room. A formal entryway into the main suite greets you with a cozy seating area. The primary suite features a full bathroom and a walk-in closet. Two guest bedrooms sit off their own hallway where there is a convenient closet for storage.

RV Garage Plan with 2 Bedrooms RV Garage Plan with 2 Bedrooms RV Garage Plan with 2 Bedrooms - Exterior

RV Garage Plan with 2 Bedrooms RV Garage Plan with 2 Bedrooms - Main Floor Plan

Get tons of parking space and a small home all in one with this plan. The open layout of the kitchen makes entertaining a breeze. Modern farmhouse styling adds curb appeal.

See more RV garage plans here.

Coupon Codes