SAVED No Saved House Plans REGISTER LOGIN Empty Cart
BLOG
Our Favorites + Building Knowledge and Materials
Home>Articles

How to Save Money When Building a House

How to Save Money When Building a House
Get tips and explore affordable home designs

How to Save Money When Building a House

By Courtney Pittman

Dreaming of building your dream home but worried about the expenses? Good news! You can significantly reduce construction costs without skimping on the quality or the design. Learn how to save money when building a house with these easy tips.

Want more? Explore our affordable house plans collection here.

Choose a Ready-Made Plan

Why choose a stock plan? Ready-made plans can save you time and money. Final cost estimates are more accurate with these designs because details (like generating a materials list) are already taken into account. Want changes? Good news! Our modifications department can customize most plans to suit your needs (and save you money).

Simple Design

When choosing your house plan, opt for an uncomplicated design. For example, a four-corner footprint (we’re talking no bump-outs, folks) can minimize costs. According to NAHB, another smart strategy is building a two-story design, which reduces foundation and roofing costs.

Smaller Square Footage

It’s no secret that less square footage equals more savings. Choosing a smaller house plan can reduce building costs because they require fewer materials, lower labor costs, and more.

Open Floor Plan

Not only does an open layout maximize space, but it can also save you money when building. Fewer walls mean less materials, which can significantly reduce building costs.

Choosing a Simple Roof Design

”The roof is one of the most expensive material and labor line items in your budget,” states NAHB. Opting for a simple roof design (like a shed roof) requires fewer materials and is easier to construct.

Smart Materials and Finishes

One way to keep costs down is by choosing more affordable materials and finishes, such as vinyl flooring.

Here are some of our favorite affordable house plans, all of which display open layouts, simple footprints, and more.

Tiny Traditional Plan Tiny Traditional Plan Tiny Traditional Plan - Front Exterior

Tiny Traditional Plan Tiny Traditional Plan - Main Level

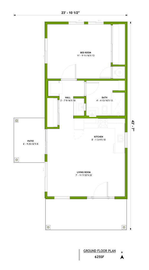
Here’s a tiny traditional plan that would work well as an ADU (accessory dwelling unit). The simple four-corner footprint makes it a builder-friendly option. Note the front porch and the side patio.

Inside, the living room opens to the kitchen for a modern feel. A bedroom and a bathroom complete this design.

Ranch Plan with Wraparound Porch Ranch Plan with Wraparound Porch Ranch Plan with Wraparound Porch - Front Exterior

Ranch Plan with Wraparound Porch Ranch Plan with Wraparound Porch - Main Level

A wraparound porch delivers shaded comfort to this ranch house plan. We love the timeless metal roof. The open layout makes it easy to move between the kitchen and the living room.

Keep groceries nice and organized in the sizable pantry. In the bedroom, a walk-in closet gives you extra room for storage. The laundry room sits conveniently close by. A one-car garage is located at the back of the plan.

Country Design for Sloping Lot Country Design for Sloping Lot Country Design for Sloping Lot - Front Exterior

Country Design for Sloping Lot Country Design for Sloping Lot - Main Level

Country Design for Sloping Lot Country Design for Sloping Lot - Lower Level

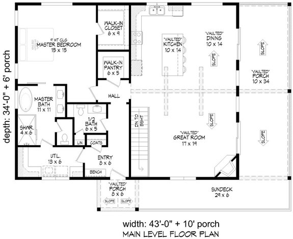
Building on a sloping lot? Check out this country design. The exterior shows off board-and-batten siding, a metal gable roof, and a wraparound porch/sundeck.

On the main level, a streamlined layout delivers functionality with an open floor plan. The kitchen island serves the great room, while a vaulted ceiling draws the eye up. The primary suite features a big closet and direct access to the laundry room. The versatile lower level includes an open family room, an office, and three additional bedrooms.

Charming Farmhouse Plan Charming Farmhouse Plan Charming Farmhouse Plan - Front Exterior

Charming Farmhouse Plan Charming Farmhouse Plan - Main Level

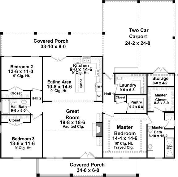
We love a charming farmhouse plan, especially this one. A metal roof accent covers the wide front porch, while quartered windows add country style. In the kitchen, an island offers relaxed seating.

Nearby, the open great room features a vaulted ceiling and a central fireplace. Two bedrooms share a hall bath on the left side of the plan. The primary suite enjoys a luxe bath and ample closet space on the right. Don’t miss the two-car carport (with storage) and the rear porch.

Three-Bedroom Farmhouse Plan Three-Bedroom Farmhouse Plan Three-Bedroom Farmhouse Plan - Front Exterior

Three-Bedroom Farmhouse Plan Three-Bedroom Farmhouse Plan - Main Level

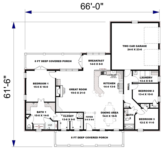
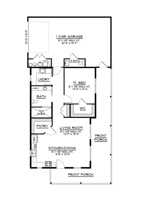
Here’s a farmhouse-inspired plan with three bedrooms. Front and rear porches encourage outdoor living. Inside, the U-shaped kitchen includes an angled eating bar that looks out to the great room. Don’t miss the sunny breakfast nook or the dining area.

The primary suite impresses with a spa-like bath, a generous closet, and access to the rear porch (via French doors). At the back of the plan, a garage is ready to store up to two vehicles.

Bright Barndominium Plan Bright Barndominium Plan Bright Barndominium Plan - Front Exterior

Bright Barndominium Plan Bright Barndominium Plan - Main Level

Bright Barndominium Plan Bright Barndominium Plan - Upper Level

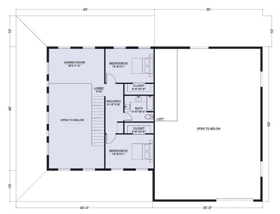
This barndominium plan shows off budget-friendly details like an open layout and clean lines. The island kitchen offers a seamless transition into the two-story great room. A large walk-in closet enhances the main-level primary suite.

On the second level, two more bedrooms (each featuring a walk-in closet) share a convenient hall bath. Versatile spaces include an office and a gaming room. The wraparound porch gives you the perfect spot to take in the view. Check out the cool loft in the three-car garage.

See more affordable house plans.

How to Save Money When Building a House