SAVED No Saved House Plans REGISTER LOGIN Empty Cart
BLOG
Our Favorites + Building Knowledge and Materials
Home>Articles

3 Bedroom 2 Story House Plans with Outstanding Outdoor Living

3 Bedroom 2 Story House Plans with Outstanding Outdoor Living
Featuring different styles and sizes

By Gabby Torrenti

These three-bedroom, two-story house plans are the perfect size for a small family and feature porches and patios that are perfect for spring. Including two stories of living space, these spaces don’t feel cramped and allow everyone to have their own space to relax. Take a look at some of our favorite three-bedroom, two-story plans for inspiration for your next building project!

Want to see all of our two-story, three-bedroom plans? Take a look at the full collection here.

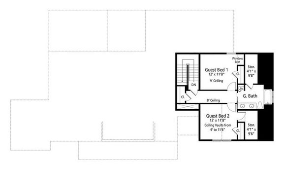
Two-Story Modern Farmhouse Dream House Plan - Exterior - Front Elevation for Farmhouse House Plan #938-109 - 3 bed, 2.5 bath Two-Story Modern Farmhouse 938-109 - Front Exterior Dream House Plan - 3 Bedroom 2 Story House Plans with Outstanding Outdoor Living Two-Story Modern Farmhouse 938-109 - Main Floor Plan Dream House Plan - 3 Bedroom 2 Story House Plans with Outstanding Outdoor Living Two-Story Modern Farmhouse 938-109 - Upstairs Floor Plan
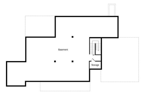
Dream House Plan - 3 Bedroom 2 Story House Plans with Outstanding Outdoor Living Two-Story Modern Farmhouse 938-109 - Basement Floor Plan

This 2,568-square-foot plan features three bedrooms, two-and-a-half bathrooms, and plenty of open living space for your family to enjoy. Beyond the front entry porch, the foyer is flanked by a convenient powder room for guests and an eat-in kitchen that’s ideal for enjoying a snack or quick meal just steps from the main living area. A living room and dining room sit straight ahead, featuring a vaulted ceiling that instantly makes this space feel grand. An outdoor deck and three-season porch are sure to be favorite features of any entertainer, providing lots of additional space to hang out with guests. A set of doors lead back inside to the homeowner's suite, featuring its own bathroom with two vanities and a private water closet, as well as a walk-in closet and desk nook that can serve as a quaint space to work from home. A laundry room, studio space (for another office, perhaps?), and bar complete this level, creating the perfect hub for both work and play.

Upstairs, two additional bedrooms are perfect for kids or guests, with a bathroom with double sinks located in the middle. Closets in each room and additional storage space keep the second floor tidy, too. On the home’s basement level, lots of open space provides endless potential for creating an additional family room, home office, or gym that the fitness buff in your family will surely appreciate.

Modern Three-Bedroom Prairie Plan Dream House Plan - Exterior - Front Elevation for Prairie House Plan #126-225 - 3 bed, 3 bath Modern Three-Bedroom Prairie Plan 126-225 - Front Exterior Dream House Plan - 3 Bedroom 2 Story House Plans with Outstanding Outdoor Living Modern Three-Bedroom Prairie Plan 126-225 - Main Floor Plan Dream House Plan - 3 Bedroom 2 Story House Plans with Outstanding Outdoor Living Modern Three-Bedroom Prairie Plan 126-225 - Upper Floor Plan

Clean-lined Prairie style feels fresh and contemporary, making this home stand out. Inside, 1,927 square feet of space begin with a foyer that features a powder room for guests and access to the great room via an atrium that is open to the second floor. The main living space comprises a great room with a built-in gas fireplace, a dining space, and a kitchen with a snack bar and pantry.

Upstairs, the primary bedroom sits at the top of the stairs and includes access to a walk-in closet and a bathroom with two sinks, a private water closet, and additional storage space. And check out your private sundeck! The two additional bedroom suites also enjoy hall access to a sundeck (a different one), so it's easy to get outside and enjoy the day before it's even begun.

Coastal-Inspired Family Farmhouse Dream House Plan - Exterior - Front Elevation for Farmhouse House Plan #928-344 - 3 bed, 2.5 bath Coastal-Inspired Family Farmhouse 928-344 - Front Exterior Dream House Plan - 3 Bedroom 2 Story House Plans with Outstanding Outdoor Living Coastal-Inspired Family Farmhouse 928-344 - Main Floor Plan Dream House Plan - 3 Bedroom 2 Story House Plans with Outstanding Outdoor Living Coastal-Inspired Family Farmhouse 928-344 - Upstairs Floor Plan

This 2,781-square-foot farmhouse-style space would be a perfect fit in any neighborhood, but its covered outdoor living space and rear porch call out for beautiful water views. Through the main-level entrance, a foyer greets you with a powder room straight ahead and streamlined access to the living room, dining room, and kitchen with a center island. The sunroom sits at a back corner of this level, creating a bright space for sipping your morning coffee. A screened porch invites you outside. Off to the right, a study is perfect for working from home and can be accessed from the primary bedroom for extra versatility. Speaking of the suite, don't miss the big closet and well-equipped private bathroom.

Upstairs, a loft sits in the center of the space and gives second-floor residents room to relax, with the two additional bedrooms located on either side. A shared bathroom with two vanities sits in the center. An exercise room completes this floor, making fitness an important element in this impressive home.

Country-Style Home Design with Optional In-Law Suite Dream House Plan - Exterior - Rear Elevation for Country House Plan #928-13 - 3 bed, 3.5 bath Country-Style Home Design with Optional In-Law Suite 928-13 - Front Exterior Dream House Plan - 3 Bedroom 2 Story House Plans with Outstanding Outdoor Living Country-Style Home Design with Optional In-Law Suite 928-13 - Main Floor Plan Dream House Plan - 3 Bedroom 2 Story House Plans with Outstanding Outdoor Living Country-Style Home Design with Optional In-Law Suite 928-13 - Upper Floor Plan

With lots of spaces open to outdoors and over 3,000 square feet of living space, this three-bedroom plan is ideal for a family and perhaps in-laws or guests too, if you choose to finish the flexible bonus apartment above the garage. Beyond the covered porch, the home opens with a foyer that provides simple access to the main living space for a relaxed, open vibe. To the right, the kitchen features a center island and secluded dining space, which also leads to the screened patio. Across the main level, the primary suite features two walk-in closets, a bathroom with two vanities, and additional access to the screened patio. This level is made complete with a laundry room/mudroom and a powder bathroom for added convenience.

Two spacious bedroom suites sit upstairs. An office space and loft provide more room for relaxing or working from home, making this home both comfortable and convenient.

Modern Three-Bedroom Plan Dream House Plan - Exterior - Rear Elevation for Modern House Plan #497-31 - 3 bed, 2 bath Modern Three-Bedroom Plan 497-31 - Front Exterior Dream House Plan - 3 Bedroom 2 Story House Plans with Outstanding Outdoor Living Modern Three-Bedroom Plan 497-31 - Main Floor Plan Dream House Plan - 3 Bedroom 2 Story House Plans with Outstanding Outdoor Living Modern Three-Bedroom Plan 497-31 - Upstairs Floor Plan

This 2,115-square-foot plan features three bedrooms, opening with a foyer that leads straight into the main living area. This space comprises a living room and kitchen with a center island, as well as a nearby dining space that’s perfect for enjoying a meal with family. To the right, the first bedroom sits at the rear of the home, with the second bedroom located just across the hallway. Upstairs, the primary bedroom sits by itself, featuring a walk-in closet and a private bathroom with double sinks. A roof deck provides an outdoor space to relax and is only accessible from the main suite, making it feel both luxe and private.

Looking to see more of our two-story, three-bedroom plans? Check out the full collection here.