- Jump to:
- All (4)
- Floor plans (2)
Key Specs
2615
sq ft
3
Beds
2
Baths
1
Floors
2
Garages
Phone: 1-800-447-0027
See our Terms & Conditions and Privacy Policy.
Use Code CTBFALL
Residential Construction Guide
Learn Building Basics
This downloadable, 26-page guide is full of diagrams and details about plumbing, electrical, and more.
PLAN 11-260
This plan can be customized
Tell us about your desired changes so we can prepare an estimate for the design service. Click the button to submit your request for pricing, or call 1-800-447-0027 for assistance.
Plan Description
Floor Plans
Full Specs & Features
Dimension
Depth : 60' 10"
Height : 26'
Width : 69' 8"
Area
Basement Unfinished: 2836 sq/ft height 8' 8"
First Floor: 2615 sq/ft height 9'
Garage: 826 sq/ft
Patio: 162 sq/ft
Porch: 47 sq/ft
Roof
Primary Pitch : 9:12
Roof Framing : Truss
Roof Type : Shingle
Exterior Wall Framing
Exterior Wall Finish : Brick/Stucco
Framing : Wood - 2x4
Bedroom Features
Fireplace
Formal Dining Room
Walk In Closet
Kitchen Features
Breakfast Nook
Kitchen Island
Kitchenette Wet Bar
Walk In Pantry Cabinet Pantry
Additional Room Features
Den Office Study Computer
Family Room Keeping Room
Great Room Living Room
Master Sitting Area
Sunroom
Unfinished Future Space
Workshop
Garage Features
Side Entry Garage
Outdoor Spaces
Courtyard
Deck
Screened Porch
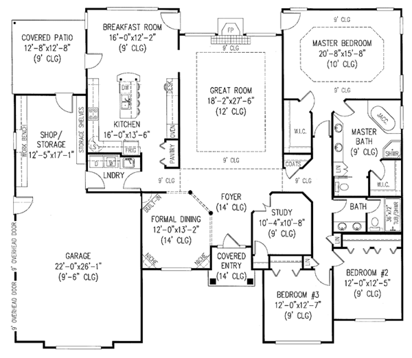
Rooms
Bedroom 2:
149 sq/ft width 12' x depth 12' 5"
Bedroom 3:
150 sq/ft width 12' x depth 12' 7"
Breakfast Room:
194 sq/ft width 16' x depth 12' 2"
Dining Room:
158 sq/ft width 12' x depth 13' 2"
Garage:
573 sq/ft width 22' x depth 26' 1"
Great Room:
499 sq/ft width 18' 2" x depth 27' 6"
Kitchen:
216 sq/ft width 16' x depth 13' 6"
Master Bedroom:
323 sq/ft width 20' 8" x depth 15' 8"
Patio:
160 sq/ft width 12' 8" x depth 12' 8"
Shop:
212 sq/ft width 12' 5" x depth 17' 1"
Study:
110 sq/ft width 10' 4" x depth 10' 8"
What's Included In This Plan Set
- Foundation Plan(s): 1/4" scale. All foundation types included with sets of house plans.
- Floor Plan(s): 1/4" scale. Includes Electrical Schematics (placement of outlets, fixtures, switches, etc.)
- Exterior Elevations: Front rendering (as shown on site). 1/4" scale front elevation. Sides and rear elevations at 1/8" scale.
- Overhead Roof Plan(s): 1/8" scale roof plan
- Cross Section(s): 1/4" scale full cross sections (3 to 5 included depending on house).
- Building Section(s): 1/2" scale full foundation sections.
- Electrical Plan(s): Shows the location of lights, receptacles, switches, etc. Some plans that do not include an electrical plan may have it available for an additional fee.
- Kitchen Cabinet Elevation(s): 1/2" scale full cabinet elevations
- Construction Notes / Detail(s): 1/2" scale fireplace details and sections (if applicable)
- Wall Section(s): Full wall section detailing all components.
- Stair Detail(s): 1/2" scale full stair section (if applicable).
Plan Set
$1062.50
$1402.50
$1742.50
$1827.50
$2741.25
Foundation
$0.00
$0.00
$0.00
Framing
$0.00
Additional Options
$255.00
$127.50
$85.00
$33.15
$85.00
* Alternate Foundations may take time to prepare.
** Options with a fee may take time to prepare. Please call to confirm.
 
         
         
                 
                         
                         
                 
                 
                 
                 
                 
                 
                 
                 
                