SAVED No Saved House Plans REGISTER LOGIN Empty Cart
BLOG
Our Favorites + Building Knowledge and Materials
Home>Articles

Our Favorite Unique One-Story House Plans

Our Favorite Unique One-Story House Plans
Explore these unique one-story house plans.

By Devin Uriarte

Whether it’s a wraparound porch, floor-to-ceiling windows, or vaulted ceilings, these one-story house plans feature unique layouts and amenities. These house plans differ in style from Craftsman to contemporary. Search through our favorite picks and find your dream house plan.

See the full collection of unique one-story house plans.

One-Story Contemporary House Plan with a Wall of Doors One-Story Contemporary House Plan with a Wall of Doors One-Story Contemporary House Plan with a Wall of Doors - Exterior

One-Story Contemporary House Plan with a Wall of Doors One-Story Contemporary House Plan with a Wall of Doors - Main Floor Plan

This one-story contemporary house plan has stunning glass doors that line the back of the home and create amazing indoor-outdoor flow. Owners can take in the views from the open living room and even at the kitchen island while preparing meals. The at-home office feels special from the sliding glass doors and the views they provide. A door in the office leads to the primary suite that also has great views of the property. The primary suite also features a spacious bathroom and walk-in closet. There are two bedrooms in the guest hallway along with built-ins and a laundry closet.

One-Story House Plan with Wraparound Patio One-Story House Plan with Wraparound Patio One-Story House Plan with Wraparound Patio - Exterior

One-Story House Plan with Wraparound Patio One-Story House Plan with Wraparound Patio - Main Floor Plan

A two-car garage on one side of the house plan connects to the den and at-home office. Heading into the main home, to the left is the owners’ suite, which features a full bathroom and an impressive walk-in closet. Back in the hallway there are two guest bedrooms that enjoy easy access to a hall bathroom. The last section of the home is the open concept living space. Owners can host guests at the kitchen island while others relax in the spacious great room. On warmer nights, entertain out on the wraparound covered patio.

One-Story Farmhouse One-Story Farmhouse One-Story Farmhouse - Exterior

One-Story Farmhouse One-Story Farmhouse - Main Floor Plan

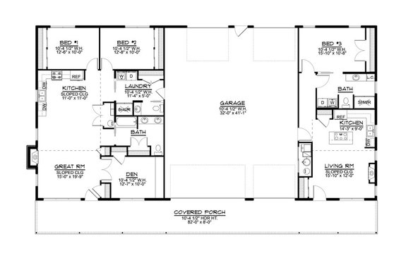
This one-story farmhouse can act as a duplex home. It’s a great option for those wanting an in-law suite or are wanting to rent out the extra space. The main home sits on the left side and the in-law suite to the right with a four-car garage in the middle. A covered porch stretches the entire width of the house plan. The in-law suite has a spacious and open living room that flows into the kitchen. There’s an island and a pantry for additional storage. There’s a bathroom in the hallway that also connects to the bedroom. In the main home, there’s a den to the right of the great room that can be used as a home office. Leading to the kitchen there’s a bathroom to the right and a walk-in laundry room with storage. There are two bedrooms at the end of the plan with spacious closets.

Unique Modern House Plan Unique Modern House Plan Unique Modern House Plan - Exterior

Unique Modern House Plan Unique Modern House Plan - Main Floor Plan

Neighbors will be envious of this unique one-story modern home. The exterior is sleek and simple and highlights the views of the property from the inside. Large windows line the back of the home, adding to the overall modern design. There’s a private media room near the foyer, perfect for relaxing or working from home. Owners can host guests at the kitchen island, which looks out to the living and dining rooms. To create indoor-outdoor flow, slide open the glass doors to the covered terrace. On the opposite side of the home, there are two bedrooms and the primary suite. A unique and luxurious feature of this plan is the sitting space upon entry of the primary suite. Sliding glass doors in the suite open to the second covered terrace.

Cottage with Unique Floor Plan Cottage with Unique Floor Plan Cottage with Unique Floor Plan - Exterior

Cottage with Unique Floor Plan Cottage with Unique Floor Plan - Main Floor Plan

This one-story cottage style house plan has a stunning and unique roof. High ceilings in the living and dining rooms help the spaces feel more spacious and open. While preparing food at the kitchen island, owners can continue entertaining guests. In the corner of the kitchen there’s a cozy desk nook and a walk-in pantry. There are three bedrooms in the guest wing, all of which share the hall bathroom with a double-sink vanity. In the primary suite, there are two walk-in closets and a full bathroom.

Unique One-Story Ranch Unique One-Story Ranch Unique One-Story Ranch - Exterior

Unique One-Story Ranch Unique One-Story Ranch - Main Floor Plan

The floor plan of this one-story ranch has unique semicircular nooks with large windows. Through the front porch there is a formal dining room to the left and a private office to the right. The first nook is in the kitchen where there’s an impressive island with room to seat six. The other nook is a cozy sitting area in the foyer of the primary suite. The primary suite has a luxurious bathroom and a walk-in closet. Sliding glass doors in the living room open to the veranda, where there’s a fireplace to keep you warm on those chilly nights. There are two guest bedrooms on opposite sides of the home plan, each with easy access to a bathroom.

Modern Plan with Unique Layout Modern Plan with Unique Layout Modern Plan with Unique Layout - Exterior

Modern Plan with Unique Layout Modern Plan with Unique Layout - Main Floor Plan

The layout is very simple so the focus can be on the views of the property. A long hallway leads to the open living space. In the kitchen, owners can meal-prep while entertaining guests and keep the space tidy with the walk-in pantry. Down the corridor there are two bedrooms, a walk-in laundry room, and the primary suite. The primary suite has a private bathroom and a walk-in closet.

Modern Farmhouse with Unique Floor Plan Modern Farmhouse with Unique Floor Plan Modern Farmhouse with Unique Floor Plan - Exterior

Modern Farmhouse with Unique Floor Plan Modern Farmhouse with Unique Floor Plan - Main Floor Plan

This modern farmhouse has a unique layout with a wraparound patio. The center of the home is the open living and dining room that flows into the kitchen. On one side of the home there are two guest bedrooms that feature walk-in closets. The primary suite sits on the opposite side of the home with a luxurious bathroom and walk-in closet. Owners have private access to the patio through French doors.

See the full collection of unique one-story house plans.

Coupon Codes