SAVED No Saved House Plans REGISTER LOGIN Empty Cart
Don't lose your saved plans!  Create an account to access your saves whenever you want. See our Terms & Conditions and Privacy Policy.

PLAN 17-2477

Photographs may show modified designs.

Save
  • Jump to:
  • All (6)
  • Floor plans (2)
Questions? Get Personalized Help

Key Specs


Plan Sq Ft

3766
sq ft

Plan Bedrooms

4
Beds

Plan Bathrooms

4
Baths

Plan Floors

2
Floors

Plan Garages

3
Garages

Select Plan Set Options

What's included?
$299.00
Additional Construction Sets$80.00/each

Additional hard copies of the plan (can be ordered at the time of purchase and within 90 days of the purchase date).

$165.00
$395.00
$39.00
$165.00
Subtotal
$1650.00
Best Price Guaranteed*

Also order by phone: 1-800-447-0027
 
Questions about building your home?
Get Personalized Help
We do our best to get back to you within 24 - 48 business hours.
Need an answer faster? Call now...
Phone: 1-800-447-0027
Hours:
Ready for Your Call 7 Days a Week
Every Day 7 am - 8:30 pm Eastern

See our Terms & Conditions and Privacy Policy.

 
Wow!
Cost to Build Reports
Only $1.99 Right Now
Use Code CTBFALL
Our Cost to Build Report gives you a personalized estimate for building your home, based on your location, plan, and materials.
Get Cost To Build Report
Limit one per order.

Residential Construction Guide

Learn Building Basics

This downloadable, 26-page guide is full of diagrams and details about plumbing, electrical, and more.

PLAN 17-2477

This plan can be customized

Tell us about your desired changes so we can prepare an estimate for the design service. Click the button to submit your request for pricing, or call 1-800-447-0027 for assistance.

Modify This Plan

Plan Description


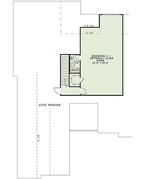
This European style home is perfect for entertaining with over 3500 square feet, 4 bedrooms, 4 full bathrooms, and a 3 car garage. The grand foyer welcomes you to a large great room featuring a timber beam ceiling, built-in shelves, and a fireplace. The large kitchen has a walk-in pantry, island, bar, and is open to the great room. The master suite has a whirlpool and glass shower and a large walk-in closet with a laundry pass-thru. Upstairs is a 4th bedroom/optional game room, complete with a full bathroom and walk-in closet. And the large outdoor living/grilling porch offers a grill and gas fireplace, perfect for entertaining throughout the year.

Full Specs & Features


Dimension

Depth : 88'

Height : 36'

Width : 84'

Area

Bonus : 947 sq/ft

Garage : 976 sq/ft

Main Floor : 3766 sq/ft

Porch : 750 sq/ft

* Total Square Footage typically only includes conditioned space and does not include garages, porches, bonus rooms, or decks.

Ceiling

Main Ceiling : 10'

Upper Ceiling Ft : 10'

Roof

Primary Pitch : 12:12

Roof Load : 45

Exterior Wall Framing

Framing : 2"x4"

Bedroom Features

Split Bedrooms

Upstairs Bedrooms

Walk In Closet

Kitchen Features

Breakfast Nook

Eating Bar

Kitchen Island

Walk In Pantry Cabinet Pantry

Additional Room Features

Great Room Living Room

Hobby Rec Room Game Room

Main Floor Laundry

Mud Room

Play Flex Room

Storage Area

Unfinished Future Space

Garage Features

Side Entry Garage

Lot Characteristics

Suited For Corner Lot

Outdoor Spaces

Covered Front Porch

Covered Rear Porch

Grill Deck Sundeck

More

Jack & Jill Bath

What's Included In This Plan Set




Plans are typically drawn to ¼” scale and include:
  • Foundation Plan(s): Most plans are available with a slab or crawlspace foundation. Optional walkout style basement (three walls masonry with a wood framed rear wall with notes for the builder to locate the windows and doors) and optional full basement foundation available if the plan allows, at an additional cost. (Walk out is not shown on elevations unless finished walk out.)
  • Floor Plan(s): Each home plan includes the floor plan showing the dimensioned locations of walls, doors, and windows as well as a schematic electrical layout.
  • Exterior Elevations: All plans include the exterior elevations (front, rear, right and left) that show and describe the finished materials of the house.
  • Overhead Roof Plan(s): This is a “bird’s eye” view showing the roof slopes, ridges, valleys and any saddles.
  • Cross Section(s): **Cross section views available for an additional fee. ** (cut throughs where applicable)
  • Building Section(s): The building sections are vertical cuts through the house and the stairs showing floor, ceiling and roof height information. **Cross section views available for an additional fee. ** (cut throughs where applicable)
  • Construction Notes / Detail(s): Shows basic parts and assemblies recommended for the home so the builder can see how things come together.
  • Other Note(s): These are included for many interior and exterior conditions that require more specific information for their construction.
» See important information before purchasing.
Questions? Call 1-800-447-0027

Plan Set

PDF Set:
$1650.00
PDF plan sets are best for fast electronic delivery and inexpensive local printing.
5 Copy Set:
$1750.00
5 printed plan sets mailed to you.
5 Copy and PDF Set:
$2000.00
5 printed plan sets mailed to you plus PDF plan sets are best for fast electronic delivery and inexpensive local printing.
PDF Unlimited Build:
$2350.00
PDF plan sets are best for fast electronic delivery and inexpensive local printing.
CAD Set:
$3300.00
For use by design professionals to make substantial changes to your house plan and inexpensive local printing.
CAD Unlimited Build:
$4000.00
For use by design professionals to make substantial changes to your house plan and inexpensive local printing.

Foundation

Crawlspace:
$0.00
Ideal for semi-sloped or level lot, home can be built off of grade, typically 18” - 48”.
Slab:
$0.00
Ideal for level lot, single layer concrete poured directly on grade.
Basement:
$299.00
Ideal for level lot, lower level of home partially or fully underground.
Daylight Basement:
$299.00
Ideal for sloping lot, lower level of home partially underground.

Framing

Wood 2x4:
$0.00
Wood 2x4 Exterior Walls
Wood 2x6:
$299.00
Wood 2x6 Exterior Walls

Additional Options

Right-Reading Reverse:
$299.00
Choose this option to reverse your plans and to have the text and dimensions readable.
Additional Construction Sets:
$80.00
Additional hard copies of the plan (can be ordered at the time of purchase and within 90 days of the purchase date).
Audio Video Design:
$165.00
Receive an overlay sheet with suggested placement of audio and video components.
Comprehensive Material List:
$395.00
A complete list of building supplies needed to construct the infrastructure of your new house, plus an overlay of materials shown directly on your PDF (foundation to rooftop with interior and exterior materials), and a detailed, itemized door and window schedule showing all sizes and types. Please allow 5-7 Business Days for completion. Note, the Comprehensive list is only available with a PDF purchase. The Comprehensive list can be ordered no matter what additional plan options you have selected.
Construction Guide:
$39.00
Educate yourself about basic building ideas with these four detailed diagrams that discuss electrical, plumbing, mechanical, and structural topics.
Lighting Design:
$165.00
Receive an overlay sheet with suggested placement of lighting fixtures.

* Alternate Foundations may take time to prepare.

** Options with a fee may take time to prepare. Please call to confirm.

Unless you buy an “unlimited” plan set or a multi-use license you may only build one home from a set of plans. Please call to verify if you intend to build more than once. Plan licenses are non-transferable and cannot be resold.