SAVED No Saved House Plans REGISTER LOGIN Empty Cart
Don't lose your saved plans!  Create an account to access your saves whenever you want. See our Terms & Conditions and Privacy Policy.
15% OFF THIS PLAN TODAY

PLAN 1058-221

Photographs may show modified designs.

Save
  • Jump to:
  • All (6)
  • Floor plans (2)
Questions? Get Personalized Help

Key Specs


Plan Sq Ft

3946
sq ft

Plan Bedrooms

3
Beds

Plan Bathrooms

3.5
Baths

Plan Floors

2
Floors

Plan Garages

3
Garages

Select Plan Set Options

What's included?
$255.00
Additional Construction Sets$51.00/each

Additional hard copies of the plan (can be ordered at the time of purchase and within 90 days of the purchase date).

$1657.50
$16575.00
Subtotal
NOW $2975.00
You save $525.00 (15% savings)
Sale ends soon!
Best Price Guaranteed*

Also order by phone: 1-800-447-0027
 
Questions about building your home?
Get Personalized Help
We do our best to get back to you within 24 - 48 business hours.
Need an answer faster? Call now...
Phone: 1-800-447-0027
Hours:
Ready for Your Call 7 Days a Week
Every Day 7 am - 8:30 pm Eastern

See our Terms & Conditions and Privacy Policy.

 
Wow!
Cost to Build Reports
Only $1.99 Right Now
Use Code CTBFALL
Our Cost to Build Report gives you a personalized estimate for building your home, based on your location, plan, and materials.
Get Cost To Build Report
Limit one per order.

Residential Construction Guide

Learn Building Basics

This downloadable, 26-page guide is full of diagrams and details about plumbing, electrical, and more.

PLAN 1058-221

This plan can be customized

Tell us about your desired changes so we can prepare an estimate for the design service. Click the button to submit your request for pricing, or call 1-800-447-0027 for assistance.

Modify This Plan

Plan Description


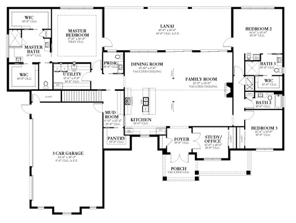
This craftsman design floor plan is 3946 sq ft and has 3 bedrooms and 3.5 bathrooms.

Full Specs & Features


Dimension

Depth : 70' 4"

Height : 21' 4"

Width : 94'

Area

Garage : 980 sq/ft

Main Floor : 3339 sq/ft

Porch : 852 sq/ft

Upper Floor : 607 sq/ft

* Total Square Footage typically only includes conditioned space and does not include garages, porches, bonus rooms, or decks.

Ceiling

Ceiling Details : Vaulted Ceilings.

Garage Ceiling : 9' 4"

Main Ceiling : 10'

Roof

Primary Pitch : 6/12

Roof Framing : Truss

Roof Type : Shingle/ Metal

Exterior Wall Framing

Exterior Wall Finish : Stucco/ Stone

Framing : CMU, 2x6 Frame

Bedroom Features

Main Floor Bedrooms

Main Floor Master Bedroom

Split Bedrooms

Walk In Closet

Kitchen Features

Kitchen Island

Walk In Pantry Cabinet Pantry

Additional Room Features

Den Office Study Computer

Family Room Keeping Room

Hobby Rec Room Game Room

Main Floor Laundry

Mud Room

Garage Features

Side Entry Garage

Outdoor Spaces

Covered Front Porch

Covered Rear Porch

More

Empty Nester

Suited For Vacation Home

Wheelchair Adaptable

What's Included In This Plan Set


All plans are drawn at ¼” scale or larger and include :

  • Foundation Plan: This page shows all necessary notations and dimensions including support columns, walls, and excavated/unexcavated areas.
  • Exterior Elevations: Views of the home from all four sides showing exterior materials and measurements.
  • Floor Plan(s): Detailed plans for each level showing room dimensions, wall partitions, windows and doors, etc.
  • Cross Section: A slice of the home from roof to foundation, showing important details like stairs and wall construction.
  • Overhead Roof Plan(s): A view of the home from above showing roof pitch, peaks, valleys, and other details.
  • Construction Notes and Details: Shows the builder how things come together, like walls, the chimney, insulation, and more.
» See important information before purchasing.
Questions? Call 1-800-447-0027

Plan Set

5 Copy Set:
$2975.00
5 printed plan sets mailed to you.
8 Copy Set:
$3128.00
8 printed plan sets mailed to you.
CAD Single Build:
$3315.00
For use by design professionals to make substantial changes to your house plan and inexpensive local printing.
PDF Set:
$3315.00
PDF plan sets are best for fast electronic delivery and inexpensive local printing.

Foundation

Stem Wall Foundation:
$0.00
Joins the foundation with a house’s vertical walls; often part of stem-wall slab foundation systems, which are constructed like a crawlspace foundation but filled in and compacted, then the slab is poured.

Framing

Concrete Masonry Unit and Wood 2x6:
$0.00
CMU on Main Floor and Wood 2x6 Upper level(s)

Additional Options

Right-Reading Reverse:
$255.00
Choose this option to reverse your plans and to have the text and dimensions readable.
Additional Construction Sets:
$51.00
Additional hard copies of the plan (can be ordered at the time of purchase and within 90 days of the purchase date).
Additional Use License:
$1657.50
Allows you to build one more home for each additional license purchased.
Unlimited Use License:
$16575.00
Allows you to build this home as many times as you want.

* Alternate Foundations may take time to prepare.

** Options with a fee may take time to prepare. Please call to confirm.

Unless you buy an “unlimited” plan set or a multi-use license you may only build one home from a set of plans. Please call to verify if you intend to build more than once. Plan licenses are non-transferable and cannot be resold.